Eladó Lakás
Hirdetéskód: 9248637

Belvita Ingatlanok

Felújításhoz személyi kölcsönt keres? Kalkuláljon itt! →
FIX 3% Program

Ez a hirdetés megfelelhet a FIX 3%-os programnak.
Tudj meg többet a részletekről itt.

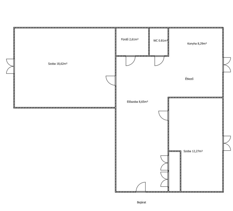
51.00 m2
ALAPTERÜLET
2
SZOBASZÁM
Panel
ÉPÍTÉS
Távfűtés egyedi méréssel
FŰTÉS
  • Kilátás Utcai
  • Ingatlan komfort Összkomfortos
  • Parkolási lehetőség Utcán, közterületen
  • Fűtés Távfűtés egyedi méréssel
  • Építőanyag Panel
  • Szigetelt nem
Energetikai besorolás: Nincs meghatározva
A+++
A++
A+
A
B
C
D
E
F
G
H
I

Az MBH Bank személyi kölcsön ajánlata

Fizetett hirdetés
1 millió Ft
6 évre
20 585 Ft/hó
THM: 14.5%
Részletek →
2 millió Ft
6 évre
41 169 Ft/hó
THM: 14.5%
Részletek →
3 millió Ft
6 évre
61 754 Ft/hó
THM: 14.5%
Részletek →

A tájékoztatás nem teljes körű és nem minősül ajánlattételnek.

Az ingatlan leírása

OTTHONOS, BARÁTSÁGOS, SZÉP ÁLLAPOTÚ lakás akár bútorozva, gépesítve is eladó a lakótelep egyik legjobb helyén!

LÉZERPONT Szolgáltatóház szomszédságában, minden szolgáltatóhoz, közintézményhez, megállókhoz közel megkímélt, tiszta, tehermentes ingatlan vár!
-KIVÁLÓ ELHELYEZKEDÉS
-DÍJMENTES PARKOLÁS
-LEINFORMÁLT, KULTÚRÁLT SZOMSZÉDOK
-TISZTA LÉPCSŐHÁZ
-önálló tároló
-lomos
-8.000 ft/hó fűtésátalány
-műanyag ablakok redőnnyel, rovarhálóval
-glettelt, festett és tapétás falak
-laminált padló
-egy légterű konyha, étkező
-erkély nincs



A FOTÓK A JELEN ÁLLAPOTOT MUTATJÁK!
Ha hitelt veszel fel, az sem gond, hívj bátran, megmutatjuk!
Hétvégén is kereshetsz!
Saját részre, bérbe adás céljából: mindenképpen jó választás!!!
A jelenlegi tulajdonos akár vissza is bérelné, amíg új ingatlana felújítása folyamatban van!
Tervezz! Számolj! megéri!

Ritkán van ilyen jó adottságokkal rendelkező lakás eladó!
Megtekintés időpont egyeztetéssel, akár hétvégén is!

Térkép

Ingatlan adásvétel ügyvédi díja
150 000 Ft
a hirdetésben szereplő ár alapján
  • A vételár 0,45%-a
  • Szerződéscsomag teljeskörű képviselettel
  • Ingyenes tulajdoni lap ellenőrzés
  • Az ÁFA-t már tartalmazza
Érdekel az ajánlat →
A tájékoztatás nem teljes körű és nem minősül ajánlattételnek. Minimum díj: 150 000 Ft, maximum díj: 600 000 Ft. A díj kizárólag lakóingatlan adásvételére vonatkozik.

A hirdető elérhetősége

Belvita Ingatlanok

Nagy Márti
+36 30 959