Eladó Lakás
Hirdetéskód: 9249057
Miskolc - OTP Ingatlanpont Iroda
Ez a hirdetés megfelelhet a FIX 3%-os programnak.
Tudj meg többet a részletekről itt.
51.00 m2
ALAPTERÜLET1
SZOBASZÁMnincs megadva
ÉPÍTÉSnincs megadva
FŰTÉS- CSOK igénybe vehető nem
- Tetőtér beépíthető nem
- Építés éve 1975
- Klíma nem
- Szigetelt nem
A+++
A++
A+
A
B
C
D
E
F
G
H
I
Az ingatlan leírása
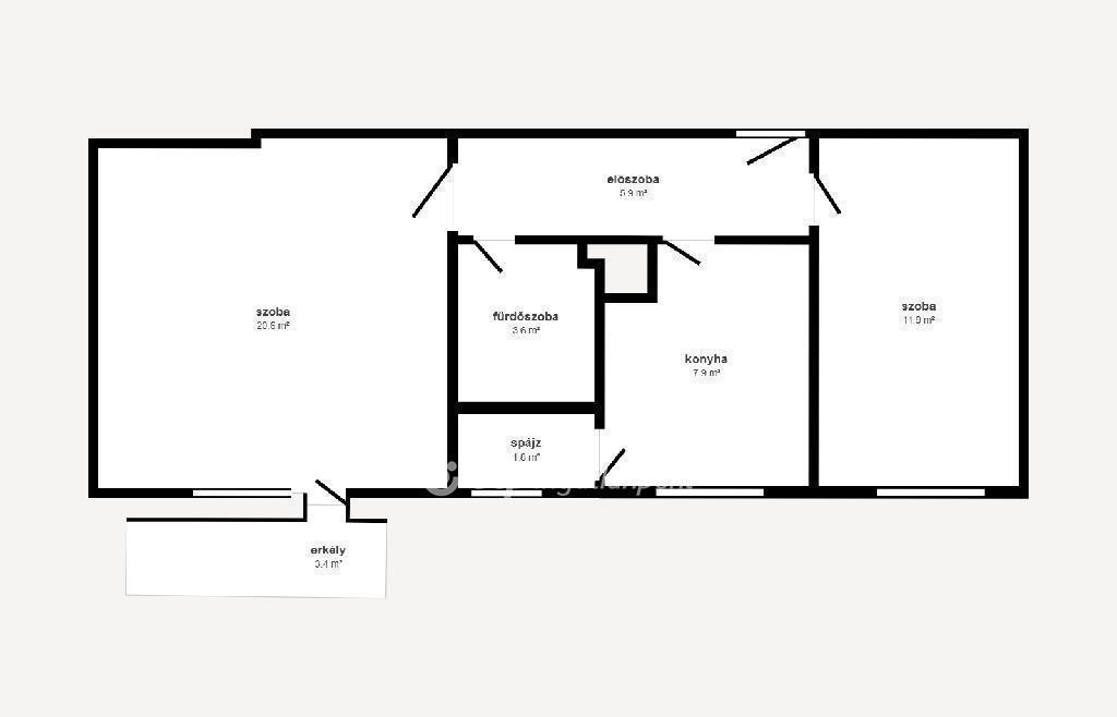
KIVÉTELES AJÁNLAT MISKOLCON! FELÚJÍTOTT 2 SZOBÁS TÉGLALAKÁS AZONNALI KÖLTÖZÉSSEL!
Ne keressen tovább, ha egy kifogástalan állapotú, azonnal költözhető otthont keres Miskolcon, a közkedvelt Torontáli úton! Kínálunk egy rendkívül igényesen felújított, 51 nm-es, 2 szobás téglalakást, amely az első emeleten található, így ideális elhelyezkedést biztosít a házban.
A lakás felújítása során a minőség és a modern esztétika volt a fő szempont. A terek frissen cserélt, új burkolatokat kaptak, és egy vadonatúj, modern konyha került beépítésre, amely garantálja, hogy Önnek már csak a beköltözéssel kelljen foglalkoznia. A melegvíz-ellátásról egy energiatakarékos villanybojler gondoskodik, segítve a fenntartási költségek optimalizálását.
Kényelmét tovább növeli, hogy a lakáshoz tartozik egy kellemes erkély, ahol reggeli kávéját vagy esti pihenését töltheti. Ráadásul a vételár tartalmaz egy saját, zárható pincehelyiséget is, mely értékes extra tárolókapacitást jelent. Tiszta, rendezett, tégla építésű ház, első emeleti elhelyezkedés, ez az ingatlan befektetésnek és első otthonnak is tökéletes választás! Ne maradjon le erről a páratlan lehetőségről!
OTP Banki hátterünknek köszönhetően finanszírozási igényekben (pl. Otthon Start Hitelprogram , Babaváró, Falusi CSOK, CSOK Plusz, Lakáshitel, Személyi kölcsön stb.), illetve biztosítások tekintetében is díjmentesen, soron kívüli ügyintézéssel segítem ügyfeleim! Referenciaszám: M318378
Ne keressen tovább, ha egy kifogástalan állapotú, azonnal költözhető otthont keres Miskolcon, a közkedvelt Torontáli úton! Kínálunk egy rendkívül igényesen felújított, 51 nm-es, 2 szobás téglalakást, amely az első emeleten található, így ideális elhelyezkedést biztosít a házban.
A lakás felújítása során a minőség és a modern esztétika volt a fő szempont. A terek frissen cserélt, új burkolatokat kaptak, és egy vadonatúj, modern konyha került beépítésre, amely garantálja, hogy Önnek már csak a beköltözéssel kelljen foglalkoznia. A melegvíz-ellátásról egy energiatakarékos villanybojler gondoskodik, segítve a fenntartási költségek optimalizálását.
Kényelmét tovább növeli, hogy a lakáshoz tartozik egy kellemes erkély, ahol reggeli kávéját vagy esti pihenését töltheti. Ráadásul a vételár tartalmaz egy saját, zárható pincehelyiséget is, mely értékes extra tárolókapacitást jelent. Tiszta, rendezett, tégla építésű ház, első emeleti elhelyezkedés, ez az ingatlan befektetésnek és első otthonnak is tökéletes választás! Ne maradjon le erről a páratlan lehetőségről!
OTP Banki hátterünknek köszönhetően finanszírozási igényekben (pl. Otthon Start Hitelprogram , Babaváró, Falusi CSOK, CSOK Plusz, Lakáshitel, Személyi kölcsön stb.), illetve biztosítások tekintetében is díjmentesen, soron kívüli ügyintézéssel segítem ügyfeleim! Referenciaszám: M318378