Eladó Lakás
Hirdetéskód: 9227799
Openhouse Miskolc Szentpáli utcai Ingatlaniroda
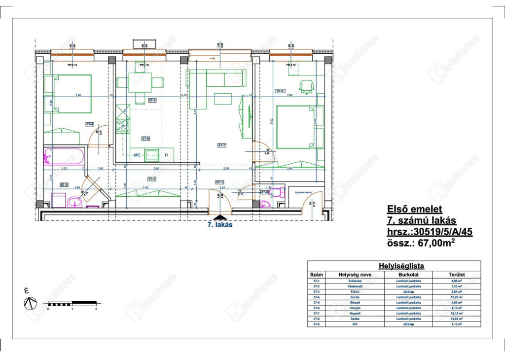
67 m2
ALAPTERÜLET3
SZOBASZÁMnincs megadva
ÉPÍTÉSnincs megadva
FŰTÉS- CSOK igénybe vehető nem
- Tetőtér beépíthető nem
- Építés éve 2025
- Klíma nem
- Szigetelt nem
A+++
A++
A+
A
B
C
D
E
F
G
H
I
Az ingatlan leírása
Az Openhouse Miskolc Soltész Nagy Kálmán utcai Ingatlaniroda kínálatában eladó a #178577 hivatkozási számú miskolci társasházi lakás.
Megkezdődik Miskolc egyik legdinamikusabban fejlődő városrészében, Diósgyőr központjában egy új, modern társasház lakásainak értékesítése. A Törökverő utca 1. szám alatt épülő, prémium kivitelezésű ingatlan 2026 elején kulcsrakész állapotban várja első lakóit.
Ez a lakópark tökéletes választás mindazok számára, akik a kényelmet, a biztonságot és a magas minőséget keresik egy kiváló elhelyezkedésű, mégis nyugodt környezetben.
Főbb jellemzők és előnyök:
Kiváló elhelyezkedés: Az ingatlan Diósgyőr központjában található, ahonnan a tömegközlekedés, üzletek és szolgáltató egységek mindössze pár perc sétával elérhetőek.
Zárt, privát közösség: A társasház egy kizárólag a lakók által használható, körülkerített területen helyezkedik el. A gondozott, térkövezett és füvesített közös udvar parkosított zöldterületként funkcionál, biztosítva a nyugodt pihenést.
Energetikai hatékonyság és modern technológia: Az épület a kor legmagasabb energetikai, üzemeltetési és esztétikai igényeinek megfelel.
Szigetelés: 15 cm homlokzati, 20 cm lapostető és 10 cm szintközi szigetelés garantálja az alacsony rezsiköltséget.
Fűtés és hűtés: A modern hőszivattyús rendszer radiátoros hőleadókkal és kiegészítő fan-coil egységekkel biztosítja a kellemes hőmérsékletet, a hűtésről pedig minden szobában fan-coil gondoskodik.
Nyílászárók: 6 légkamrás műanyag tokszerkezetű, 3 rétegű hőszigetelő üvegezéssel, rejtett redőnytok előkészítéssel.
Praktikus kialakítás: A földszinten különálló garázsok, tárolók és közös helyiségek kerültek kialakításra. A tágas, felülről bevilágított lépcsőház egyedi hangulatot kölcsönöz az épületnek.
Változatos lakásméretek: Az I. és II. emeleten különféle alapterületű lakások közül választhat:
- 6 db 34 m² - 28millió forint,
- 2 db 56 m² - 44millió forint, (eladva)
- 2 db 67 m² - 53millió forint, (II. emeleti eladva)
- 2 db 75 m² - 60millió forint, (I. emeleti eladva)
- 2 db 82 m² - 65millió forint,
- 2 db 99 m² - 79millió forint.
Kulcsrakész átadás: A vételár tartalmazza a magas minőségű burkolatokat, szanitereket, szerelvényeket és belső ajtókat. Az internet és kábeltévé hálózata kiépített, a konyhában minden szükséges gépészeti csatlakozás (tűzhely, mosogatógép, hűtő) biztosított (a konyhabútor nem része az ingatlan árának).
Egyedi mérők: Minden közmű (áram, hidegvíz, melegvíz, hűtés, fűtés) fogyasztása lakásonként külön mérőórával kerül elszámolásra.
A lakásokhoz opcionálisan vásárolható garázs, melynek ára 8,000.000.-Ft, valamint különböző nagyságú tárolók is rendelkezésre állnak!
Finanszírozás:
A vásárláshoz valamennyi állami támogatás (például CSOK Plusz), babaváró hitel és banki hitel igénybe vehető, rugalmas finanszírozási lehetőségeket kínálva.
Ne maradjon le a lehetőségről!
Biztosítsa be álmai otthonát Diósgyőr új lakóparkjában. További információért, műszaki tartalomért és a megvásárolható lakások pontos alaprajzaiért keressen minket bizalommal a megadott elérhetőségeken.
Ha felkeltette érdeklődését ez az eladó miskolci társasházi lakás, vagy bármely más társasházi lakás és bővebb információt szeretne, keressen bizalommal.Hivatkozási szám: #178577
Az Openhouse Miskolc Soltész Nagy Kálmán utcai Ingatlaniroda tagjaként várom Önt az országos hálózatunk teljes kínálatával.
A társasházi lakás vásárláshoz hitelt igényelne? Ingyenes hitelközvetítéssel segít Önnek bankfüggetlen hitelszakértőnk.
További szolgáltatásainkkal (pl. értékbecslés, energetikai tanúsítvány, jogi háttér) is segítjük Önt a vásárlásban.
Az otthon érték. Az ingatlan üzlet.
Irányár: 53000000 Ft
Megkezdődik Miskolc egyik legdinamikusabban fejlődő városrészében, Diósgyőr központjában egy új, modern társasház lakásainak értékesítése. A Törökverő utca 1. szám alatt épülő, prémium kivitelezésű ingatlan 2026 elején kulcsrakész állapotban várja első lakóit.
Ez a lakópark tökéletes választás mindazok számára, akik a kényelmet, a biztonságot és a magas minőséget keresik egy kiváló elhelyezkedésű, mégis nyugodt környezetben.
Főbb jellemzők és előnyök:
Kiváló elhelyezkedés: Az ingatlan Diósgyőr központjában található, ahonnan a tömegközlekedés, üzletek és szolgáltató egységek mindössze pár perc sétával elérhetőek.
Zárt, privát közösség: A társasház egy kizárólag a lakók által használható, körülkerített területen helyezkedik el. A gondozott, térkövezett és füvesített közös udvar parkosított zöldterületként funkcionál, biztosítva a nyugodt pihenést.
Energetikai hatékonyság és modern technológia: Az épület a kor legmagasabb energetikai, üzemeltetési és esztétikai igényeinek megfelel.
Szigetelés: 15 cm homlokzati, 20 cm lapostető és 10 cm szintközi szigetelés garantálja az alacsony rezsiköltséget.
Fűtés és hűtés: A modern hőszivattyús rendszer radiátoros hőleadókkal és kiegészítő fan-coil egységekkel biztosítja a kellemes hőmérsékletet, a hűtésről pedig minden szobában fan-coil gondoskodik.
Nyílászárók: 6 légkamrás műanyag tokszerkezetű, 3 rétegű hőszigetelő üvegezéssel, rejtett redőnytok előkészítéssel.
Praktikus kialakítás: A földszinten különálló garázsok, tárolók és közös helyiségek kerültek kialakításra. A tágas, felülről bevilágított lépcsőház egyedi hangulatot kölcsönöz az épületnek.
Változatos lakásméretek: Az I. és II. emeleten különféle alapterületű lakások közül választhat:
- 6 db 34 m² - 28millió forint,
- 2 db 56 m² - 44millió forint, (eladva)
- 2 db 67 m² - 53millió forint, (II. emeleti eladva)
- 2 db 75 m² - 60millió forint, (I. emeleti eladva)
- 2 db 82 m² - 65millió forint,
- 2 db 99 m² - 79millió forint.
Kulcsrakész átadás: A vételár tartalmazza a magas minőségű burkolatokat, szanitereket, szerelvényeket és belső ajtókat. Az internet és kábeltévé hálózata kiépített, a konyhában minden szükséges gépészeti csatlakozás (tűzhely, mosogatógép, hűtő) biztosított (a konyhabútor nem része az ingatlan árának).
Egyedi mérők: Minden közmű (áram, hidegvíz, melegvíz, hűtés, fűtés) fogyasztása lakásonként külön mérőórával kerül elszámolásra.
A lakásokhoz opcionálisan vásárolható garázs, melynek ára 8,000.000.-Ft, valamint különböző nagyságú tárolók is rendelkezésre állnak!
Finanszírozás:
A vásárláshoz valamennyi állami támogatás (például CSOK Plusz), babaváró hitel és banki hitel igénybe vehető, rugalmas finanszírozási lehetőségeket kínálva.
Ne maradjon le a lehetőségről!
Biztosítsa be álmai otthonát Diósgyőr új lakóparkjában. További információért, műszaki tartalomért és a megvásárolható lakások pontos alaprajzaiért keressen minket bizalommal a megadott elérhetőségeken.
Ha felkeltette érdeklődését ez az eladó miskolci társasházi lakás, vagy bármely más társasházi lakás és bővebb információt szeretne, keressen bizalommal.Hivatkozási szám: #178577
Az Openhouse Miskolc Soltész Nagy Kálmán utcai Ingatlaniroda tagjaként várom Önt az országos hálózatunk teljes kínálatával.
A társasházi lakás vásárláshoz hitelt igényelne? Ingyenes hitelközvetítéssel segít Önnek bankfüggetlen hitelszakértőnk.
További szolgáltatásainkkal (pl. értékbecslés, energetikai tanúsítvány, jogi háttér) is segítjük Önt a vásárlásban.
Az otthon érték. Az ingatlan üzlet.
Irányár: 53000000 Ft