Eladó Lakás
Hirdetéskód: 9192946
Miskolc - OTP Ingatlanpont Iroda
Ez a hirdetés megfelelhet a FIX 3%-os programnak.
Tudj meg többet a részletekről itt.
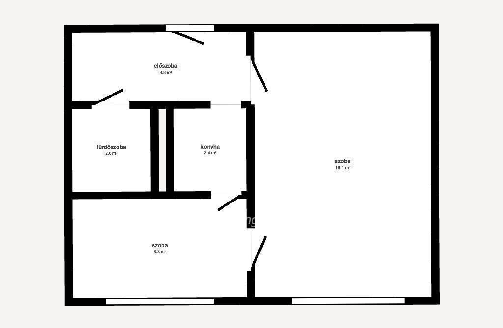
35 m2
ALAPTERÜLET1
SZOBASZÁMnincs megadva
ÉPÍTÉSnincs megadva
FŰTÉS- CSOK igénybe vehető nem
- Tetőtér beépíthető nem
- Építés éve 1970
- Klíma nem
- Szigetelt nem
A+++
A++
A+
A
B
C
D
E
F
G
H
I
Az ingatlan leírása
Első lakásukat vásárlók, befektetők figyelem!! Eladó Diósgyőrben, a Kuruc utcában, 10 emeletes panel épületben egy 35 nm-es 1+1 fél szobás távhős 4.emeleti lakás. Az ingatlanban a komplett villamoshálózat korszerűsítése megtörtént, a nyílászárók redőnnyel felszerelt műanyag ablakokra lettek cserélve, továbbá egy HI-SEC több ponton záródó biztonsági ajtó került beépítésre. A villamoshálózat felújításáról készült képeket, dokumentációkat, a villamosbiztonsági jegyzőkönyvvel egyetemben igény esetén az érdeklődő rendelkezésére bocsájtjuk. Az ingatlan megfelel a 3%-os Otthon Start Program feltételeinek.
OTP Banki hátterünknek köszönhetően finanszírozási igényekben (pl. Otthon Start Hitelprogram, Babaváró, Falusi CSOK, CSOK Plusz, Lakáshitel, Személyi kölcsön stb.), illetve biztosítások tekintetében is díjmentesen, soron kívüli ügyintézéssel segítem ügyfeleim! Jöjjön és tekintsük meg együtt akár hétvégén is! Hívása során hivatkozzon az M315214-es referenciaszámra.
OTP Banki hátterünknek köszönhetően finanszírozási igényekben (pl. Otthon Start Hitelprogram, Babaváró, Falusi CSOK, CSOK Plusz, Lakáshitel, Személyi kölcsön stb.), illetve biztosítások tekintetében is díjmentesen, soron kívüli ügyintézéssel segítem ügyfeleim! Jöjjön és tekintsük meg együtt akár hétvégén is! Hívása során hivatkozzon az M315214-es referenciaszámra.