Eladó Lakás
Hirdetéskód: 9279382

Miskolc - OTP Ingatlanpont Iroda

Felújításhoz személyi kölcsönt keres? Kalkuláljon itt! →
35.00 m2
ALAPTERÜLET
1
SZOBASZÁM
nincs megadva
ÉPÍTÉS
nincs megadva
FŰTÉS
  • CSOK igénybe vehető nem
  • Tetőtér beépíthető nem
  • Építés éve 1985
  • Klíma nem
  • Szigetelt nem
Energetikai besorolás: Nincs meghatározva
A+++
A++
A+
A
B
C
D
E
F
G
H
I

Az MBH Bank személyi kölcsön ajánlata

Fizetett hirdetés
1 millió Ft
6 évre
20 585 Ft/hó
THM: 14.5%
Részletek →
2 millió Ft
6 évre
41 169 Ft/hó
THM: 14.5%
Részletek →
3 millió Ft
6 évre
61 754 Ft/hó
THM: 14.5%
Részletek →

A tájékoztatás nem teljes körű és nem minősül ajánlattételnek.

Az ingatlan leírása

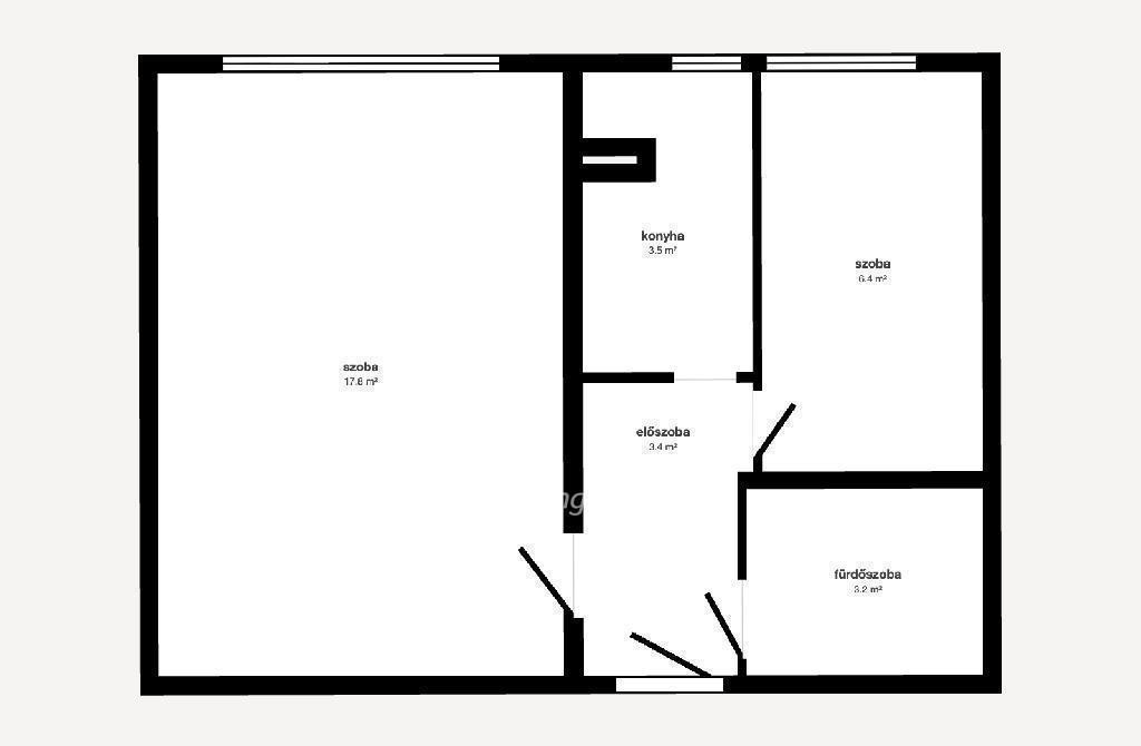
ELADÓ MÁSFÉL SZOBÁS LAKÁS A SZENTPÉTERI KAPU ELEJÉN! Eladó a Macropolis közelében egy 35 nm-es, másfél szobás, földszinti, távfűtéses panellakás! Burkolata laminált padló, előszoba fürdő és konyha járólap. Nyílászárók kicserélve. Fekvésének és különnyíló szobáinak köszönhetően irodának is kiválóan alkalmas! Lépcsőháza csendes, üzletek tömegközlekedés pár percre. Várom hívását hétvégén is!
OTP Banki hátterünknek köszönhetően finanszírozási igényekben (pl. Otthon Start Hitelprogram, Babaváró, Falusi CSOK, CSOK Plusz, Lakáshitel, Személyi kölcsön stb.), illetve biztosítások tekintetében is díjmentesen, soron kívüli ügyintézéssel segítem ügyfeleim!
Referenciaszám: M318954


Virtuális séta: https://my.matterport.com/show/?m=fgg5w4tskz93wz9nwe2igfb6c&views=0&mls=1

Térkép

A hirdető elérhetősége

Miskolc - OTP Ingatlanpont Iroda

Kovács Attila
+36 70 267