Eladó Lakás
Hirdetéskód: 9239505
Miskolc - OTP Ingatlanpont Iroda
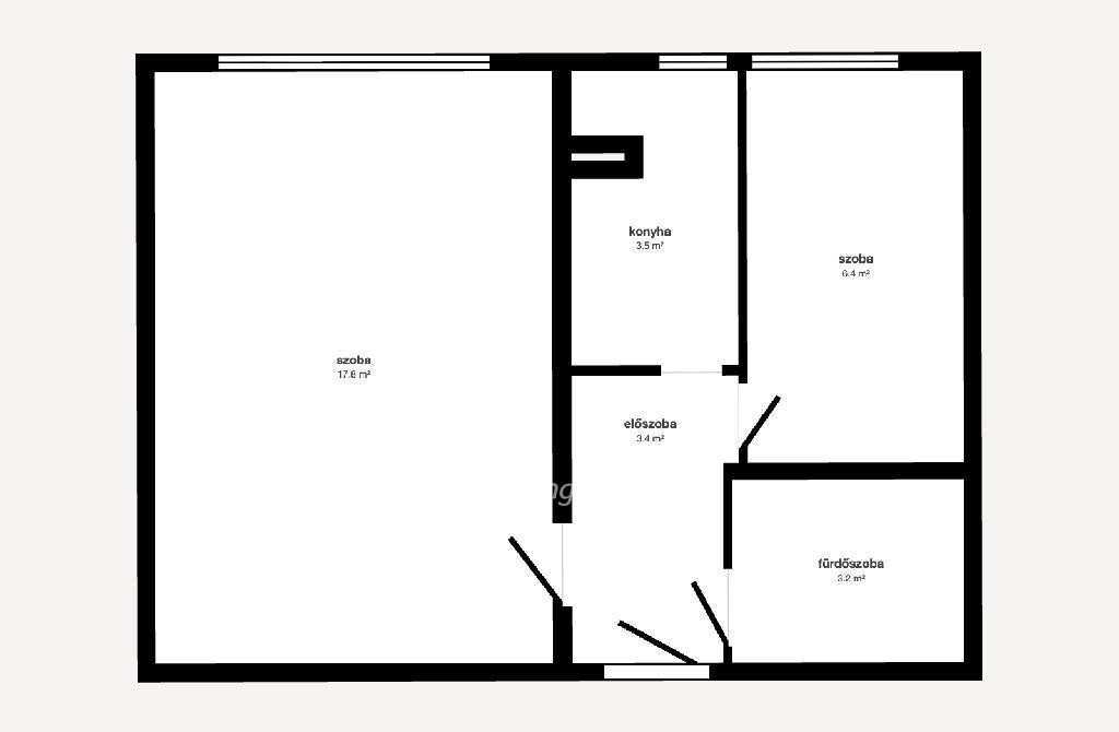
35 m2
ALAPTERÜLET1
SZOBASZÁMnincs megadva
ÉPÍTÉSnincs megadva
FŰTÉS- CSOK igénybe vehető nem
- Tetőtér beépíthető nem
- Építés éve 1985
- Klíma nem
- Szigetelt nem
A+++
A++
A+
A
B
C
D
E
F
G
H
I
Az ingatlan leírása
ELADÓ MÁSFÉL SZOBÁS LAKÁS A SZENTPÉTERI KAPU ELEJÉN! Eladó a Macropolis közelében egy 35 nm-es, másfél szobás, földszinti, távfűtéses panellakás! Burkolata laminált padló, előszoba fürdő és konyha járólap. Nyílászárók kicserélve. Fekvésének és különnyíló szobáinak köszönhetően irodának is kiválóan alkalmas! Lépcsőháza csendes, üzletek tömegközlekedés pár percre. Várom hívását hétvégén is!
OTP Banki hátterünknek köszönhetően finanszírozási igényekben (pl. Otthon Start Hitelprogram, Babaváró, Falusi CSOK, CSOK Plusz, Lakáshitel, Személyi kölcsön stb.), illetve biztosítások tekintetében is díjmentesen, soron kívüli ügyintézéssel segítem ügyfeleim!
Referenciaszám: M318954
Virtuális séta: https://my.matterport.com/show/?m=fgg5w4tskz93wz9nwe2igfb6c&views=0&mls=1
OTP Banki hátterünknek köszönhetően finanszírozási igényekben (pl. Otthon Start Hitelprogram, Babaváró, Falusi CSOK, CSOK Plusz, Lakáshitel, Személyi kölcsön stb.), illetve biztosítások tekintetében is díjmentesen, soron kívüli ügyintézéssel segítem ügyfeleim!
Referenciaszám: M318954
Virtuális séta: https://my.matterport.com/show/?m=fgg5w4tskz93wz9nwe2igfb6c&views=0&mls=1