Eladó Lakás
Hirdetéskód: 9241257
Miskolc - OTP Ingatlanpont Iroda
Ez a hirdetés megfelelhet a FIX 3%-os programnak.
Tudj meg többet a részletekről itt.
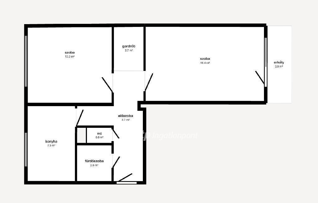
55.00 m2
ALAPTERÜLET2
SZOBASZÁMnincs megadva
ÉPÍTÉSnincs megadva
FŰTÉS- CSOK igénybe vehető nem
- Tetőtér beépíthető nem
- Építés éve 1980
- Klíma nem
- Szigetelt nem
A+++
A++
A+
A
B
C
D
E
F
G
H
I
Az ingatlan leírása
Eladó Miskolc Avason a Szentgyörgy utca központi, jó lokációjú részén egy 55 nm-es, 2 különnyíló szobás + gardróbos, teljeskörűen felújított távfűtéses lakás 10 emeletes panelépület 4. emeletén. A felújítás érintette a nyílászárók cseréjét hőszigetelt műanyag ablakokra, új, több ponton záródó biztonsági bejárati ajtó került beszerelésre. A lakás teljeskörű gépészeti felújításon esett át.
A nappaliban egy vadonatúj, garanciális Gree hűtő-fűtő klíma gondoskodik a kellemes hőmérsékletről. Az erkélyen a burkolatok és üvegek cseréje megtörtént. A szobák laminált parkettával, a többi helyiség járólappal burkolt, a falak festettek.
A lakás kiváló elhelyezkedésű: a közelben boltok, iskola, óvoda, orvosi rendelő, posta és buszmegállók is kényelmes sétatávolságra találhatóak. A parkolás a ház körül ingyenesen megoldott.
Ideális választás fiatal pároknak, egyetemistáknak (a Miskolci Egyetem közelsége miatt) idősebb korosztálynak, befektetőknek, hiszen az ingatlan állapota miatt magas áron bérbe adható. Várom megtisztelő hívását akár hétvégén is!
A nappaliban egy vadonatúj, garanciális Gree hűtő-fűtő klíma gondoskodik a kellemes hőmérsékletről. Az erkélyen a burkolatok és üvegek cseréje megtörtént. A szobák laminált parkettával, a többi helyiség járólappal burkolt, a falak festettek.
A lakás kiváló elhelyezkedésű: a közelben boltok, iskola, óvoda, orvosi rendelő, posta és buszmegállók is kényelmes sétatávolságra találhatóak. A parkolás a ház körül ingyenesen megoldott.
Ideális választás fiatal pároknak, egyetemistáknak (a Miskolci Egyetem közelsége miatt) idősebb korosztálynak, befektetőknek, hiszen az ingatlan állapota miatt magas áron bérbe adható. Várom megtisztelő hívását akár hétvégén is!