Eladó Lakás
Hirdetéskód: 9180010
Miskolc - OTP Ingatlanpont Iroda
Ez a hirdetés megfelelhet a FIX 3%-os programnak.
Tudj meg többet a részletekről itt.
97 m2
ALAPTERÜLET4
SZOBASZÁMnincs megadva
ÉPÍTÉSnincs megadva
FŰTÉS- CSOK igénybe vehető nem
- Tetőtér beépíthető nem
- Építés éve 1995
- Klíma nem
- Szigetelt nem
A+++
A++
A+
A
B
C
D
E
F
G
H
I
Az ingatlan leírása
Kivételes lehetőség Miskolc belvárosában - Ritkaságszámba menő lakás eladó udvari beállóval!
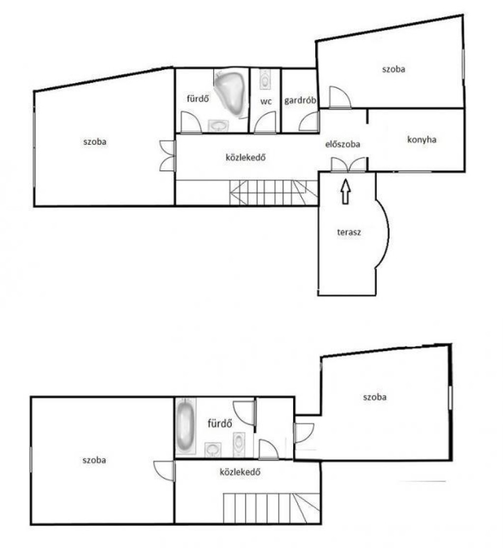
Kedvező áron eladó egy tulajdoni lapon 97nm- es, de a valóságban bruttó 110 m2-es, két szintes, 4 szobás, 2 fürdőszobás, klimatizált lakás Miskolc szívében, egyik igényes, szigetelt, téglaépítésű házában. Központi elhelyezkedése ellenére nagyon csendes lakás. Az ingatlan nem polgári, hanem újabb építésű, így korszerű elrendezéssel és kiváló állapottal rendelkezik.
A lakásban új konyhabútor, központi fűtés, saját pince, valamint egy ritka extrának számító, udvari gépkocsibeálló is a leendő tulajdonos kényelmét szolgálja zárható elektromos kapuval.
Elhelyezkedése páratlan: Miskolc legjobb részén, központi, mégis csendes környezetben található, ahol minden fontos szolgáltatás, bolt, iskola, hivatal, tömegközlekedés pár perc sétával elérhető.
Kiváló befektetési lehetőség is, hiszen a lokáció miatt a lakás könnyen és jól kiadható, ráadásul ezen a környéken rendkívül ritka az eladó ingatlan ? ez tovább növeli az értékét és megtérülését.
Az ingatlan hitelképes, és CSOK (3 vagy több gyermek esetén) is igénybe vehető.
Ne hagyja ki ezt az egyedülálló lehetőséget - ilyen lakás ritkán kerül a piacra!
Kedvező áron eladó egy tulajdoni lapon 97nm- es, de a valóságban bruttó 110 m2-es, két szintes, 4 szobás, 2 fürdőszobás, klimatizált lakás Miskolc szívében, egyik igényes, szigetelt, téglaépítésű házában. Központi elhelyezkedése ellenére nagyon csendes lakás. Az ingatlan nem polgári, hanem újabb építésű, így korszerű elrendezéssel és kiváló állapottal rendelkezik.
A lakásban új konyhabútor, központi fűtés, saját pince, valamint egy ritka extrának számító, udvari gépkocsibeálló is a leendő tulajdonos kényelmét szolgálja zárható elektromos kapuval.
Elhelyezkedése páratlan: Miskolc legjobb részén, központi, mégis csendes környezetben található, ahol minden fontos szolgáltatás, bolt, iskola, hivatal, tömegközlekedés pár perc sétával elérhető.
Kiváló befektetési lehetőség is, hiszen a lokáció miatt a lakás könnyen és jól kiadható, ráadásul ezen a környéken rendkívül ritka az eladó ingatlan ? ez tovább növeli az értékét és megtérülését.
Az ingatlan hitelképes, és CSOK (3 vagy több gyermek esetén) is igénybe vehető.
Ne hagyja ki ezt az egyedülálló lehetőséget - ilyen lakás ritkán kerül a piacra!