Eladó Lakás
                        
                        
                            Hirdetéskód: 9199453
                        
                    Miskolc - OTP Ingatlanpont Iroda
                                    Ez a hirdetés megfelelhet a FIX 3%-os programnak.
                                    Tudj meg többet a részletekről itt.
                                
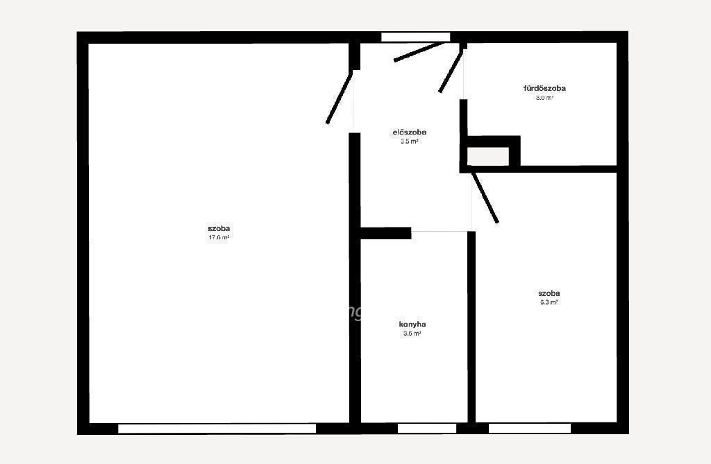
35 m2
ALAPTERÜLET1
SZOBASZÁMnincs megadva
ÉPÍTÉSnincs megadva
FŰTÉS- CSOK igénybe vehető nem
- Tetőtér beépíthető nem
- Építés éve 1980
- Klíma nem
- Szigetelt nem
                            
                                    A+++                                
                        
                                                
                            
                                    A++                                
                        
                                                
                            
                                    A+                                
                        
                                                
                            
                                    A                                
                        
                                                
                            
                                    B                                
                        
                                                
                            
                                    C                                
                        
                                                
                            
                                    D                                
                        
                                                
                            
                                    E                                
                        
                                                
                            
                                    F                                
                        
                                                
                            
                                    G                                
                        
                                                
                            
                                    H                                
                        
                                                
                            
                                    I                                
                        
                                            Az ingatlan leírása
                            Befektetők, első lakásvásárlók figyelem!!! Miskolc-Komlóstető zöldövezeti részén, a Szeder utcában egy 1,5 szobás jó állapotú magasföldszinti lakás eladó.  Az ingatlanon az elmúlt időszakban az alábbi felújítások történtek:  MEGA  biztonsági, hő és hangszigetelő ajtó került beépítésre a beltéri ajtókkal egyetemben. A nyílászárók korszerű redőnnyel felszerelt műanyag ablakokra lettek cserélve. Az ingatlan fűtése házközponti egyedi mérővel, míg a melegvízről villanybojler gondoskodik.  A felújítások közül a villany-, valamint a vízvezetékek sem maradtak ki. A lakásban jelenleg bérlő lakik, aki a továbbiakban szívesen maradna, így befektetésnek is tökéletesen alkalmas. Az ingatlan központi helyen van, buszmegálló, bolt, iskola, óvoda, játszótér mind pár perc sétára találhatók. Alacsony rezsivel fenntartható lakás, így befektetőknek, első otthonukat vásárlóknak egyaránt kiváló választás.  Az ingatlan megfelel az Otthon Start 3%-os hitel feltételeinek. Jöjjön és tekintsük meg együtt, akár hétvégén is! 
OTP Banki hátterünknek köszönhetően finanszírozási igényekben (pl. Otthon Start Hitelprogram, Babaváró, Falusi CSOK, CSOK Plusz, Lakáshitel, Személyi kölcsön stb.), illetve biztosítások tekintetében is díjmentesen, soron kívüli ügyintézéssel segítem ügyfeleim! Az adásvételhez igény esetén ügyvédi hátteret biztosítunk. Hívása során hivatkozzon az M314721-es referenciaszámra.
                    OTP Banki hátterünknek köszönhetően finanszírozási igényekben (pl. Otthon Start Hitelprogram, Babaváró, Falusi CSOK, CSOK Plusz, Lakáshitel, Személyi kölcsön stb.), illetve biztosítások tekintetében is díjmentesen, soron kívüli ügyintézéssel segítem ügyfeleim! Az adásvételhez igény esetén ügyvédi hátteret biztosítunk. Hívása során hivatkozzon az M314721-es referenciaszámra.
 
                                 
                                 
                             
                             
                                             
                                             
                                             
                                             
                                             
                                             
                                             
                                             
                                             
                                             
                                             
                                             
                                             
                                             
                                             
                                             
                                             
                                             
                                             
                                             
                                             
                                             
                                             
                                             
                                             
                                             
                                             
                                             
                                             
                                             
                                             
                                             
                                             
                                             
                                             
                                             
                                             
                                             
                                             
                                             
                                             
                                             
                                             
                                             
                                             
                                             
                                             
                                             
                                             
                                             
                                             
                                             
                                             
                                             
                                             
                                             
                                             
                                             
                                             
                                             
                                             
                                             
                                             
                                             
                                             
                                             
                                             
                                             
                                             
                                             
                                             
                                             
                                             
                                             
                                             
                                             
                                             
                             
                             
                             
                             
                             
                             
                             
                             
                            