Eladó Lakás
Hirdetéskód: 9186092
Miskolc - OTP Ingatlanpont Iroda
Ez a hirdetés megfelelhet a FIX 3%-os programnak.
Tudj meg többet a részletekről itt.
103 m2
ALAPTERÜLET3
SZOBASZÁMnincs megadva
ÉPÍTÉSnincs megadva
FŰTÉS- CSOK igénybe vehető nem
- Tetőtér beépíthető nem
- Építés éve 2010
- Klíma nem
- Szigetelt nem
A+++
A++
A+
A
B
C
D
E
F
G
H
I
Az ingatlan leírása
Eladó modern tetőtéri lakás Miskolc szívében, a Csabai kapu közkedvelt részén!
Miskolcon, a Petneházy bérházaknál kínálunk megvételre egy különleges hangulatú, világos, tetőtéri lakást, amely nemcsak kényelmes otthonként, de kiváló befektetésként is megállja a helyét!
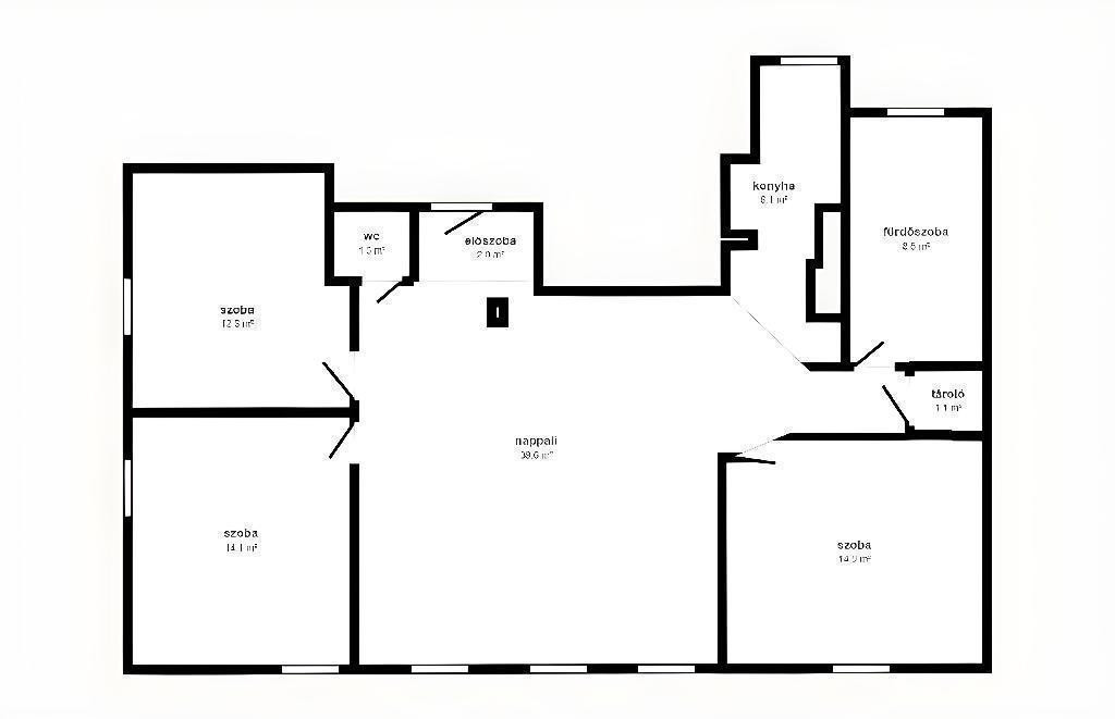
A lakás összesen 103 négyzetméter alapterületű, amelyből 69 nm hasznos területként szolgál, tökéletes elosztásának köszönhetően pedig minden négyzetméter jól kihasználható.
Az ingatlan 3 külön nyíló szobával és egy tágas nappalival rendelkezik, így akár egy 4-5 fős család számára is ideális. A nappalit Velux tetőtéri ablakok árasztják el fénnyel, amelyek külső hővédő és belső fényzáró rolókkal vannak felszerelve, így az év minden napján kellemes, otthonos hangulat uralkodik a lakásban.
A gázcirkós fűtésrendszer, padló- és radiátoros fűtés kombinációjával, garantálja a komfortos meleget a hidegebb hónapokban, míg a külön beépített hűtő-fűtő klíma a nyári hőséget teszi elviselhetővé. A lakás alacsony fenntartási költségei pedig még vonzóbbá teszik.
Az ingatlan elhelyezkedése kiváló, a közelben minden fontos szolgáltatás megtalálható: óvoda, iskola, üzletek (pl. Penny), posta , és a belváros csupán 5-8 perc alatt, három buszmegállónyi távolságra elérhető.
Befektetésként is kiváló választás a közeli Miskolci Egyetemnek köszönhetően stabil bérlői kör biztosított. A lakás szobái jól elkülöníthetők, így akár külön-külön is bérbe adhatók.
Parkolás díjmentesen megoldható az épület előtt.
Központi helyen fekszik az ingatlan. Iskola, óvoda, bolt, tömegközlekedés, autópálya 5 percen belül elérhető.
OTP Banki hátterünknek köszönhetően finanszírozási igényekben (pl. Otthon Start Hitelprogram , Babaváró, Falusi CSOK, CSOK Plusz, Lakáshitel, Személyi kölcsön stb.), illetve biztosítások tekintetében is díjmentesen, soron kívüli ügyintézéssel segítem ügyfeleim! Referenciaszám: M314048
Miskolcon, a Petneházy bérházaknál kínálunk megvételre egy különleges hangulatú, világos, tetőtéri lakást, amely nemcsak kényelmes otthonként, de kiváló befektetésként is megállja a helyét!
A lakás összesen 103 négyzetméter alapterületű, amelyből 69 nm hasznos területként szolgál, tökéletes elosztásának köszönhetően pedig minden négyzetméter jól kihasználható.
Az ingatlan 3 külön nyíló szobával és egy tágas nappalival rendelkezik, így akár egy 4-5 fős család számára is ideális. A nappalit Velux tetőtéri ablakok árasztják el fénnyel, amelyek külső hővédő és belső fényzáró rolókkal vannak felszerelve, így az év minden napján kellemes, otthonos hangulat uralkodik a lakásban.
A gázcirkós fűtésrendszer, padló- és radiátoros fűtés kombinációjával, garantálja a komfortos meleget a hidegebb hónapokban, míg a külön beépített hűtő-fűtő klíma a nyári hőséget teszi elviselhetővé. A lakás alacsony fenntartási költségei pedig még vonzóbbá teszik.
Az ingatlan elhelyezkedése kiváló, a közelben minden fontos szolgáltatás megtalálható: óvoda, iskola, üzletek (pl. Penny), posta , és a belváros csupán 5-8 perc alatt, három buszmegállónyi távolságra elérhető.
Befektetésként is kiváló választás a közeli Miskolci Egyetemnek köszönhetően stabil bérlői kör biztosított. A lakás szobái jól elkülöníthetők, így akár külön-külön is bérbe adhatók.
Parkolás díjmentesen megoldható az épület előtt.
Központi helyen fekszik az ingatlan. Iskola, óvoda, bolt, tömegközlekedés, autópálya 5 percen belül elérhető.
OTP Banki hátterünknek köszönhetően finanszírozási igényekben (pl. Otthon Start Hitelprogram , Babaváró, Falusi CSOK, CSOK Plusz, Lakáshitel, Személyi kölcsön stb.), illetve biztosítások tekintetében is díjmentesen, soron kívüli ügyintézéssel segítem ügyfeleim! Referenciaszám: M314048