Eladó Lakás
Hirdetéskód: 9308066
Miskolc - OTP Ingatlanpont Iroda
Felújításhoz személyi kölcsönt keres? Kalkuláljon itt! →
Ez a hirdetés megfelelhet a FIX 3%-os programnak.
Tudj meg többet a részletekről itt.
83.00 m2
ALAPTERÜLET3
SZOBASZÁMnincs megadva
ÉPÍTÉSEgyéb fűtés
FŰTÉS- CSOK igénybe vehető nem
- Tetőtér beépíthető nem
- Építés éve 1930
- Fűtés Egyéb fűtés
- Klíma nem
- Szigetelt nem
A+++
A++
A+
A
B
C
D
E
F
G
H
I
Az ingatlan leírása
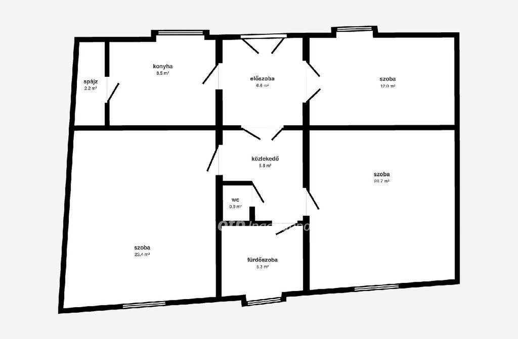
Miskolc belvárosának egyik legkedveltebb részén kínálunk megvételre egy 83 nm alapterületű, három tágas szobával rendelkező lakást, amely ideális választás mindazok számára, akik a városi élet kényelmét szeretnék élvezni, mégis nyugodt, zöld környezetben keresnek otthont.
Az ingatlan praktikus elrendezésű: három külön nyíló, világos szoba, fürdőszoba, külön WC, spájz, kényelmes előtér és közlekedő biztosítja a komfortos mindennapokat. A lakás előtt található parkosított, elzárt udvar különleges hangulatot teremt. A lakáshoz tartozik egy 28 nm-es pince is, amely kiváló tárolási lehetőséget biztosít.
Az ingatlan jó állapotú, az elmúlt években több korszerűsítés történt: ennek keretében megújult a fürdőszoba, valamint új kondenzációs gázkazán került beépítésre. Az elektromos hálózat részben felújított. A fürdőszoba különlegessége a masszázsfunkciós kádas zuhanykabin, amely extra kényelmet biztosít. Az elhelyezkedésének és adottságainak köszönhetően a lakás ideális lehet családoknak, pároknak vagy akár befektetési célra is. OTP Banki hátterünknek köszönhetően finanszírozási igényekben (pl. Otthon Start Hitelprogram, Babaváró, Falusi CSOK, CSOK Plusz, Lakáshitel, Személyi kölcsön stb.), illetve biztosítások tekintetében is állunk ügyfeleink rendelkezésére! Hívása során hivatkozzon az M322490-es referenciaszámra.
Az ingatlan praktikus elrendezésű: három külön nyíló, világos szoba, fürdőszoba, külön WC, spájz, kényelmes előtér és közlekedő biztosítja a komfortos mindennapokat. A lakás előtt található parkosított, elzárt udvar különleges hangulatot teremt. A lakáshoz tartozik egy 28 nm-es pince is, amely kiváló tárolási lehetőséget biztosít.
Az ingatlan jó állapotú, az elmúlt években több korszerűsítés történt: ennek keretében megújult a fürdőszoba, valamint új kondenzációs gázkazán került beépítésre. Az elektromos hálózat részben felújított. A fürdőszoba különlegessége a masszázsfunkciós kádas zuhanykabin, amely extra kényelmet biztosít. Az elhelyezkedésének és adottságainak köszönhetően a lakás ideális lehet családoknak, pároknak vagy akár befektetési célra is. OTP Banki hátterünknek köszönhetően finanszírozási igényekben (pl. Otthon Start Hitelprogram, Babaváró, Falusi CSOK, CSOK Plusz, Lakáshitel, Személyi kölcsön stb.), illetve biztosítások tekintetében is állunk ügyfeleink rendelkezésére! Hívása során hivatkozzon az M322490-es referenciaszámra.