Eladó Lakás
Hirdetéskód: 9295455
Miskolc - OTP Ingatlanpont Iroda
Felújításhoz személyi kölcsönt keres? Kalkuláljon itt! →
Ez a hirdetés megfelelhet a FIX 3%-os programnak.
Tudj meg többet a részletekről itt.
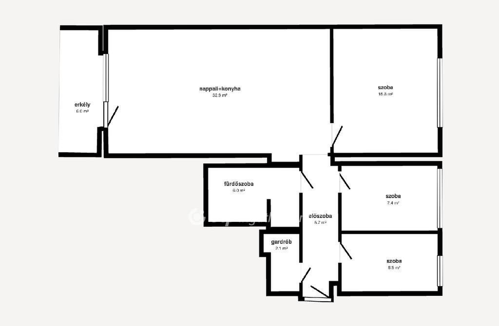
80.00 m2
ALAPTERÜLET3
SZOBASZÁMnincs megadva
ÉPÍTÉSGáz (cirkó)
FŰTÉS- CSOK igénybe vehető nem
- Tetőtér beépíthető nem
- Építés éve 1970
- Fűtés Gáz (cirkó)
- Klíma nem
- Szigetelt nem
A+++
A++
A+
A
B
C
D
E
F
G
H
I
Az ingatlan leírása
VILÁGSZÍNVONALÚ OTTHON MISKOLC SZÍVÉBEN, AHOL A LUXUS ALAPFELSZERELTSÉG !
Ez az ingatlan a világ bármelyik pontján megállná a helyét, hiszen a legmagasabb nemzetközi sztenderdeknek megfelelő minőségben született újjá Miskolc abszolút belvárosában, a Patak utcában, a Széchenyi utcától és a nyüzsgő sétálóutcától mindössze pár lépésre. A minden részletében teljes körűen felújított, különleges atmoszférájú otthon bátran kijelenthetően a környék egyik legfantasztikusabb ingatlana, melynek belső kialakítása során a legmagasabb szakmai színvonal volt az irányadó. A lakberendező által megálmodott tágas amerikai konyhás nappalit és a három külön nyíló hálószobát egy Magyarországon magasan jegyzett asztalosmester által tervezett és készített konyhabútor ékesíti, mely gyakorlatilag milliméter pontos illesztésekkel készült. A konyha teljes körűen felszerelt, vadonatúj, garanciális konyhagépekkel rendelkezik, köztük egy felső kategóriás, érintés nélküli vezérléssel és távirányítóval rendelkező páraelszívóval, melyek még soha nem voltak használatban, így az új lakónak a főzés azonnal élménnyé válik.
A lakás egyik legfőbb ékköve a hatalmas méretű, több mint 6 nm-es erkély, amely tágas teret biztosít a pihenéshez és tovább növeli a lakók komfortérzetét. Az ingatlan műszaki állapota abszolút kifogástalan és jövőbiztos, hiszen a teljes körűen, garanciálisan kicserélt víz- és villanyvezetékek mellett a fűtésről és a melegvíz-ellátásról egy vadonatúj, garanciális 24 kW-os Bosch kombi gázcirkó kazán gondoskodik, a nyári hőségben pedig egy vadonatúj, prémium kategóriás klímaberendezés biztosítja a hűvöset. A kimagasló minőségű, garanciális hidegburkolatokat egy okleveles mesterember fektette le csúcsminőségben, a fürdőszobában pedig zuhanyzó és szabadon álló kád is helyet kapott, szintén garanciális, prémium szaniterekkel és beépített tárolókkal.
Az elhelyezkedés páratlan infrastruktúrát és kényelmet nyújt: közvetlen szomszédságban található a Nemzeti Színház, gyalogosan pár percre pedig posta, modern gyógyszertár, dohánybolt és lottózó is elérhető. A mindennapi bevásárlást számos kisebb üzlet, pékség és élelmiszerbolt segíti, de a belváros lüktetéséhez hozzátartoznak a közeli hangulatos éttermek, kávézók és egyéb vendéglátóhelyek, valamint a Packeta átvevőhely is. A lakás kényelmét tovább fokozzák a vadonatúj, kiváló hang- és hőszigetelt, redőnnyel felszerelt műanyag nyílászárók, melyeknek köszönhetően a központi lokáció ellenére is teljes nyugalom és csend uralkodik az otthonban. A liftes épület második emeleti elhelyezkedése minden korosztály számára ideális, a lakáshoz tartozó saját udvari beálló pedig valódi kincs és biztonságos megoldás a belváros szívében. Ez az ingatlan az élő bizonyíték arra, hogy a minőségi, garanciális kivitelezés és a tökéletes lokáció találkozása valódi értéket teremt.
Érdeklődését és hívását a hét minden napján szívesen fogadom: hétfőtől szombatig 7:00 és 21:00 óra között, vasárnap pedig 8:00 és 20:00 óra között várom megtisztelő megkeresését.
OTP Banki hátterünknek köszönhetően finanszírozási igényekben (pl. Otthon Start Hitelprogram , Babaváró, Falusi CSOK, CSOK Plusz, Lakáshitel, Személyi kölcsön stb.), illetve biztosítások tekintetében is díjmentesen, soron kívüli ügyintézéssel segítem ügyfeleim! Kérem tekintse meg, virtuális sétámat is. Hívása során hivatkozzon az M323613 referenciaszámra!
Ez az ingatlan a világ bármelyik pontján megállná a helyét, hiszen a legmagasabb nemzetközi sztenderdeknek megfelelő minőségben született újjá Miskolc abszolút belvárosában, a Patak utcában, a Széchenyi utcától és a nyüzsgő sétálóutcától mindössze pár lépésre. A minden részletében teljes körűen felújított, különleges atmoszférájú otthon bátran kijelenthetően a környék egyik legfantasztikusabb ingatlana, melynek belső kialakítása során a legmagasabb szakmai színvonal volt az irányadó. A lakberendező által megálmodott tágas amerikai konyhás nappalit és a három külön nyíló hálószobát egy Magyarországon magasan jegyzett asztalosmester által tervezett és készített konyhabútor ékesíti, mely gyakorlatilag milliméter pontos illesztésekkel készült. A konyha teljes körűen felszerelt, vadonatúj, garanciális konyhagépekkel rendelkezik, köztük egy felső kategóriás, érintés nélküli vezérléssel és távirányítóval rendelkező páraelszívóval, melyek még soha nem voltak használatban, így az új lakónak a főzés azonnal élménnyé válik.
A lakás egyik legfőbb ékköve a hatalmas méretű, több mint 6 nm-es erkély, amely tágas teret biztosít a pihenéshez és tovább növeli a lakók komfortérzetét. Az ingatlan műszaki állapota abszolút kifogástalan és jövőbiztos, hiszen a teljes körűen, garanciálisan kicserélt víz- és villanyvezetékek mellett a fűtésről és a melegvíz-ellátásról egy vadonatúj, garanciális 24 kW-os Bosch kombi gázcirkó kazán gondoskodik, a nyári hőségben pedig egy vadonatúj, prémium kategóriás klímaberendezés biztosítja a hűvöset. A kimagasló minőségű, garanciális hidegburkolatokat egy okleveles mesterember fektette le csúcsminőségben, a fürdőszobában pedig zuhanyzó és szabadon álló kád is helyet kapott, szintén garanciális, prémium szaniterekkel és beépített tárolókkal.
Az elhelyezkedés páratlan infrastruktúrát és kényelmet nyújt: közvetlen szomszédságban található a Nemzeti Színház, gyalogosan pár percre pedig posta, modern gyógyszertár, dohánybolt és lottózó is elérhető. A mindennapi bevásárlást számos kisebb üzlet, pékség és élelmiszerbolt segíti, de a belváros lüktetéséhez hozzátartoznak a közeli hangulatos éttermek, kávézók és egyéb vendéglátóhelyek, valamint a Packeta átvevőhely is. A lakás kényelmét tovább fokozzák a vadonatúj, kiváló hang- és hőszigetelt, redőnnyel felszerelt műanyag nyílászárók, melyeknek köszönhetően a központi lokáció ellenére is teljes nyugalom és csend uralkodik az otthonban. A liftes épület második emeleti elhelyezkedése minden korosztály számára ideális, a lakáshoz tartozó saját udvari beálló pedig valódi kincs és biztonságos megoldás a belváros szívében. Ez az ingatlan az élő bizonyíték arra, hogy a minőségi, garanciális kivitelezés és a tökéletes lokáció találkozása valódi értéket teremt.
Érdeklődését és hívását a hét minden napján szívesen fogadom: hétfőtől szombatig 7:00 és 21:00 óra között, vasárnap pedig 8:00 és 20:00 óra között várom megtisztelő megkeresését.
OTP Banki hátterünknek köszönhetően finanszírozási igényekben (pl. Otthon Start Hitelprogram , Babaváró, Falusi CSOK, CSOK Plusz, Lakáshitel, Személyi kölcsön stb.), illetve biztosítások tekintetében is díjmentesen, soron kívüli ügyintézéssel segítem ügyfeleim! Kérem tekintse meg, virtuális sétámat is. Hívása során hivatkozzon az M323613 referenciaszámra!