Eladó Lakás
Hirdetéskód: 9217314
Otthon Centrum Eger Mátyás király út
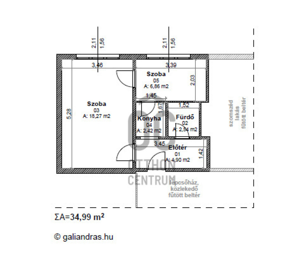
35 m2
ALAPTERÜLET2
SZOBASZÁMnincs megadva
ÉPÍTÉSTávfűtés
FŰTÉS- CSOK igénybe vehető nem
- Tetőtér beépíthető nem
- Építés éve 1980
- Fűtés Távfűtés
- Klíma nem
- Szigetelt nem
A+++
A++
A+
A
B
C
D
E
F
G
H
I
Az ingatlan leírása
Fedezd fel ezt a kivételes lehetőséget Miskolc belvárosában, ahol a modern életstílus és a kényelmes otthon találkozik! Ez a frissen felújított, 35 nm-es lakás tökéletes választás fiatal felnőttek számára, akik értékelik a városi élet adta előnyöket. A Malomszög utcában elhelyezkedő ingatlan igazi gyöngyszem, amely nemcsak világos tereivel, hanem csendes környezetével is elvarázsol. A lakásban két szoba található, amelyek tágasak és jól kihasználhatóak, így ideálisak lehetnek akár otthoni munkavégzésre, akár baráti összejövetelekre. A fürdőszobában a kád és a szaniterek is újak. A villamos hálózat és a vízhálózat is megújult. A burkolatok - laminált padló, járólap, fali csempe - szintén újak. A távfűtés egyedi mérés nélkül biztosítja a kellemes hőmérsékletet a hideg téli hónapokban is, így a lakás mindig otthonos marad. A környék ellátottsága kiváló, hiszen a közeli boltok, éttermek és szórakozási lehetőségek mindössze néhány lépésre találhatóak. A belvárosi elhelyezkedés lehetővé teszi, hogy a város legfontosabb intézményei, mint például a munkahelyek, iskolák és orvosi rendelők könnyen megközelíthetők legyenek. A közlekedés szempontjából is kitűnő, hiszen a tömegközlekedési eszközök, mint a buszok és villamosok, gyorsan és kényelmesen elérhetőek, így sosem kell aggódnod a közlekedés miatt. Ez a tehermentes ingatlan egy felkapott környéken helyezkedik el, ahol a fiatalok számára vonzó közösségi élet bontakozik ki. A csendes utcák pedig garantálják, hogy a nyugalom és a pihenés mindig elérhető legyen a mindennapokban. Az ingatlan állapota kiváló, így azonnal költözhető, nem kell hónapokat várnod a felújításokra. Ha egy olyan lakást keresel, amely ötvözi a modern kényelmet a városi élet nyújtotta lehetőségekkel, ne habozz! Ez a világos, belvárosi lakás a tökéletes választás számodra. Bármilyen kérdésed van, bátran keress meg, és segítek mindenben, amire szükséged van az ingatlanvásárlás során. Bízz bennem, és tedd meg az első lépést az új otthonod felé!
Az ingatlan az OC "Felező" portfóliójába tartozik! Bővebb információ az OC weboldalán olvasható!
Ez az ingatlan a "Felező csomag" megbízási portfólióhoz tartozik. Részletek az Otthon Centrum weboldalán.
Az ingatlan az OC "Felező" portfóliójába tartozik! Bővebb információ az OC weboldalán olvasható!
Ez az ingatlan a "Felező csomag" megbízási portfólióhoz tartozik. Részletek az Otthon Centrum weboldalán.