Eladó Lakás
Hirdetéskód: 9310353

Miskolc - OTP Ingatlanpont Iroda

Felújításhoz személyi kölcsönt keres? Kalkuláljon itt! →
FIX 3% Program

Ez a hirdetés megfelelhet a FIX 3%-os programnak.
Tudj meg többet a részletekről itt.

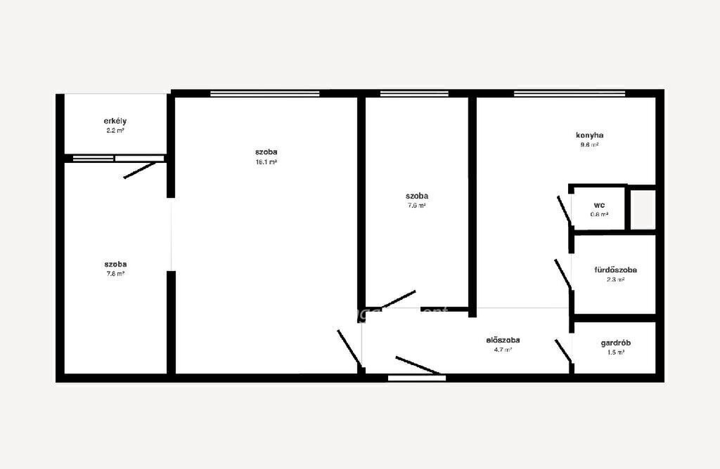
54.00 m2
ALAPTERÜLET
1
SZOBASZÁM
nincs megadva
ÉPÍTÉS
Távfűtés egyedi méréssel
FŰTÉS
  • CSOK igénybe vehető nem
  • Tetőtér beépíthető nem
  • Építés éve 1980
  • Fűtés Távfűtés egyedi méréssel
  • Klíma nem
  • Szigetelt nem
Energetikai besorolás: Nincs meghatározva
A+++
A++
A+
A
B
C
D
E
F
G
H
I

Az MBH Bank személyi kölcsön ajánlata

Fizetett hirdetés
1 millió Ft
6 évre
20 585 Ft/hó
THM: 14.5%
Részletek →
2 millió Ft
6 évre
41 169 Ft/hó
THM: 14.5%
Részletek →
3 millió Ft
6 évre
61 754 Ft/hó
THM: 14.5%
Részletek →

A tájékoztatás nem teljes körű és nem minősül ajánlattételnek.

Az ingatlan leírása

Miskolc Diósgyőr városrészében kínálok megvételre egy 54 nm alapterületű, 1+2 félszobás erkélyes lakást, panelprogramos épület tizedik emeletén. Az ingatlan praktikus elrendezésű, amely ideális lehet családok, párok vagy akár befektetők számára is. A lakás átlagos állapotú, tehermentes, azonnal költözhető. A lakás fenntartási költsége kedvező, a panelprogramnak és az egyedi mérésű távfűtésnek köszönhetően jól tervezhető rezsivel. Kiváló infrastruktúra jellemzi a környéket: a közelben megtalálhatóak élelmiszerboltok, bevásárlási lehetőségek, gyógyszertár, iskola, óvoda, valamint busz- és villamosmegállók is. A környéken parkok, zöldterületek és sportolási lehetőségek is rendelkezésre állnak, így a mindennapi élet minden szükséges szolgáltatása könnyen elérhető. Amennyiben az ingatlan felkeltette az érdeklődését, hívjon bizalommal és tekintsük meg együtt akár hétvégén is! OTP Banki hátterünknek köszönhetően finanszírozási igényekben (pl. Otthon Start Hitel Program, Babaváró, CSOK, Felújítási hitel, stb.) is állunk ügyfeleink rendelkezésére. Az ingatlan előre egyeztetett időpontban megtekinthető, megbízható ügyvédi közreműködést, szerződéskötéshez irodai hátteret biztosítunk. Referenciaszám: M324473

Térkép

Ingatlan adásvétel ügyvédi díja
150 000 Ft
a hirdetésben szereplő ár alapján
  • A vételár 0,45%-a
  • Szerződéscsomag teljeskörű képviselettel
  • Ingyenes tulajdoni lap ellenőrzés
  • Az ÁFA-t már tartalmazza
Érdekel az ajánlat →
A tájékoztatás nem teljes körű és nem minősül ajánlattételnek. Minimum díj: 150 000 Ft, maximum díj: 600 000 Ft. A díj kizárólag lakóingatlan adásvételére vonatkozik.

A hirdető elérhetősége

Miskolc - OTP Ingatlanpont Iroda

Kovács Attila
+36 70 267