Eladó Lakás
Hirdetéskód: 9306794

Miskolc - OTP Ingatlanpont Iroda

Felújításhoz személyi kölcsönt keres? Kalkuláljon itt! →
FIX 3% Program

Ez a hirdetés megfelelhet a FIX 3%-os programnak.
Tudj meg többet a részletekről itt.

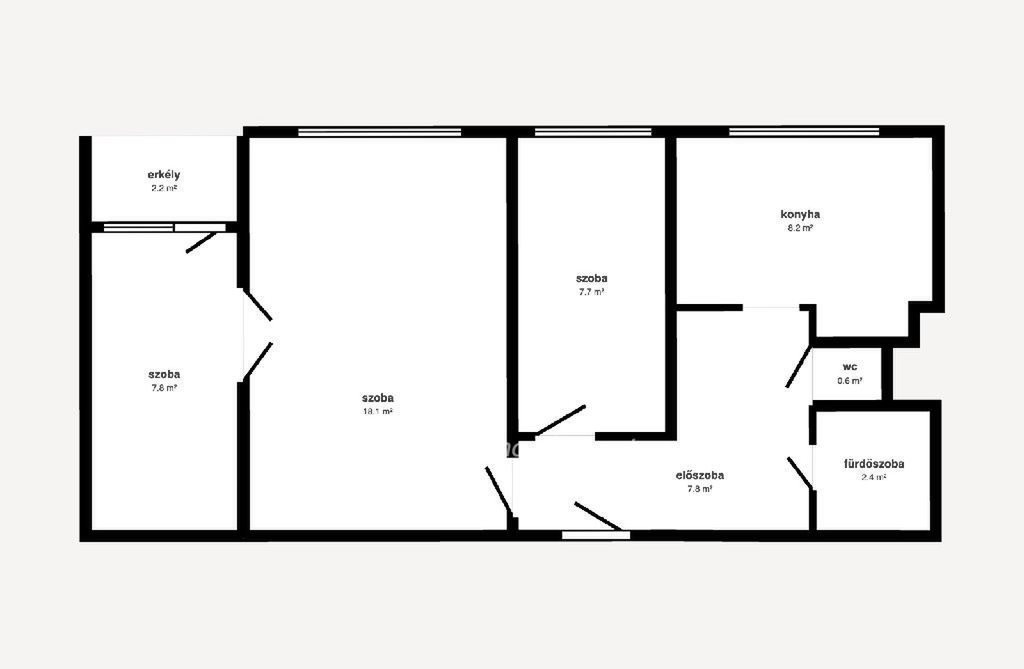
54.00 m2
ALAPTERÜLET
1
SZOBASZÁM
nincs megadva
ÉPÍTÉS
Távfűtés
FŰTÉS
  • CSOK igénybe vehető nem
  • Tetőtér beépíthető nem
  • Építés éve 1973
  • Fűtés Távfűtés
  • Klíma nem
  • Szigetelt nem
Energetikai besorolás: Nincs meghatározva
A+++
A++
A+
A
B
C
D
E
F
G
H
I

Az MBH Bank személyi kölcsön ajánlata

Fizetett hirdetés
1 millió Ft
6 évre
20 585 Ft/hó
THM: 14.5%
Részletek →
2 millió Ft
6 évre
41 169 Ft/hó
THM: 14.5%
Részletek →
3 millió Ft
6 évre
61 754 Ft/hó
THM: 14.5%
Részletek →

A tájékoztatás nem teljes körű és nem minősül ajánlattételnek.

Az ingatlan leírása

ELADÓ EGY+KÉT FÉLSZOBÁS ERKÉLYES KLÍMÁS LAKÁS A KÖZÉPSZEREN! Eladó a Középszer utcában egy 54 nm-es, egy + két félszobás, erkélyes, klímás, részben felújított, harmadik emeleti, tehermentes panellakás! Ablakai hőszigeteltek, bejárati ajtó kicserélve, fürdő és WC a kád kivételével felújítva, villamoshálózat a konyha és fürdő felé átvezetékelve. Lépcsőháza tiszta rendes, a szomszédok kulturáltak. Kilátás a parkos domboldalra, parkolás a ház előtt ingyenes. Tömegközlekedés, üzletek, iskola pár percre. Várom hívását hétvégén is!
OTP Banki hátterünknek köszönhetően finanszírozási igényekben (pl. Otthon Start Hitelprogram, Babaváró, Falusi CSOK, CSOK Plusz, Lakáshitel, Személyi kölcsön stb.), illetve biztosítások tekintetében is díjmentesen, soron kívüli ügyintézéssel segítem ügyfeleim! Referenciaszám: M324672

29990000 Ft

Térkép

Ingatlan adásvétel ügyvédi díja
150 000 Ft
a hirdetésben szereplő ár alapján
  • A vételár 0,45%-a
  • Szerződéscsomag teljeskörű képviselettel
  • Ingyenes tulajdoni lap ellenőrzés
  • Az ÁFA-t már tartalmazza
Érdekel az ajánlat →
A tájékoztatás nem teljes körű és nem minősül ajánlattételnek. Minimum díj: 150 000 Ft, maximum díj: 600 000 Ft. A díj kizárólag lakóingatlan adásvételére vonatkozik.

A hirdető elérhetősége

Miskolc - OTP Ingatlanpont Iroda

Kovács Emese
+36 70 637