Eladó Lakás
Hirdetéskód: 9193615

Miskolc - OTP Ingatlanpont Iroda

FIX 3% Program

Ez a hirdetés megfelelhet a FIX 3%-os programnak.
Tudj meg többet a részletekről itt.

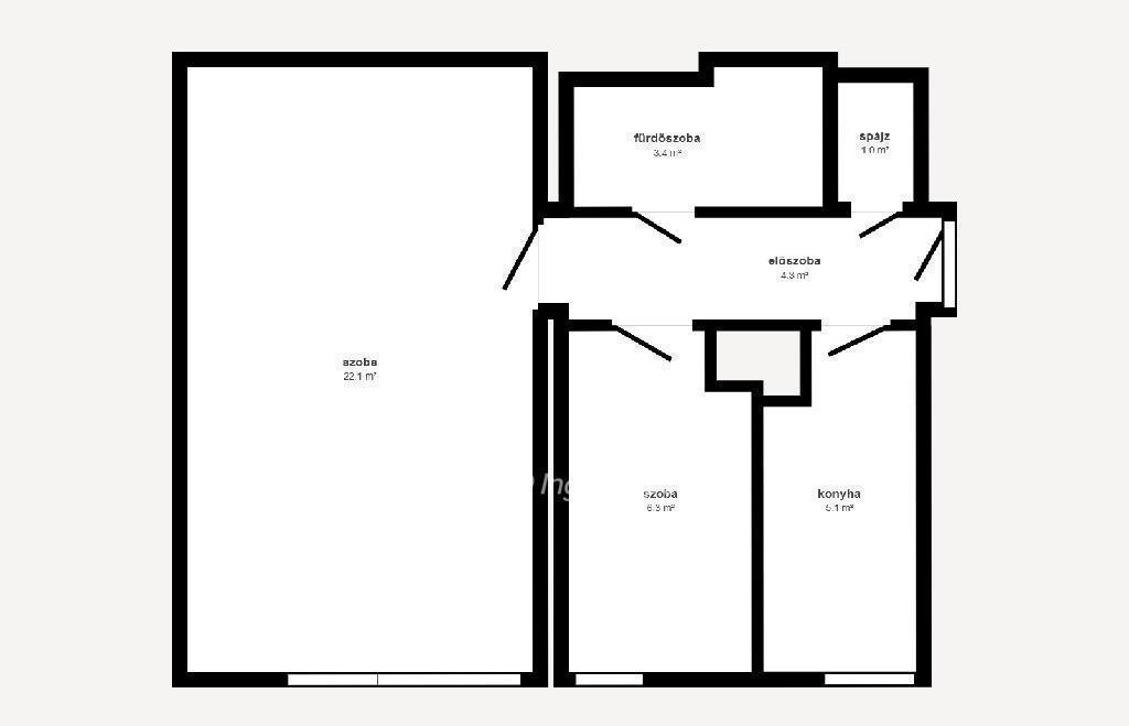
43 m2
ALAPTERÜLET
1
SZOBASZÁM
nincs megadva
ÉPÍTÉS
nincs megadva
FŰTÉS
  • CSOK igénybe vehető nem
  • Tetőtér beépíthető nem
  • Építés éve 1975
  • Klíma nem
  • Szigetelt nem
Energetikai besorolás: Nincs meghatározva
A+++
A++
A+
A
B
C
D
E
F
G
H
I

Az ingatlan leírása

Miskolc, Felújított lakás, a Katowice városrészben eladó! Eladásra kínálok egy második emeleti, felújított lakást Miskolc népszerű és jól megközelíthető Katowice városrészében. A lakás csendes, nyugodt környezetben helyezkedik el, egy rendezett, kulturált lakóközösségű társasházban. Felújítási munkák és műszaki állapot: Az ingatlan az elmúlt időszakban jelentős felújításon esett át, melynek keretében: A fürdőszoba teljes körűen fel lett újítva: új burkolatok, szaniterek, vízvezetékek lettek beépítve. A konyha modernizálása is megtörtént, új burkolat, csaptelep. Műanyag, hőszigetelt nyílászárók kerültek beépítésre, amelyek nemcsak a hő- és hangszigetelést javítják, de esztétikailag is modern megjelenést biztosítanak. Biztonsági bejárati ajtó gondoskodik a lakók nyugalmáról. A teljes vízvezeték-hálózat és részben a villamos hálózat korszerűsítése is megtörtént, ez különösen fontos szempont a hosszú távú megbízható működéshez. A fűtés téljesen egyedi mika 6-os gázkazánról történik , ami lehetővé teszi az egyedi hőmérséklet-szabályozást és költséghatékony üzemeltetést. A melegvizet modern Heizer indirekt tároló biztosítja. Elrendezés és környezet: A lakás világos, jól benapozott, elrendezése praktikus, minden helyiség jól kihasználható. Kiváló választás fiatal pároknak, idősebbeknek, de akár befektetésnek is, azonnal bérbe adható állapotban van. A ház környéke zöldövezeti, parkosított, mégis jól megközelíthető. Parkolás az épület előtt, közterületen megoldott. A Közelben minden megtalálható: Bevásárlási lehetőségek, Óvoda, iskola, bölcsőde, Megyei kórház, Orvosi rendelő, gyógyszertár Tömegközlekedés (busz, villamos pár perc gyalog) Játszótér, park Ez a lakás nem igényel további ráfordítást, ide tényleg csak költözni kell! Jöjjön el, és tekintse meg, garantáltan nem fog csalódni! Vevőink rendelkezésére állunk finanszírozási kérdésekben is OTP banki hátterünkkel! Kérem tekintse meg, virtuális sétámat is. Hívása során hivatkozzon az M312570 referenciaszámra!

Térkép

A hirdető elérhetősége

Miskolc - OTP Ingatlanpont Iroda

Dandásné Fábián Klaudia
+36 30 340