Eladó Lakás
Hirdetéskód: 9239500
Miskolc - OTP Ingatlanpont Iroda
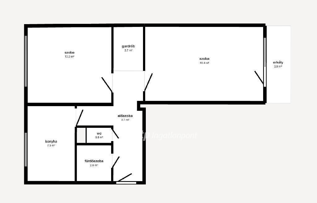
55 m2
ALAPTERÜLET2
SZOBASZÁMnincs megadva
ÉPÍTÉSnincs megadva
FŰTÉS- CSOK igénybe vehető nem
- Tetőtér beépíthető nem
- Építés éve 1986
- Klíma nem
- Szigetelt nem
A+++
A++
A+
A
B
C
D
E
F
G
H
I
Az ingatlan leírása
Eladó Miskolc egyik kedvelt részén, Újgyőri főtér szomszédságában, a Károly utcában, egy 55 nm-es, 2 szobás, második emeleti, tehermentes panel lakás!
A lakás átlagos állapotú, jól elrendezéssel rendelkezik. A két szoba parkettás, a többi helyiség járólappal burkolt. A nyílászárók műanyag, hőszigetelt ablakok redőnnyel, a lépcsőház pedig zárható, tiszta és rendezett.
A társasház 1986-ban épült, és külön előnye, hogy a lépcsőház saját kazánnal, teljesen egyedi fűtési rendszerrel rendelkezik ? ez kedvező fenntartási költségeket biztosít. Nagyszobában klíma is elhelyezésre került, beépített szekrény és a konyhabútor a vételár részét képezi, pince is tartozik hozzá.
A környék csendes, rendezett, a lakóközösség jó, a közelben villamosmegálló, buszmegálló.
Ideális választás első lakásnak, befektetésnek vagy kisebb család számára.
Banki háttérrel, teljes körű ügyintézéssel segítem a vásárlást! Otthon Start Hitelprogram, CSOK Plusz és lakáshitel ügyintézésben is támogatást nyújtok díjmentesen! Érdeklődés esetén hivatkozzon M318298 azonosítási számra.
A lakás átlagos állapotú, jól elrendezéssel rendelkezik. A két szoba parkettás, a többi helyiség járólappal burkolt. A nyílászárók műanyag, hőszigetelt ablakok redőnnyel, a lépcsőház pedig zárható, tiszta és rendezett.
A társasház 1986-ban épült, és külön előnye, hogy a lépcsőház saját kazánnal, teljesen egyedi fűtési rendszerrel rendelkezik ? ez kedvező fenntartási költségeket biztosít. Nagyszobában klíma is elhelyezésre került, beépített szekrény és a konyhabútor a vételár részét képezi, pince is tartozik hozzá.
A környék csendes, rendezett, a lakóközösség jó, a közelben villamosmegálló, buszmegálló.
Ideális választás első lakásnak, befektetésnek vagy kisebb család számára.
Banki háttérrel, teljes körű ügyintézéssel segítem a vásárlást! Otthon Start Hitelprogram, CSOK Plusz és lakáshitel ügyintézésben is támogatást nyújtok díjmentesen! Érdeklődés esetén hivatkozzon M318298 azonosítási számra.