Eladó Lakás
Hirdetéskód: 9241762
Miskolc - OTP Ingatlanpont Iroda
Felújításhoz személyi kölcsönt keres? Kalkuláljon itt! →
Ez a hirdetés megfelelhet a FIX 3%-os programnak.
Tudj meg többet a részletekről itt.
67.00 m2
ALAPTERÜLET3
SZOBASZÁMnincs megadva
ÉPÍTÉSGáz (konvektor)
FŰTÉS- CSOK igénybe vehető nem
- Tetőtér beépíthető nem
- Építés éve 1975
- Fűtés Gáz (konvektor)
- Klíma nem
- Szigetelt nem
A+++
A++
A+
A
B
C
D
E
F
G
H
I
Az ingatlan leírása
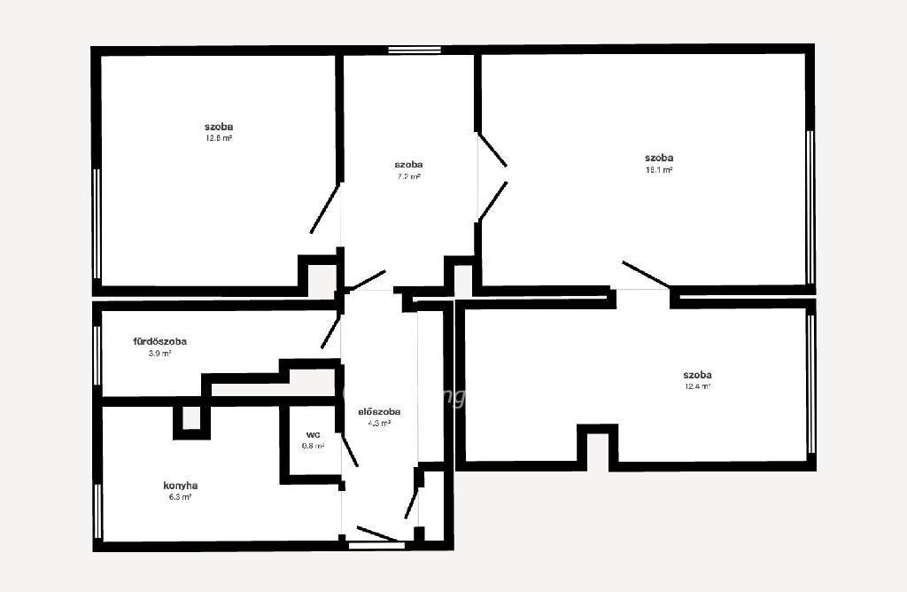
Rendkívüli, kihagyhatatlan lehetőség Miskolcon: 4 szobás, tágas otthon eladó a Bárczay utcában!
Otthon start program!
Miskolc egyik legkeresettebb és legnívósabb városrészében, a Csabai kapu közvetlen közelében található Bárczay utcában kínálunk eladásra egy földszinti, 67 nm-es, négyszobás lakást. Ez az ingatlan ritka kincs a piacon, hiszen méretéből és praktikus elosztásából adódóan bőséges életteret biztosít nagycsaládok számára is. A lakás belső terei kiválóan felszereltek tárolókkal: a négy szoba mellett beépített gardróbszekrények és egy külön spájz is segíti a rendszerezést, emellett az ingatlanhoz saját pince is tartozik. A lakás állapota jelenleg is beköltözhető, de remek lehetőséget nyújt egy saját ízlés szerinti felújításra is. A fűtésről gázkonvektorok gondoskodnak, a meleg vizet pedig villanybojler biztosítja. A környék infrastruktúrája kiemelkedő, hiszen a közelben a Penny, a Lidl és több kisebb üzlet is könnyen elérhető, így a bevásárlás percek alatt elintézhető. A Semmelweis Kórház és a városi rendelőintézet mindössze pár perc sétára található, emellett neves iskolák, óvodák és posta is van a közvetlen közelben. A tömegközlekedés kitűnő, a belváros percek alatt elérhető, mégis élvezhető a Bárczay utca csendje és zöldövezeti hangulata. A földszinti elhelyezkedés miatt az ingatlan ideális választás lehet idősebbeknek, kisgyermekeseknek, vagy központi, de mégis nyugodt elhelyezkedése miatt akár orvosi magánrendelő vagy iroda kialakítására is. OTP Banki hátterünknek köszönhetően finanszírozási igényekben (pl. Otthon Start Hitelprogram , Babaváró, Falusi CSOK, CSOK Plusz, Lakáshitel, Személyi kölcsön stb.), illetve biztosítások tekintetében is díjmentesen, soron kívüli ügyintézéssel segítem ügyfeleim! Kérem tekintse meg, virtuális sétámat is. Hívása során hivatkozzon az M319338 referenciaszámra!
Otthon start program!
Miskolc egyik legkeresettebb és legnívósabb városrészében, a Csabai kapu közvetlen közelében található Bárczay utcában kínálunk eladásra egy földszinti, 67 nm-es, négyszobás lakást. Ez az ingatlan ritka kincs a piacon, hiszen méretéből és praktikus elosztásából adódóan bőséges életteret biztosít nagycsaládok számára is. A lakás belső terei kiválóan felszereltek tárolókkal: a négy szoba mellett beépített gardróbszekrények és egy külön spájz is segíti a rendszerezést, emellett az ingatlanhoz saját pince is tartozik. A lakás állapota jelenleg is beköltözhető, de remek lehetőséget nyújt egy saját ízlés szerinti felújításra is. A fűtésről gázkonvektorok gondoskodnak, a meleg vizet pedig villanybojler biztosítja. A környék infrastruktúrája kiemelkedő, hiszen a közelben a Penny, a Lidl és több kisebb üzlet is könnyen elérhető, így a bevásárlás percek alatt elintézhető. A Semmelweis Kórház és a városi rendelőintézet mindössze pár perc sétára található, emellett neves iskolák, óvodák és posta is van a közvetlen közelben. A tömegközlekedés kitűnő, a belváros percek alatt elérhető, mégis élvezhető a Bárczay utca csendje és zöldövezeti hangulata. A földszinti elhelyezkedés miatt az ingatlan ideális választás lehet idősebbeknek, kisgyermekeseknek, vagy központi, de mégis nyugodt elhelyezkedése miatt akár orvosi magánrendelő vagy iroda kialakítására is. OTP Banki hátterünknek köszönhetően finanszírozási igényekben (pl. Otthon Start Hitelprogram , Babaváró, Falusi CSOK, CSOK Plusz, Lakáshitel, Személyi kölcsön stb.), illetve biztosítások tekintetében is díjmentesen, soron kívüli ügyintézéssel segítem ügyfeleim! Kérem tekintse meg, virtuális sétámat is. Hívása során hivatkozzon az M319338 referenciaszámra!