Eladó Lakás
Hirdetéskód: 9243662
Miskolc - OTP Ingatlanpont Iroda
Ez a hirdetés megfelelhet a FIX 3%-os programnak.
Tudj meg többet a részletekről itt.
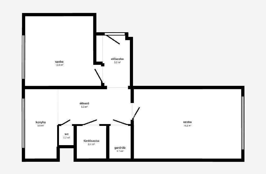
51.00 m2
ALAPTERÜLET2
SZOBASZÁMnincs megadva
ÉPÍTÉSnincs megadva
FŰTÉS- CSOK igénybe vehető nem
- Tetőtér beépíthető nem
- Építés éve 1970
- Klíma nem
- Szigetelt nem
A+++
A++
A+
A
B
C
D
E
F
G
H
I
Az ingatlan leírása
Eladó lakás a kedvelt Győri kapuban, az Aba utcában! Csendes, zöldövezeti környezetben kínálom megvételre ezt a 51 nm-es, 2 szobás, jó elosztású lakást egy 4 emeletes társasház 3. emeletén. A környéket zöld övezet, nagy fák, friss levegő és rendezett, barátságos lakók jellemzik. A lakásban a vízvezeték már cserélve lett, a műanyag nyílászárók pedig gondoskodnak a kellemes hőérzetről és az alacsonyabb rezsiről. A lokáció kiváló: minden fontos szolgáltatás, tömegközlekedés, üzletek és iskolák könnyen elérhetők. A környéken a parkolás egyszerű, így autóval sem jelent kihívást a mindennapi közlekedés. Remek választás első otthonnak vagy befektetésnek is a jó lakóközösség és a keresett környék miatt! Az ingatlan alkalmas az OTTHON START HITELRE is!
OTP Banki hátterünknek köszönhetően finanszírozási igényekben (pl. Otthon Start Hitelprogram, Babaváró, Falusi CSOK, CSOK Plusz, Lakáshitel, Személyi kölcsön stb.), illetve biztosítások tekintetében is díjmentesen, soron kívüli ügyintézéssel segítem ügyfeleim! Érdeklődése során hivatkozzon az M318448 referenciaszámra!
27900000 Ft
OTP Banki hátterünknek köszönhetően finanszírozási igényekben (pl. Otthon Start Hitelprogram, Babaváró, Falusi CSOK, CSOK Plusz, Lakáshitel, Személyi kölcsön stb.), illetve biztosítások tekintetében is díjmentesen, soron kívüli ügyintézéssel segítem ügyfeleim! Érdeklődése során hivatkozzon az M318448 referenciaszámra!
27900000 Ft