Eladó Lakás
Hirdetéskód: 9184076
Miskolc - OTP Ingatlanpont Iroda
Ez a hirdetés megfelelhet a FIX 3%-os programnak.
Tudj meg többet a részletekről itt.
55.00 m2
ALAPTERÜLET2
SZOBASZÁMnincs megadva
ÉPÍTÉSnincs megadva
FŰTÉS- CSOK igénybe vehető nem
- Tetőtér beépíthető nem
- Építés éve 1980
- Klíma nem
- Szigetelt nem
A+++
A++
A+
A
B
C
D
E
F
G
H
I
Az ingatlan leírása
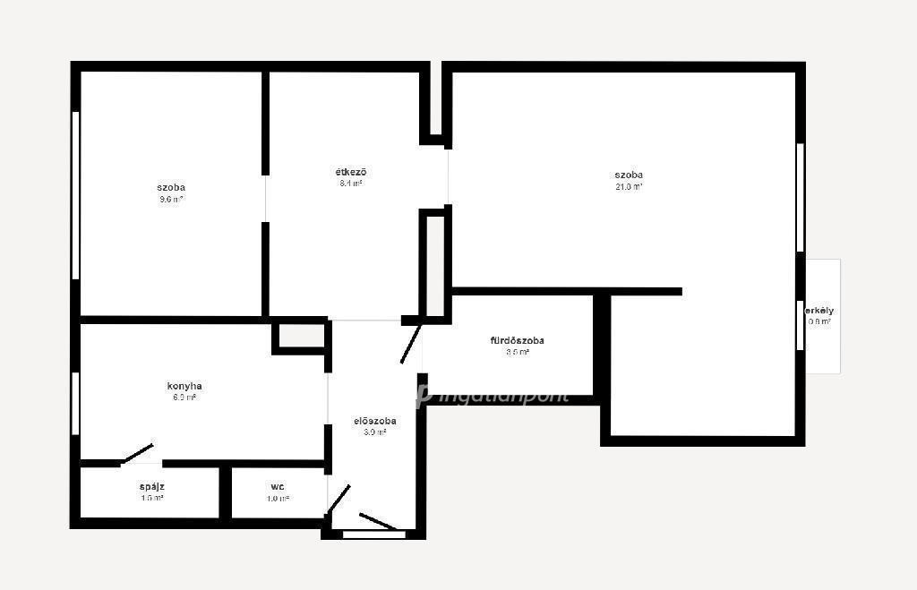
Miskolc egyik kedvelt részén, az Éder György utcában kínálunk eladásra egy 55 nm-es, második emeleti, erkélyes lakást, amely igazi lehetőséget rejt magában mind otthonteremtők, mind befektetők számára. Az ingatlan 2,5 szobával rendelkezik, tágas elrendezésének és jó beosztásának köszönhetően könnyen átalakítható és a saját igényekhez igazítható. A fűtést gázkonvektor biztosítja, az ablakokat redőnyök védik, a lakás állapota felújítandó, így kiváló alapot nyújt egy egyedi, modern otthon kialakításához.
A lakáshoz saját pince és spájz is tartozik, valamint külön helyiségben található a fürdőszoba és a wc, ami növeli a mindennapi kényelmet. Az ár különlegessége, hogy magában foglal egy 14 nm-es, szerelőaknás garázst is, amely közvetlenül a ház előtt található. Ez a lehetőség igazi ritkaságnak számít a környéken, hiszen a biztonságos parkolás és a garázsban tárolható extra hely nagyban megkönnyíti a mindennapokat, és önmagában is jelentős értéket képvisel.
A környék infrastrukturálisan rendkívül jól ellátott. Néhány száz méterre megtalálható villamos- és buszmegálló, a közelben óvoda, bölcsőde és iskola is biztosítja a családok számára a mindennapi praktikumot. A belváros gyalogosan mindössze 10 perc alatt elérhető, így minden fontos szolgáltatás karnyújtásnyira van. A társasház külső homlokzatának felújítása hamarosan elkezdődik, amely tovább növeli az ingatlan értékét és esztétikai vonzerejét.
Ez a lakás ideális választás mindazoknak, akik saját ízlésük szerint szeretnék megvalósítani új otthonukat, vagy hosszú távon értékálló befektetést keresnek.
A lakás a 3%-os Otthon Start hitelre is megvásárolható.
OTP Banki hátterünknek köszönhetően finanszírozási igényekben (pl. Otthon Start Hitelprogram , Babaváró, Falusi CSOK, CSOK Plusz, Lakáshitel, Személyi kölcsön stb.), illetve biztosítások tekintetében is díjmentesen, soron kívüli ügyintézéssel segítem ügyfeleim! Érdeklődés esetén hivatkozzon az M313195 referenciaszámra.
A lakáshoz saját pince és spájz is tartozik, valamint külön helyiségben található a fürdőszoba és a wc, ami növeli a mindennapi kényelmet. Az ár különlegessége, hogy magában foglal egy 14 nm-es, szerelőaknás garázst is, amely közvetlenül a ház előtt található. Ez a lehetőség igazi ritkaságnak számít a környéken, hiszen a biztonságos parkolás és a garázsban tárolható extra hely nagyban megkönnyíti a mindennapokat, és önmagában is jelentős értéket képvisel.
A környék infrastrukturálisan rendkívül jól ellátott. Néhány száz méterre megtalálható villamos- és buszmegálló, a közelben óvoda, bölcsőde és iskola is biztosítja a családok számára a mindennapi praktikumot. A belváros gyalogosan mindössze 10 perc alatt elérhető, így minden fontos szolgáltatás karnyújtásnyira van. A társasház külső homlokzatának felújítása hamarosan elkezdődik, amely tovább növeli az ingatlan értékét és esztétikai vonzerejét.
Ez a lakás ideális választás mindazoknak, akik saját ízlésük szerint szeretnék megvalósítani új otthonukat, vagy hosszú távon értékálló befektetést keresnek.
A lakás a 3%-os Otthon Start hitelre is megvásárolható.
OTP Banki hátterünknek köszönhetően finanszírozási igényekben (pl. Otthon Start Hitelprogram , Babaváró, Falusi CSOK, CSOK Plusz, Lakáshitel, Személyi kölcsön stb.), illetve biztosítások tekintetében is díjmentesen, soron kívüli ügyintézéssel segítem ügyfeleim! Érdeklődés esetén hivatkozzon az M313195 referenciaszámra.