Eladó Lakás
Hirdetéskód: 9281060
Miskolc - OTP Ingatlanpont Iroda
Felújításhoz személyi kölcsönt keres? Kalkuláljon itt! →63.00 m2
ALAPTERÜLET2
SZOBASZÁMnincs megadva
ÉPÍTÉSElektromos
FŰTÉS- CSOK igénybe vehető nem
- Tetőtér beépíthető nem
- Építés éve 2023
- Fűtés Elektromos
- Klíma nem
- Szigetelt nem
A+++
A++
A+
A
B
C
D
E
F
G
H
I
Az ingatlan leírása
Eladó Miskolc Bodótető városrészen, új építésű panorámás társasházi lakás
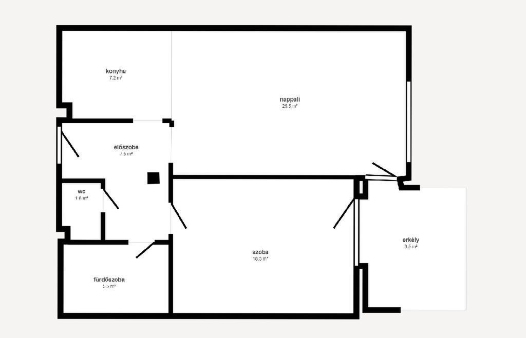
- 63 m2- es, egy szoba + amerikai konyhás nappalis, emeleti, erkélyes új építésű lakás
- az ablakok műanyag hőszigetelt kivitelűek 3 rétegű üvegezéssel
- a lakások közötti elválasztásról 30 cm vastagságú hanggátló falak gondoskodnak
- a meleg vizet villanybojlerek, a lakások hűtés- fűtését Mitsubishi levegő - levegő hőszivattyú rendszerek biztosítják
- a homlokzat 20 cm hőszigeteléssel van ellátva
- a lakások kulcsrakészen készülnek el
- egyes lakások hosszútávra bérbe is kivehetőek, ezek a lakások kulcsrakészen, konyhabútorral felszerelve kerülnek kialakításra
- a garázsban elektromos autó töltési lehetőség is kialakításra kerül, a lakások saját napeleméről
- az udvaron kávézó és minőségi, modern játszótér kerül kialakításra
- az épület alatt 8 db külön álló garázs található, illetve a teremgarázsba beállóhelyek, melyekhez tároló is tartozik.
Amennyiben az ingatlan felkeltette az érdeklődését, hívjon bizalommal és tekintsük meg együtt akár hétvégén is! OTP Banki hátterünknek köszönhetően finanszírozási igényekben (pl. Babaváró, CSOK, Felújítási hitel, stb.) is állunk ügyfeleink rendelkezésére. Az ingatlan előre egyeztetett időpontban megtekinthető, megbízható ügyvédi közreműködést, szerződéskötéshez irodai hátteret biztosítunk. Referencia szám: M323170
- 63 m2- es, egy szoba + amerikai konyhás nappalis, emeleti, erkélyes új építésű lakás
- az ablakok műanyag hőszigetelt kivitelűek 3 rétegű üvegezéssel
- a lakások közötti elválasztásról 30 cm vastagságú hanggátló falak gondoskodnak
- a meleg vizet villanybojlerek, a lakások hűtés- fűtését Mitsubishi levegő - levegő hőszivattyú rendszerek biztosítják
- a homlokzat 20 cm hőszigeteléssel van ellátva
- a lakások kulcsrakészen készülnek el
- egyes lakások hosszútávra bérbe is kivehetőek, ezek a lakások kulcsrakészen, konyhabútorral felszerelve kerülnek kialakításra
- a garázsban elektromos autó töltési lehetőség is kialakításra kerül, a lakások saját napeleméről
- az udvaron kávézó és minőségi, modern játszótér kerül kialakításra
- az épület alatt 8 db külön álló garázs található, illetve a teremgarázsba beállóhelyek, melyekhez tároló is tartozik.
Amennyiben az ingatlan felkeltette az érdeklődését, hívjon bizalommal és tekintsük meg együtt akár hétvégén is! OTP Banki hátterünknek köszönhetően finanszírozási igényekben (pl. Babaváró, CSOK, Felújítási hitel, stb.) is állunk ügyfeleink rendelkezésére. Az ingatlan előre egyeztetett időpontban megtekinthető, megbízható ügyvédi közreműködést, szerződéskötéshez irodai hátteret biztosítunk. Referencia szám: M323170