Eladó Lakás
Hirdetéskód: 9240052
Openhouse Miskolc Szentpáli utcai Ingatlaniroda
Felújításhoz személyi kölcsönt keres? Kalkuláljon itt! →
Ez a hirdetés megfelelhet a FIX 3%-os programnak.
Tudj meg többet a részletekről itt.
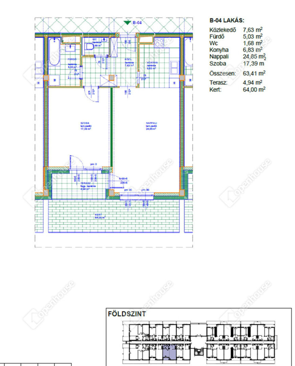
63.00 m2
ALAPTERÜLET2
SZOBASZÁMnincs megadva
ÉPÍTÉSEgyéb fűtés
FŰTÉS- CSOK igénybe vehető nem
- Tetőtér beépíthető nem
- Építés éve 2025
- Fűtés Egyéb fűtés
- Klíma nem
- Szigetelt nem
A+++
A++
A+
A
B
C
D
E
F
G
H
I
Az ingatlan leírása
Az Openhouse Miskolc Soltész Nagy Kálmán utcai Ingatlaniroda kínálatában eladó a #178739 hivatkozási számú miskolci társasházi lakás.
KIVÉTELES AJÁNLAT MISKOLC SZÍVÉBEN: PANORÁMÁS LUXUS A BODÓTETŐN!
Álmodjon egy új otthonról Miskolc legkeresettebb, exkluzív helyszínén, a Bodótetőn, ahol a prémium minőség és a lélegzetelállító panoráma találkozik!
Ez nem csupán egy lakás – ez egy életstílus.
Főbb Jellemzők:
- Elhelyezkedés: Miskolc legjobb helyén, a Bodótetőn, új társasházban.
- Lakások Paraméterei: Nappali + 1 szoba 63m2-en, Nappali + 2 szoba 77 m2-en, Nappali + 2 szoba 100 m2-en 33 m2-es terasszal. Minden lakáshoz nagy alapterületű félig nyitott, félig zárt erkély tartozik, a földszinti lakások pedig kertkapcsolatosak.
- Energiatudatos Megoldások: 20 cm-es homlokzati hőszigetelés, 3 rétegű hőszigetelt műanyag ablakok.
- Modern Gépészet: Mitsubishi levegő-levegő hőszivattyús hűtés-fűtési rendszer, villanybojlerek.
- Akusztikus Komfort: 30 cm vastag hanggátló falak a teljes nyugalomért.
- Kulcsrakész Állapot: Csak költöznie kell!
- Fenntarthatóság: Saját napelemek biztosítják az elektromos autók töltését a garázsban.
- Extrák: Kávézó és modern játszótér az udvaron, teremgarázs beállóhelyek és tárolók vásárlási lehetősége.
Befektetésre is Kiváló: Egyes lakások hosszú távra, kulcsrakészen, konyhabútorral felszerelve bérbe is kivehetők!
Ne maradjon le erről a páratlan lehetőségről! Tapasztalja meg a prémium életérzést!
Érdeklődjön még ma a részletekért és a megtekintésért!
Ha felkeltette érdeklődését ez az eladó miskolci társasházi lakás, vagy bármely más társasházi lakás és bővebb információt szeretne, keressen bizalommal.Hivatkozási szám: #178739
Az Openhouse Miskolc Soltész Nagy Kálmán utcai Ingatlaniroda tagjaként várom Önt az országos hálózatunk teljes kínálatával.
A társasházi lakás vásárláshoz hitelt igényelne? Ingyenes hitelközvetítéssel segít Önnek bankfüggetlen hitelszakértőnk.
További szolgáltatásainkkal (pl. értékbecslés, energetikai tanúsítvány, jogi háttér) is segítjük Önt a vásárlásban.
Az otthon érték. Az ingatlan üzlet.
Irányár: 66000000 Ft
KIVÉTELES AJÁNLAT MISKOLC SZÍVÉBEN: PANORÁMÁS LUXUS A BODÓTETŐN!
Álmodjon egy új otthonról Miskolc legkeresettebb, exkluzív helyszínén, a Bodótetőn, ahol a prémium minőség és a lélegzetelállító panoráma találkozik!
Ez nem csupán egy lakás – ez egy életstílus.
Főbb Jellemzők:
- Elhelyezkedés: Miskolc legjobb helyén, a Bodótetőn, új társasházban.
- Lakások Paraméterei: Nappali + 1 szoba 63m2-en, Nappali + 2 szoba 77 m2-en, Nappali + 2 szoba 100 m2-en 33 m2-es terasszal. Minden lakáshoz nagy alapterületű félig nyitott, félig zárt erkély tartozik, a földszinti lakások pedig kertkapcsolatosak.
- Energiatudatos Megoldások: 20 cm-es homlokzati hőszigetelés, 3 rétegű hőszigetelt műanyag ablakok.
- Modern Gépészet: Mitsubishi levegő-levegő hőszivattyús hűtés-fűtési rendszer, villanybojlerek.
- Akusztikus Komfort: 30 cm vastag hanggátló falak a teljes nyugalomért.
- Kulcsrakész Állapot: Csak költöznie kell!
- Fenntarthatóság: Saját napelemek biztosítják az elektromos autók töltését a garázsban.
- Extrák: Kávézó és modern játszótér az udvaron, teremgarázs beállóhelyek és tárolók vásárlási lehetősége.
Befektetésre is Kiváló: Egyes lakások hosszú távra, kulcsrakészen, konyhabútorral felszerelve bérbe is kivehetők!
Ne maradjon le erről a páratlan lehetőségről! Tapasztalja meg a prémium életérzést!
Érdeklődjön még ma a részletekért és a megtekintésért!
Ha felkeltette érdeklődését ez az eladó miskolci társasházi lakás, vagy bármely más társasházi lakás és bővebb információt szeretne, keressen bizalommal.Hivatkozási szám: #178739
Az Openhouse Miskolc Soltész Nagy Kálmán utcai Ingatlaniroda tagjaként várom Önt az országos hálózatunk teljes kínálatával.
A társasházi lakás vásárláshoz hitelt igényelne? Ingyenes hitelközvetítéssel segít Önnek bankfüggetlen hitelszakértőnk.
További szolgáltatásainkkal (pl. értékbecslés, energetikai tanúsítvány, jogi háttér) is segítjük Önt a vásárlásban.
Az otthon érték. Az ingatlan üzlet.
Irányár: 66000000 Ft