Eladó Lakás
Hirdetéskód: 9328986
Openhouse Miskolc Szentpáli utcai Ingatlaniroda
Felújításhoz személyi kölcsönt keres? Kalkuláljon itt! →
Ez a hirdetés megfelelhet a FIX 3%-os programnak.
Tudj meg többet a részletekről itt.
63.00 m2
ALAPTERÜLET3
SZOBASZÁMnincs megadva
ÉPÍTÉSGáz (cirkó)
FŰTÉS- CSOK igénybe vehető nem
- Tetőtér beépíthető nem
- Építés éve 2003
- Fűtés Gáz (cirkó)
- Klíma nem
- Szigetelt nem
A+++
A++
A+
A
B
C
D
E
F
G
H
I
Az ingatlan leírása
Az Openhouse Miskolc Szentpáli utcai Ingatlaniroda kínálatában eladó a #181419 hivatkozási számú miskolci társasházi lakás.
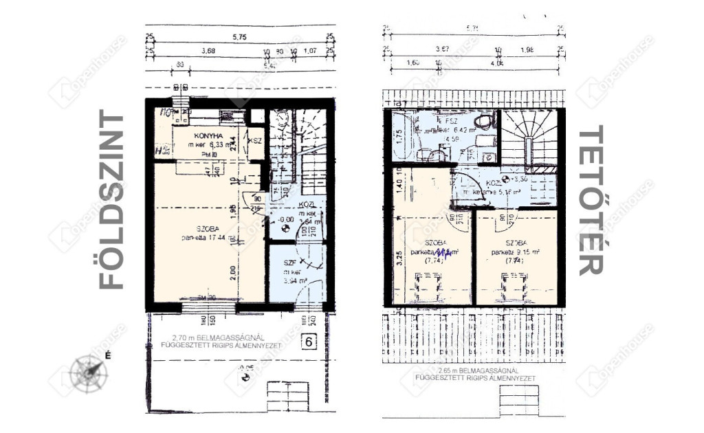
A diósgyőri eladó nettó 60 m2-es társasházi lakás jellemzői:
- a 7 lakásos társasház, amelyben a két szintes lakás található, Diósgyőr szívében népszerű helyen van
- a földszinten amerikai konyhás nappali étkezővel, a tetőtérben két szoba, nagy fürdővel. Külön W.C a földszinten
- szép állapotú lakás, amit folyamatos karbantartásokkal érték el
- hőszigetelt nyílászárók, hőszigetelt tetőtér biztosítja a kis rezsiköltséget, valamint a 3 éves kondenzációs kombi cirkó kazán a gazdaságos fűtést. A tetőtérben hűtő-fűtő klíma a komfortérzet fokozása érdekében
- igényes burkolatok minden helyiségben, szép fa belső ajtók és fa lépcső a tetőtér megközelítésére
- a tetőtérben további tárolásra alkalmas tér is ki lett alakítva
- a lakás élhető méretű, jelenleg két kisebb gyerekkel is elférnek
- elektromos kapunyitóval és kaputelefonnal ellátott épület
- az udvaron saját autóbeállóval, szalonnasütővel válik egy igazán jó közösségi hellyé. a Szinva patakhoz kis lejáróval, elvonulásra alkalmas annak, aki egy kis csendre és a természet közelségére vágyik
- busz-és villamos megállók nagyon közel, így könnyen, gyorsan a belvárosban lehet aki itt lakik
- bevásárlási lehetőségek, iskolák, óvodák, bölcsőde, bank, posta, művelődési ház a közelben
- a Diósgyőri vár, a LÁEV kisvasút, a Bükk-hegység közelsége számos kikapcsolódási, sportolási, túrázási lehetőséget nyújt az itt élőknek
Diósgyőrben élni jó!
Ha felkeltette érdeklődését ez az eladó miskolci társasházi lakás, vagy bármely más társasházi lakás és bővebb információt szeretne, keressen bizalommal.Hivatkozási szám: #181419
Az Openhouse Miskolc Szentpáli utcai Ingatlaniroda tagjaként várom Önt az országos hálózatunk teljes kínálatával.
A társasházi lakás vásárláshoz hitelt igényelne? Ingyenes hitelközvetítéssel segít Önnek bankfüggetlen hitelszakértőnk.
További szolgáltatásainkkal (pl. értékbecslés, energetikai tanúsítvány, jogi háttér) is segítjük Önt a vásárlásban.
Az otthon érték. Az ingatlan üzlet.
Az energetikai tanúsítvány készítése folyamatban van, amint rendelkezésre áll, úgy azzal a hirdetés frissítésre kerül.
Irányár: 56990000 Ft
A diósgyőri eladó nettó 60 m2-es társasházi lakás jellemzői:
- a 7 lakásos társasház, amelyben a két szintes lakás található, Diósgyőr szívében népszerű helyen van
- a földszinten amerikai konyhás nappali étkezővel, a tetőtérben két szoba, nagy fürdővel. Külön W.C a földszinten
- szép állapotú lakás, amit folyamatos karbantartásokkal érték el
- hőszigetelt nyílászárók, hőszigetelt tetőtér biztosítja a kis rezsiköltséget, valamint a 3 éves kondenzációs kombi cirkó kazán a gazdaságos fűtést. A tetőtérben hűtő-fűtő klíma a komfortérzet fokozása érdekében
- igényes burkolatok minden helyiségben, szép fa belső ajtók és fa lépcső a tetőtér megközelítésére
- a tetőtérben további tárolásra alkalmas tér is ki lett alakítva
- a lakás élhető méretű, jelenleg két kisebb gyerekkel is elférnek
- elektromos kapunyitóval és kaputelefonnal ellátott épület
- az udvaron saját autóbeállóval, szalonnasütővel válik egy igazán jó közösségi hellyé. a Szinva patakhoz kis lejáróval, elvonulásra alkalmas annak, aki egy kis csendre és a természet közelségére vágyik
- busz-és villamos megállók nagyon közel, így könnyen, gyorsan a belvárosban lehet aki itt lakik
- bevásárlási lehetőségek, iskolák, óvodák, bölcsőde, bank, posta, művelődési ház a közelben
- a Diósgyőri vár, a LÁEV kisvasút, a Bükk-hegység közelsége számos kikapcsolódási, sportolási, túrázási lehetőséget nyújt az itt élőknek
Diósgyőrben élni jó!
Ha felkeltette érdeklődését ez az eladó miskolci társasházi lakás, vagy bármely más társasházi lakás és bővebb információt szeretne, keressen bizalommal.Hivatkozási szám: #181419
Az Openhouse Miskolc Szentpáli utcai Ingatlaniroda tagjaként várom Önt az országos hálózatunk teljes kínálatával.
A társasházi lakás vásárláshoz hitelt igényelne? Ingyenes hitelközvetítéssel segít Önnek bankfüggetlen hitelszakértőnk.
További szolgáltatásainkkal (pl. értékbecslés, energetikai tanúsítvány, jogi háttér) is segítjük Önt a vásárlásban.
Az otthon érték. Az ingatlan üzlet.
Az energetikai tanúsítvány készítése folyamatban van, amint rendelkezésre áll, úgy azzal a hirdetés frissítésre kerül.
Irányár: 56990000 Ft