Eladó Lakás
Hirdetéskód: 9311956

Miskolc - OTP Ingatlanpont Iroda

Felújításhoz személyi kölcsönt keres? Kalkuláljon itt! →
FIX 3% Program

Ez a hirdetés megfelelhet a FIX 3%-os programnak.
Tudj meg többet a részletekről itt.

61.00 m2
ALAPTERÜLET
2
SZOBASZÁM
nincs megadva
ÉPÍTÉS
Távfűtés egyedi méréssel
FŰTÉS
  • CSOK igénybe vehető nem
  • Tetőtér beépíthető nem
  • Építés éve 1980
  • Fűtés Távfűtés egyedi méréssel
  • Klíma nem
  • Szigetelt nem
Energetikai besorolás: Nincs meghatározva
A+++
A++
A+
A
B
C
D
E
F
G
H
I

Az MBH Bank személyi kölcsön ajánlata

Fizetett hirdetés
1 millió Ft
6 évre
20 585 Ft/hó
THM: 14.5%
Részletek →
2 millió Ft
6 évre
41 169 Ft/hó
THM: 14.5%
Részletek →
3 millió Ft
6 évre
61 754 Ft/hó
THM: 14.5%
Részletek →

A tájékoztatás nem teljes körű és nem minősül ajánlattételnek.

Az ingatlan leírása

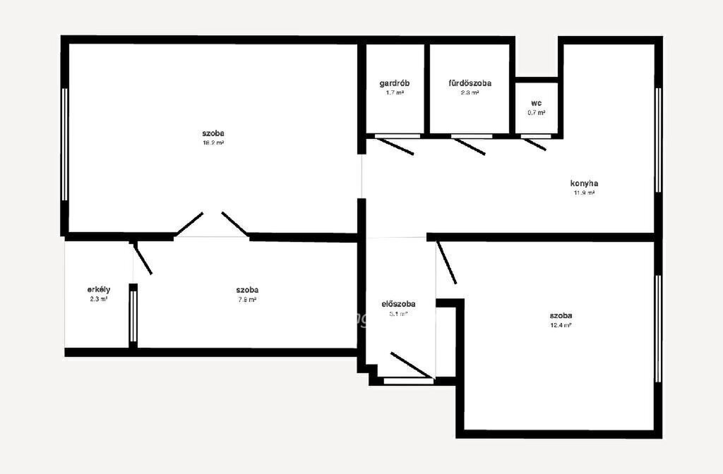
Eladó Miskolc közkedvelt részén, az Árpád úton egy 61 m2-es 2+1 szobás, földszinti, panelprogramos lakás. Az ingatlan műszakilag felújított, az elektromos és vízhálózat teljes körűen cserélve lett. A lakás klimatizált, a berendezés 1 éve került felszerelésre, még 2 év garanciával rendelkezik. A konyha 2 éve megújult, modern, gépesített bútorral, beépített mosogatógéppel és sütővel. A nyílászárók redőnnyel felszereltek, az erkély beépített, ablakkal ellátott. A társasházban a közös strang csövek cseréje idén megtörtént. Az ingatlan kedvező energetikai besorolású. Elhelyezkedése kiváló, bank, üzletek, éttermek, busz- és villamosmegálló, óvoda és iskola 100 méteren belül elérhető.
OTP Banki hátterünknek köszönhetően finanszírozási igényekben (pl. Otthon Start Hitelprogram, Babaváró, Falusi CSOK, CSOK Plusz, Lakáshitel, Személyi kölcsön, Vállalkozói hitel stb.), illetve biztosítások tekintetében is díjmentesen, soron kívüli ügyintézéssel segítem ügyfeleim! Referenciaszám: M325121

Térkép

Ingatlan adásvétel ügyvédi díja
161 550 Ft
a hirdetésben szereplő ár alapján
  • A vételár 0,45%-a
  • Szerződéscsomag teljeskörű képviselettel
  • Ingyenes tulajdoni lap ellenőrzés
  • Az ÁFA-t már tartalmazza
Érdekel az ajánlat →
A tájékoztatás nem teljes körű és nem minősül ajánlattételnek. Minimum díj: 150 000 Ft, maximum díj: 600 000 Ft. A díj kizárólag lakóingatlan adásvételére vonatkozik.

A hirdető elérhetősége

Miskolc - OTP Ingatlanpont Iroda

dr. Rohács Andrea
+36 70 439