Eladó Lakás
Hirdetéskód: 9250074
Eger Kertész utca 25 - OTP Ingatlanpont Iroda
Felújításhoz személyi kölcsönt keres? Kalkuláljon itt! →
Ez a hirdetés megfelelhet a FIX 3%-os programnak.
Tudj meg többet a részletekről itt.
115.00 m2
ALAPTERÜLET4
SZOBASZÁMnincs megadva
ÉPÍTÉSGáz (cirkó)
FŰTÉS- CSOK igénybe vehető nem
- Tetőtér beépíthető nem
- Építés éve 1970
- Fűtés Gáz (cirkó)
- Klíma nem
- Szigetelt nem
A+++
A++
A+
A
B
C
D
E
F
G
H
I
Az ingatlan leírása
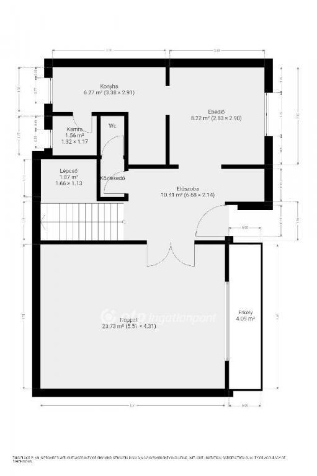
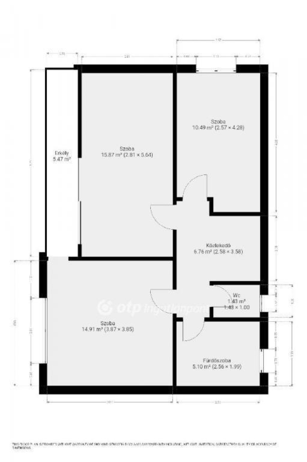
Mezőkövesden kínálok megvételre egy kiváló elosztású, kétszintes, 3 szoba + nappalis lakást, amely ideális választás lehet családoknak vagy akár otthoni munkavégzéshez is.
Az ingatlan napelemes rendszerrel felszerelt, így a fenntartási költségek kedvezően alakulnak. A fűtésről gázkazán gondoskodik, megbízható és jól szabályozható módon.
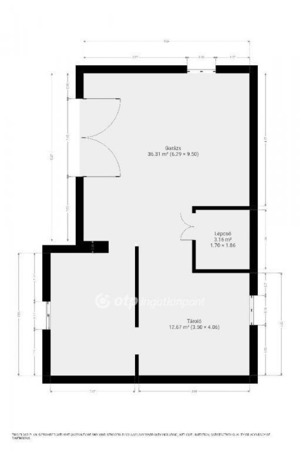
A lakás alatt egy 55 m2-es garázs és tároló található, amely közvetlenül az épületből is megközelíthető, így nemcsak kényelmes, hanem praktikus megoldást is nyújt. Az ingatlanhoz saját, lekerített udvarrész tartozik, amely kiválóan alkalmas pihenésre vagy kisebb kert kialakítására.
Főbb jellemzők:
- 3 szoba + nappali.
- Kétszintes kialakítás.
- Napelemes rendszer.
- Gázkazános fűtés.
- 55 m2-es garázs és tároló (belső megközelítéssel).
- Saját udvarrész.
OTP Banki hátterünknek köszönhetően finanszírozási igényekben (pl. Otthon Start Program, Babaváró, Falusi CSOK, CSOK Plusz, Lakáshitel, Személyi kölcsön stb.), illetve biztosítások tekintetében is díjmentesen, soron kívüli ügyintézéssel segítem ügyfeleim! Referenciaszám: M320460
Az ingatlan napelemes rendszerrel felszerelt, így a fenntartási költségek kedvezően alakulnak. A fűtésről gázkazán gondoskodik, megbízható és jól szabályozható módon.
A lakás alatt egy 55 m2-es garázs és tároló található, amely közvetlenül az épületből is megközelíthető, így nemcsak kényelmes, hanem praktikus megoldást is nyújt. Az ingatlanhoz saját, lekerített udvarrész tartozik, amely kiválóan alkalmas pihenésre vagy kisebb kert kialakítására.
Főbb jellemzők:
- 3 szoba + nappali.
- Kétszintes kialakítás.
- Napelemes rendszer.
- Gázkazános fűtés.
- 55 m2-es garázs és tároló (belső megközelítéssel).
- Saját udvarrész.
OTP Banki hátterünknek köszönhetően finanszírozási igényekben (pl. Otthon Start Program, Babaváró, Falusi CSOK, CSOK Plusz, Lakáshitel, Személyi kölcsön stb.), illetve biztosítások tekintetében is díjmentesen, soron kívüli ügyintézéssel segítem ügyfeleim! Referenciaszám: M320460