Eladó Lakás
Hirdetéskód: 9308501

Laurencsik János

Felújításhoz személyi kölcsönt keres? Kalkuláljon itt! →
FIX 3% Program

Ez a hirdetés megfelelhet a FIX 3%-os programnak.
Tudj meg többet a részletekről itt.

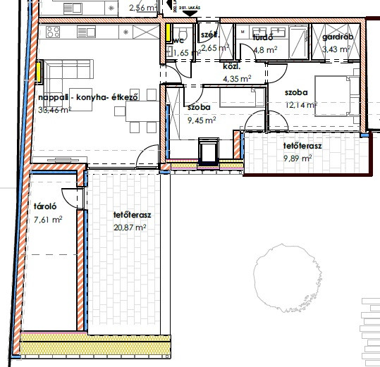
50.00 m2
ALAPTERÜLET
2
SZOBASZÁM
Tégla
ÉPÍTÉS
Hőszivattyú
FŰTÉS
  • CSOK igénybe vehető igen
  • Ingatlan komfort Összkomfortos
  • Parkolási lehetőség Udvari beálló
  • Építés éve 2026
  • Fűtés Hőszivattyú
  • Építőanyag Tégla
  • Erkély, terasz Terasz 29.00m2
  • Szigetelt igen
Energetikai besorolás: Nincs meghatározva
A+++
A++
A+
A
B
C
D
E
F
G
H
I

Az MBH Bank személyi kölcsön ajánlata

Fizetett hirdetés
1 millió Ft
6 évre
20 585 Ft/hó
THM: 14.5%
Részletek →
2 millió Ft
6 évre
41 169 Ft/hó
THM: 14.5%
Részletek →
3 millió Ft
6 évre
61 754 Ft/hó
THM: 14.5%
Részletek →

A tájékoztatás nem teljes körű és nem minősül ajánlattételnek.

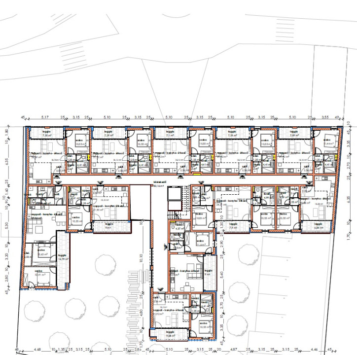
Az ingatlan leírása

Csongrád-Csanád Vármegye, Makó Napfény Rezidencia. Befektetési lakások Makón


Prémium lakások és értékálló befektetési lehetőség Makó szívében


46 új építésű, energiatakarékos lakás a Hagymatikum fürdővel szemben — saját otthonnak és hosszú távú ingatlanbefektetésnek is.


Saját otthon vagy befektetés, Kiemelt lokáció Közvetlenül a Hagymatikum fürdő mellett


Energiahatékony épület, Modern, alacsony fenntartási költség, Keresett lakásméretek Könnyen kiadható elrendezések


Új építésű lakások Makón, a Hagymatikum fürdővel szemben épülő, 46 lakásos modern, energiatakarékos társasház.


Két épület, átgondolt alaprajzok, időtálló szerkezet és hosszú távú értékállóság.


Otthonnak és befektetésnek egyaránt tudatos választás.


Két épület, egy koncepció. A Makó Napfény Residence két külön karakterű, mégis egységes szemléletű épületből áll.


Válassza az Ön életstílusához illeszkedő környezetet.


Új építésű lakások Makón


Szent János tér 34–36., Liftes épület 33–100 m² Penthouse lehetőség. Loggiás lakások


Páva utca 25., Intimebb udvari hangulat 33–74 m² Loggiás lakások


A lakópark minősége


Olyan műszaki tartalom és kialakítás, amely nemcsak ma korszerű, hanem hosszú távon is értéket képvisel.


Masszív, időtálló szerkezet 45 cm-es falazat és korszerű építészeti megoldások a hosszú távú értékállóság érdekében.


Energiahatékony hűtés-fűtés, Hőszivattyús padlófűtés és helyiségenként szabályozható fan-coil rendszer az alacsony fenntartási költségért.


Saját kültéri élettér, Legtöbb lakáshoz loggia vagy erkély tartozik, amely növeli a komfortérzetet és a kiadhatóságot. Földszinten akár privát zöldfelület.


Jövőre felkészített megoldások, Elektromos autótöltési lehetőség és korszerű műszaki háttér a hosszú távú értékmegőrzés érdekében.


Válassza az Ön céljához illő lehetőséget


Életminőséget, energiatakarékos, modern környezetet és hosszú távú értéket keres Makó egyik legjobb lokációján.


Befektetési lehetőség, Stabil lokáció, kiadható méretek és hosszú távú értéknövekedési potenciál Makó egyik legkeresettebb részén.


érd: Laurencsik János +36 70 4114429


✅ CSOK Plusz


✅ Babaváró támogatás


✅ 3%-os kamatozású lakáshitel


 


KIVITELEZÉSI ÜTEMEZÉS


2026 április–május: kivitelezés indul.


2028: műszaki átadás.


• Geodéziai kitűzés


• Régészeti feltárás


• Alapozás


• Szerkezetépítés


• Gépészeti és elektromos alapszerelés


• Homlokzati és hőszigetelési munkák


• Belső szakipari munkák


• Műszaki átadás


 

Térkép

Ingatlan adásvétel ügyvédi díja
276 750 Ft
a hirdetésben szereplő ár alapján
  • A vételár 0,45%-a
  • Szerződéscsomag teljeskörű képviselettel
  • Ingyenes tulajdoni lap ellenőrzés
  • Az ÁFA-t már tartalmazza
Érdekel az ajánlat →
A tájékoztatás nem teljes körű és nem minősül ajánlattételnek. Minimum díj: 150 000 Ft, maximum díj: 600 000 Ft. A díj kizárólag lakóingatlan adásvételére vonatkozik.

A hirdető elérhetősége

makoiingatlanpont

Laurencsik János
+36 70 411