Eladó Lakás
Hirdetéskód: 9298656

Mov-Ing Home

Felújításhoz személyi kölcsönt keres? Kalkuláljon itt! →
FIX 3% Program

Ez a hirdetés megfelelhet a FIX 3%-os programnak.
Tudj meg többet a részletekről itt.

69.00 m2
ALAPTERÜLET
3
SZOBASZÁM
nincs megadva
ÉPÍTÉS
Egyéb fűtés
FŰTÉS
  • CSOK igénybe vehető nem
  • Tetőtér beépíthető nem
  • Építés éve 2023
  • Fűtés Egyéb fűtés
  • Klíma nem
  • Szigetelt nem
Energetikai besorolás: Nincs meghatározva
A+++
A++
A+
A
B
C
D
E
F
G
H
I

Az MBH Bank személyi kölcsön ajánlata

Fizetett hirdetés
1 millió Ft
6 évre
20 585 Ft/hó
THM: 14.5%
Részletek →
2 millió Ft
6 évre
41 169 Ft/hó
THM: 14.5%
Részletek →
3 millió Ft
6 évre
61 754 Ft/hó
THM: 14.5%
Részletek →

A tájékoztatás nem teljes körű és nem minősül ajánlattételnek.

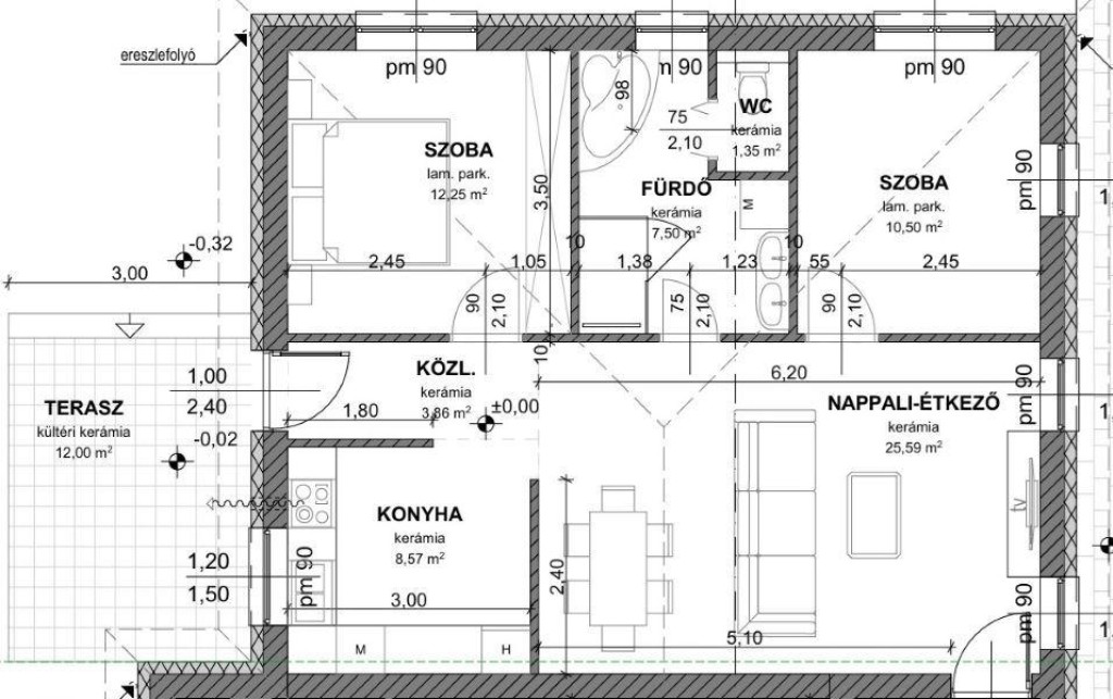
Az ingatlan leírása

Eladásra kínálunk Levél egyik csendes utcájában egy 74 m²-es, kiváló elosztású, újszerű állapotú ikerházi lakást. Az ingatlan 365 m²-es, saját használatú saroktelken fekszik, mely jogilag rendezett használati megosztással rendelkezik.

Főbb jellemzők:

Elrendezés: Az alaprajz rendkívül funkcionális: a központban a világos, D-DNY fekvésű nappali-étkező áll, melyhez egy jól felszerelt, különálló konyha csatlakozik. A két hálószoba (10,5 m² és 12,25 m²) ideális életteret biztosít.

Műszaki tartalom: A ház A kategóriás energiahatékonyságú. A fűtést és hűtést 3 db modern Gree klíma biztosítja, az áramellátást pedig egy 4400-4600 kWh éves hozamú napelemrendszer segíti, így a fenntartási költség minimális.

Extrák: Aranytölgy színű, 3 rétegű hőszigetelt ablakok redőnnyel, 75A áramerősség (3 fázis), prémium Ariston Lydos Hybrid bojler és 12 m²-es terasz.

Ez az ingatlan tökéletes választás fiatal pároknak, ingázóknak vagy bárkinek, aki értékeli a modern technológiát és a csendes, kertvárosi környezetet.

Várom hívását egy személyes megtekintésre!

Térkép

Ingatlan adásvétel ügyvédi díja
292 500 Ft
a hirdetésben szereplő ár alapján
  • A vételár 0,45%-a
  • Szerződéscsomag teljeskörű képviselettel
  • Ingyenes tulajdoni lap ellenőrzés
  • Az ÁFA-t már tartalmazza
Érdekel az ajánlat →
A tájékoztatás nem teljes körű és nem minősül ajánlattételnek. Minimum díj: 150 000 Ft, maximum díj: 600 000 Ft. A díj kizárólag lakóingatlan adásvételére vonatkozik.

A hirdető elérhetősége

Mov-Ing Home

Dömötör Attila
+36 30 850