Eladó Lakás
Hirdetéskód: 9271411
Komplex Ingatlan
Felújításhoz személyi kölcsönt keres? Kalkuláljon itt! →
Ez a hirdetés megfelelhet a FIX 3%-os programnak.
Tudj meg többet a részletekről itt.
46.00 m2
ALAPTERÜLET2
SZOBASZÁMnincs megadva
ÉPÍTÉSGeotermikus
FŰTÉS- CSOK igénybe vehető nem
- Belső szintek 3
- Tetőtér beépíthető nem
- Építés éve 2026
- Fűtés Geotermikus
- Klíma nem
- Szigetelt nem
A+++
A++
A+
A
B
C
D
E
F
G
H
I
Az ingatlan leírása
Napsugár Lakópark – Levél, határmenti lokáció
A Levélen megvalósuló Napsugár Lakópark egy két tömbből álló, 46 lakásos új építésű társasházi fejlesztés.
A település elhelyezkedése kiemelkedő: Mosonmagyaróvár gyorsan elérhető, az M1 autópálya közelsége pedig Ausztria és Szlovákia irányába is kiváló közlekedést biztosít, ami stabil bérleti keresletet eredményez.
Az értékesítés legelső szakasza ideális lehetőség befektetők számára, akik jó lokációban, hosszú távon értékálló ingatlant keresnek.
Tervezett kulcsrakész átadás: 2027 II. negyedév
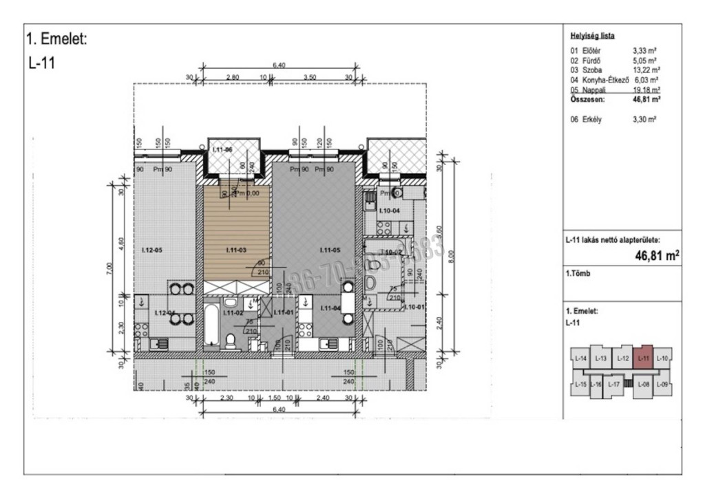
Jelen hirdetésben szereplő első emeleti lakás 46,81 m2 hasznos alapterülettel rendelkezik, elosztását tekintve rendelkezik egy amerikai konyhás nappalival, hálószobával, egy fürdőszobával, valamint egy 3,3 m2 nagyságú erkéllyel.
Minőségi kivitelezés:
Fűtés: gáz+ hőszivattyús hibrid rendszer padlófűtéssel, lakásonként egyedi mérőórával, klíma előkészítéssel
Nyílászárók: 3 rétegű, 5 légkamrás hőszigetelt üvegezés
Hőszigetelés: 15 cm EPS rendszer
Szerkezet: PTH30 N+F falazat, monolit vasbeton födém
A feltüntetett vételár, fűtéskész állapotra vonatkozik. Igény esetén a kivitelező vállalja a kulcsrakész befejezést is. Tároló és parkoló az ingatlanhoz külön vásárolható!
Amennyiben felkeltette ez a hirdetés az érdeklődését vagy további kérdései vannak, akkor keressen bizalommal.
Irodánk készséggel segít hitel, támogatások díjmentes ügyintézésében is.
A Levélen megvalósuló Napsugár Lakópark egy két tömbből álló, 46 lakásos új építésű társasházi fejlesztés.
A település elhelyezkedése kiemelkedő: Mosonmagyaróvár gyorsan elérhető, az M1 autópálya közelsége pedig Ausztria és Szlovákia irányába is kiváló közlekedést biztosít, ami stabil bérleti keresletet eredményez.
Az értékesítés legelső szakasza ideális lehetőség befektetők számára, akik jó lokációban, hosszú távon értékálló ingatlant keresnek.
Tervezett kulcsrakész átadás: 2027 II. negyedév
Jelen hirdetésben szereplő első emeleti lakás 46,81 m2 hasznos alapterülettel rendelkezik, elosztását tekintve rendelkezik egy amerikai konyhás nappalival, hálószobával, egy fürdőszobával, valamint egy 3,3 m2 nagyságú erkéllyel.
Minőségi kivitelezés:
Fűtés: gáz+ hőszivattyús hibrid rendszer padlófűtéssel, lakásonként egyedi mérőórával, klíma előkészítéssel
Nyílászárók: 3 rétegű, 5 légkamrás hőszigetelt üvegezés
Hőszigetelés: 15 cm EPS rendszer
Szerkezet: PTH30 N+F falazat, monolit vasbeton födém
A feltüntetett vételár, fűtéskész állapotra vonatkozik. Igény esetén a kivitelező vállalja a kulcsrakész befejezést is. Tároló és parkoló az ingatlanhoz külön vásárolható!
Amennyiben felkeltette ez a hirdetés az érdeklődését vagy további kérdései vannak, akkor keressen bizalommal.
Irodánk készséggel segít hitel, támogatások díjmentes ügyintézésében is.