Eladó Lakás
Hirdetéskód: 9319092

Sweet Home Ingatlaniroda

Felújításhoz személyi kölcsönt keres? Kalkuláljon itt! →
FIX 3% Program

Ez a hirdetés megfelelhet a FIX 3%-os programnak.
Tudj meg többet a részletekről itt.

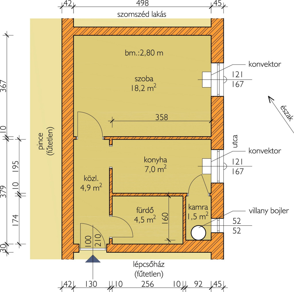
36.00 m2
ALAPTERÜLET
1
SZOBASZÁM
Tégla
ÉPÍTÉS
Gáz (konvektor)
FŰTÉS
  • CSOK igénybe vehető nem
  • Tetőtér beépíthető nem
  • Parkolási lehetőség Utcán, közterületen
  • Fűtés Gáz (konvektor)
  • Építőanyag Tégla
  • Klíma nem
  • Szigetelt nem
Energetikai besorolás: Nincs meghatározva
A+++
A++
A+
A
B
C
D
E
F
G
H
I

Az MBH Bank személyi kölcsön ajánlata

Fizetett hirdetés
1 millió Ft
6 évre
20 585 Ft/hó
THM: 14.5%
Részletek →
2 millió Ft
6 évre
41 169 Ft/hó
THM: 14.5%
Részletek →
3 millió Ft
6 évre
61 754 Ft/hó
THM: 14.5%
Részletek →

A tájékoztatás nem teljes körű és nem minősül ajánlattételnek.

Az ingatlan leírása

Felújított földszinti lakás eladó Komló belvárosában

Komló szívében kínálunk megvételre egy 36 nm-es, szépen felújított földszinti lakást, amely ideális választás lehet első otthonnak, idősebbeknek vagy akár befektetésnek is.

Fűtése gázkonvektoros, így fenntartása kedvező és könnyen szabályozható.

Kiváló elhelyezkedés, a közelben boltok, buszmegálló, gyógyszertár és minden fontos szolgáltatás pár perc sétára elérhető.

Hitelügyintézésben független hitelszakértőnk segít, legyen szó akár CSOK Pluszról, lakáshitelről vagy LTP lehetőségekről is.

Üzenetben is szívesen válaszolunk.

Kis lakás, nagy lehetőség a belvárosban.

Térkép

Ingatlan adásvétel ügyvédi díja
150 000 Ft
a hirdetésben szereplő ár alapján
  • A vételár 0,45%-a
  • Szerződéscsomag teljeskörű képviselettel
  • Ingyenes tulajdoni lap ellenőrzés
  • Az ÁFA-t már tartalmazza
Érdekel az ajánlat →
A tájékoztatás nem teljes körű és nem minősül ajánlattételnek. Minimum díj: 150 000 Ft, maximum díj: 600 000 Ft. A díj kizárólag lakóingatlan adásvételére vonatkozik.

A hirdető elérhetősége

Sweet Home Ingatlaniroda

Sweet Home Ingatlaniroda
+36 20 292