Eladó Lakás
Hirdetéskód: 9303591

Pécs Király utca 75/5 - OTP Ingatlanpont Iroda

Felújításhoz személyi kölcsönt keres? Kalkuláljon itt! →
52.00 m2
ALAPTERÜLET
2
SZOBASZÁM
nincs megadva
ÉPÍTÉS
Elektromos
FŰTÉS
  • CSOK igénybe vehető nem
  • Tetőtér beépíthető nem
  • Építés éve 1970
  • Fűtés Elektromos
  • Klíma nem
  • Szigetelt nem
Energetikai besorolás: Nincs meghatározva
A+++
A++
A+
A
B
C
D
E
F
G
H
I

Az MBH Bank személyi kölcsön ajánlata

Fizetett hirdetés
1 millió Ft
6 évre
20 585 Ft/hó
THM: 14.5%
Részletek →
2 millió Ft
6 évre
41 169 Ft/hó
THM: 14.5%
Részletek →
3 millió Ft
6 évre
61 754 Ft/hó
THM: 14.5%
Részletek →

A tájékoztatás nem teljes körű és nem minősül ajánlattételnek.

Az ingatlan leírása

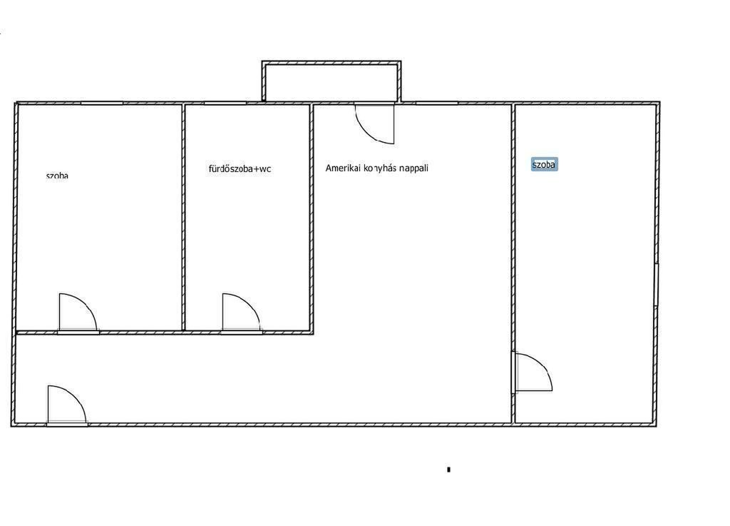
Azonnal költözhető, felújított 52 nm-es tégla lakás Komlón!
Kökönyös városrészben, 1. emeleten eladó erkélyes, 2 hálószoba + amerikai konyhás nappali elrendezésű ingatlan.
Modern megoldásokkal: infra padlófűtés, új nyílászárók, elektromos redőnyök, gépesített konyha, kényelmes nagy zuhanyzós fürdőszoba.
Kiváló közlekedés Pécs felé, iskola és óvoda a közelben.
Ne maradj le, hívj még ma, nézzük meg együtt! M324001

Térkép

A hirdető elérhetősége

Pécs Király utca 75/5 - OTP Ingatlanpont Iroda

Régi-Mezei Zsuzsanna
+36 20 434