Eladó Lakás
Hirdetéskód: 9195857
DUX Nekretnine d.o.o. - Horváth Lajos
73 m2
ALAPTERÜLET3
SZOBASZÁMnincs megadva
ÉPÍTÉSnincs megadva
FŰTÉS- CSOK igénybe vehető nem
- Belső szintek 2
- Tetőtér beépíthető nem
- Klíma nem
- Szigetelt nem
A+++
A++
A+
A
B
C
D
E
F
G
H
I
Az ingatlan leírása
PAG SZIGETE, MANDRE - Modern új épület tengerre néző kilátással, 80 méterre a strandtól! S8
Vonzó S8 apartman eladó egy új épületben Mandre városában, mindössze 80 méterre a gyönyörű strandtól. Az épületben összesen nyolc modern apartman található, melyeket a minőség, a kényelem és a modern életstílus hangsúlyozásával építettek.
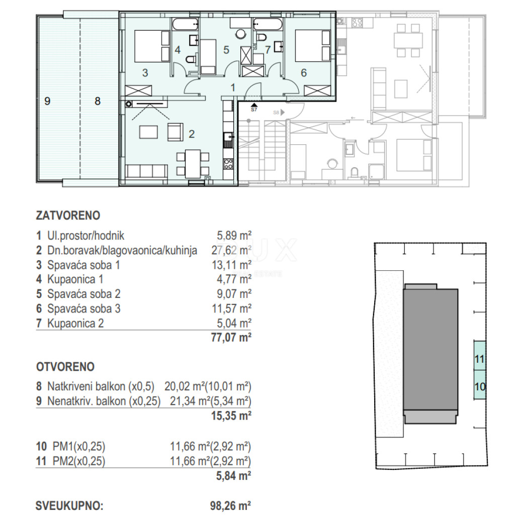
Az S8 apartman a második emeleten található, két hálószobából, egy padlófűtéses fürdőszobából, egy tágas nappaliból konyhával és étkezővel, valamint egy fedett, tengerre néző teraszból áll, amely ideális a meleg nyári estéken való pihenésre. Az apartmanhoz két parkolóhely is tartozik.
Ez az új épület a modern design és a mediterrán báj tökéletes kombinációját képviseli - ideális nyaraláshoz, de befektetésként is, akár a turisztikai szezonban bérbeadás céljából.
Mandre egy festői halászfalu Pag szigetén, amely tiszta tengeréről, jól karbantartott strandjairól és nyugodt hangulatáról ismert. Pag szigete egyedi természetével, gazdag gasztronómiai kínálatával, pagi sajtjával és borával, valamint autentikus dalmát szellemével büszkélkedhet.
További információkért és az ingatlan megtekintéséhez forduljon hozzánk bizalommal – új otthona a tengerparton várja Önt Mandre-ban!
Kedves ügyfeleink, a közvetítői jutalék felszámítása az Általános Szerződési Feltételeknek megfelelően történik:
Vonzó S8 apartman eladó egy új épületben Mandre városában, mindössze 80 méterre a gyönyörű strandtól. Az épületben összesen nyolc modern apartman található, melyeket a minőség, a kényelem és a modern életstílus hangsúlyozásával építettek.
Az S8 apartman a második emeleten található, két hálószobából, egy padlófűtéses fürdőszobából, egy tágas nappaliból konyhával és étkezővel, valamint egy fedett, tengerre néző teraszból áll, amely ideális a meleg nyári estéken való pihenésre. Az apartmanhoz két parkolóhely is tartozik.
Ez az új épület a modern design és a mediterrán báj tökéletes kombinációját képviseli - ideális nyaraláshoz, de befektetésként is, akár a turisztikai szezonban bérbeadás céljából.
Mandre egy festői halászfalu Pag szigetén, amely tiszta tengeréről, jól karbantartott strandjairól és nyugodt hangulatáról ismert. Pag szigete egyedi természetével, gazdag gasztronómiai kínálatával, pagi sajtjával és borával, valamint autentikus dalmát szellemével büszkélkedhet.
További információkért és az ingatlan megtekintéséhez forduljon hozzánk bizalommal – új otthona a tengerparton várja Önt Mandre-ban!
Kedves ügyfeleink, a közvetítői jutalék felszámítása az Általános Szerződési Feltételeknek megfelelően történik: