Eladó Lakás
Hirdetéskód: 9024359
GDN Ingatlanhálózat - SZIGET
Ez a hirdetés megfelelhet a FIX 3%-os programnak.
Tudj meg többet a részletekről itt.
35 m2
ALAPTERÜLET1
SZOBASZÁMnincs megadva
ÉPÍTÉSnincs megadva
FŰTÉS- CSOK igénybe vehető nem
- Tetőtér beépíthető nem
- Klíma nem
- Szigetelt nem
A+++
A++
A+
A
B
C
D
E
F
G
H
I
Az ingatlan leírása
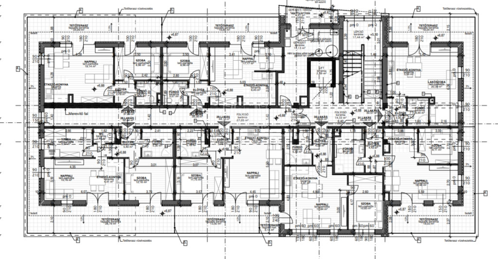
Kiskunlacháza központi részén, kínálom megvételre új-építésű 31 lakásos liftes társasház, földszinti 35,24 nm-es lakását!
Kiskunlacházán most épülő társasház földszint 11-es. lakása eladó!
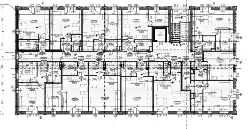
A társasházban 31 db lakás épül 27 és 54 nm között három szinten,
lakások 2025 második felében kerülnek átadásra.
Nézze meg a többi lakást is a hirdetésem között!
Műszaki tartalom:
-alap vasalt beton,
-falazat phorothetm tégla
-monolit beton födém
-nyílászáró 3rtg üvegezett műanyag szerkezetű
-tető fedése beton cserép
-fűtés hőszivattyú, padlófűtés hőleadással
-15 cm Dryvit rendszerű homlokzatszigetelés
-választható hideg és meleg burkolat.
A lakás 35,24 nm, helyiségei:előtér 5,18 nm, fürdőszoba 4,78 nm, előtér 3,38 nm, étkező/konyha 5,61 nm, nappali/lakószoba 16,29 nm.
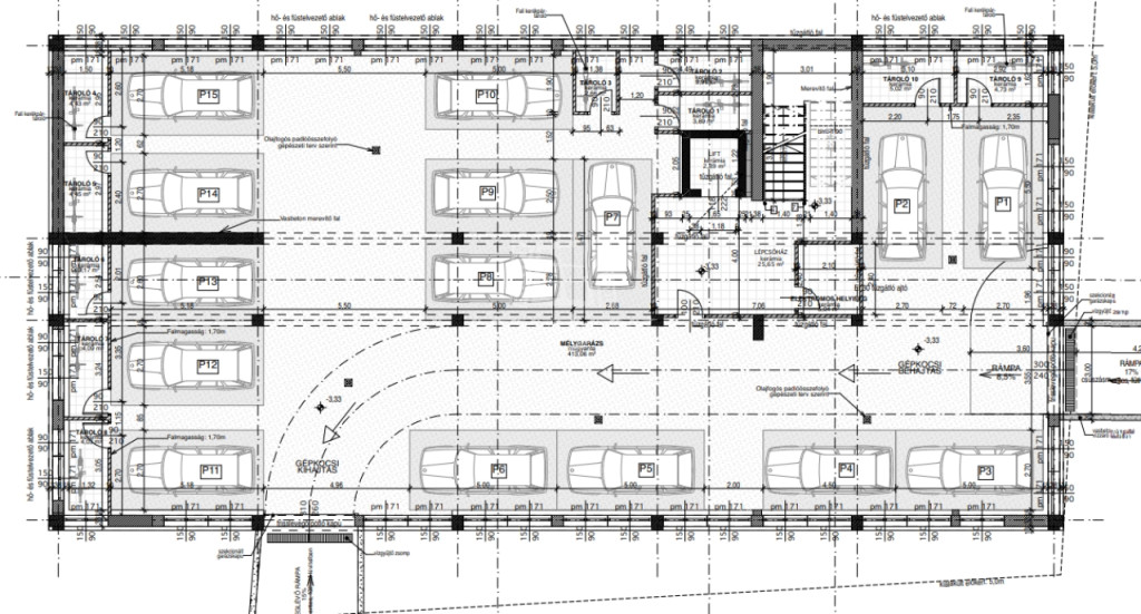
A lakáshoz vásárolható teremgarázshely melynek ára 3.500.000 ft, vagy földfelszíni parkolóhely melynek ára 1.500.000 ft, (megvásárlása nem kötelező), valamint tároló helyiség is vásárolható.
A társasházban 31 db lakás kerül megépítésre, a földszinti és első emeleti lakások erkély nélküliek, a 2 emeleti lakások terasz kapcsolattal rendelkeznek.
Amennyiben kérdése merül fel, vagy megtekintené a lakást keressen bizalommal!
FINANSZÍROZÁS:
Nálunk mindent egy helyen intézhet:
- hivatalos ingatlanközvetítés;
- szakszerű jogi képviselet;
- profi CSOK-PLUSZ, és hitelügyintézés: 16 Bank, több mint 100 konstrukció;
A részletes adatvédelmi tájékoztató folyamatosan elérhető a gdn-ingatlan adatvedelmi oldalon. ...TOVÁBBI, TÖBBEZRES INGATLAN KÍNÁLAT: - GDN azonosító: 379507
Kiskunlacházán most épülő társasház földszint 11-es. lakása eladó!
A társasházban 31 db lakás épül 27 és 54 nm között három szinten,
lakások 2025 második felében kerülnek átadásra.
Nézze meg a többi lakást is a hirdetésem között!
Műszaki tartalom:
-alap vasalt beton,
-falazat phorothetm tégla
-monolit beton födém
-nyílászáró 3rtg üvegezett műanyag szerkezetű
-tető fedése beton cserép
-fűtés hőszivattyú, padlófűtés hőleadással
-15 cm Dryvit rendszerű homlokzatszigetelés
-választható hideg és meleg burkolat.
A lakás 35,24 nm, helyiségei:előtér 5,18 nm, fürdőszoba 4,78 nm, előtér 3,38 nm, étkező/konyha 5,61 nm, nappali/lakószoba 16,29 nm.
A lakáshoz vásárolható teremgarázshely melynek ára 3.500.000 ft, vagy földfelszíni parkolóhely melynek ára 1.500.000 ft, (megvásárlása nem kötelező), valamint tároló helyiség is vásárolható.
A társasházban 31 db lakás kerül megépítésre, a földszinti és első emeleti lakások erkély nélküliek, a 2 emeleti lakások terasz kapcsolattal rendelkeznek.
Amennyiben kérdése merül fel, vagy megtekintené a lakást keressen bizalommal!
FINANSZÍROZÁS:
Nálunk mindent egy helyen intézhet:
- hivatalos ingatlanközvetítés;
- szakszerű jogi képviselet;
- profi CSOK-PLUSZ, és hitelügyintézés: 16 Bank, több mint 100 konstrukció;
A részletes adatvédelmi tájékoztató folyamatosan elérhető a gdn-ingatlan adatvedelmi oldalon. ...TOVÁBBI, TÖBBEZRES INGATLAN KÍNÁLAT: - GDN azonosító: 379507