Eladó Lakás
Hirdetéskód: 9024356

GDN Ingatlanhálózat - SZIGET

FIX 3% Program

Ez a hirdetés megfelelhet a FIX 3%-os programnak.
Tudj meg többet a részletekről itt.

35 m2
ALAPTERÜLET
1
SZOBASZÁM
nincs megadva
ÉPÍTÉS
nincs megadva
FŰTÉS
  • CSOK igénybe vehető nem
  • Tetőtér beépíthető nem
  • Klíma nem
  • Szigetelt nem
Energetikai besorolás: Nincs meghatározva
A+++
A++
A+
A
B
C
D
E
F
G
H
I

Az ingatlan leírása

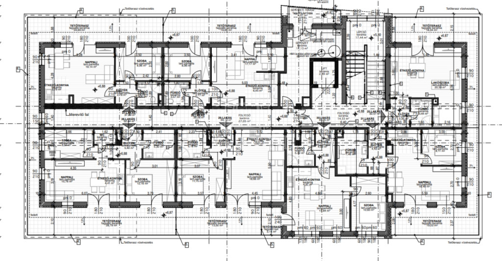
Kiskunlacháza központi részén, kínálom megvételre új-építésű 31 lakásos liftes társasház, földszinti 35,16 nm-es lakását!

Kiskunlacházán most épülő társasház földszint 9-es. lakása eladó!

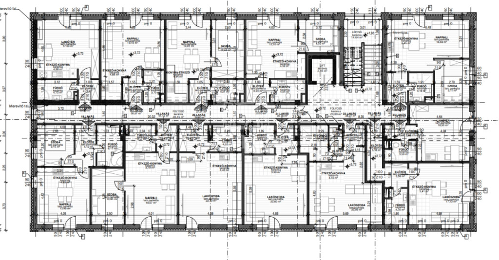
A társasházban 31 db lakás épül 27 és 54 nm között három szinten,
lakások 2025 második felében kerülnek átadásra.
Nézze meg a többi lakást is a hirdetésem között!

Műszaki tartalom:
-alap vasalt beton,
-falazat phorothetm tégla
-monolit beton födém
-nyílászáró 3rtg üvegezett műanyag szerkezetű
-tető fedése beton cserép
-fűtés hőszivattyú, padlófűtés hőleadással
-15 cm Dryvit rendszerű homlokzatszigetelés
-választható hideg és meleg burkolat.
A lakás 35,16 nm, helyiségei:előtér 3,78 nm, fürdőszoba 4,89 nm, étkező/konyha 10,17 nm, nappali/lakószoba 16,32 nm.
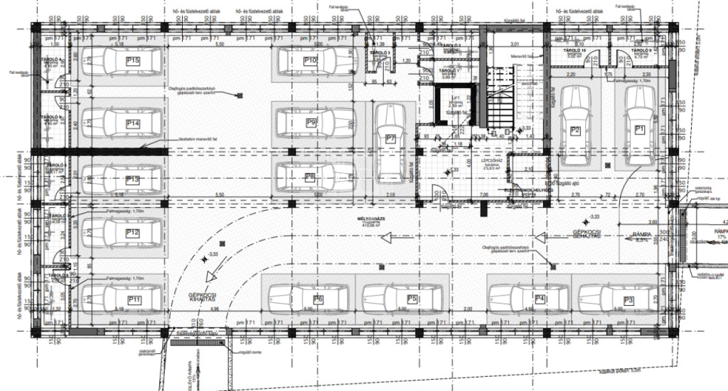
A lakáshoz vásárolható teremgarázshely melynek ára 3.500.000 ft, vagy földfelszíni parkolóhely melynek ára 1.500.000 ft, (megvásárlása nem kötelező), valamint tároló helyiség is vásárolható.
A társasházban 31 db lakás kerül megépítésre, a földszinti és első emeleti lakások erkély nélküliek, a 2 emeleti lakások terasz kapcsolattal rendelkeznek.

Amennyiben kérdése merül fel, vagy megtekintené a lakást keressen bizalommal!

FINANSZÍROZÁS:
Nálunk mindent egy helyen intézhet:
- hivatalos ingatlanközvetítés;
- szakszerű jogi képviselet;
- profi CSOK-PLUSZ, és hitelügyintézés: 16 Bank, több mint 100 konstrukció;

A részletes adatvédelmi tájékoztató folyamatosan elérhető a gdn-ingatlan adatvedelmi oldalon. ...TOVÁBBI, TÖBBEZRES INGATLAN KÍNÁLAT: - GDN azonosító: 379502

Térkép

A hirdető elérhetősége

GDN Ingatlanhálózat - SZIGET

Csík Zsolt
+36 30 641