Eladó Lakás
Hirdetéskód: 9321991

OC-Balaton

Felújításhoz személyi kölcsönt keres? Kalkuláljon itt! →
FIX 3% Program

Ez a hirdetés megfelelhet a FIX 3%-os programnak.
Tudj meg többet a részletekről itt.

55.00 m2
ALAPTERÜLET
2
SZOBASZÁM
nincs megadva
ÉPÍTÉS
nincs megadva
FŰTÉS
  • CSOK igénybe vehető nem
  • Tetőtér beépíthető nem
  • Építés éve 2026
  • Klíma nem
  • Szigetelt nem
Energetikai besorolás: Nincs meghatározva
A+++
A++
A+
A
B
C
D
E
F
G
H
I

Az MBH Bank személyi kölcsön ajánlata

Fizetett hirdetés
1 millió Ft
6 évre
20 585 Ft/hó
THM: 14.5%
Részletek →
2 millió Ft
6 évre
41 169 Ft/hó
THM: 14.5%
Részletek →
3 millió Ft
6 évre
61 754 Ft/hó
THM: 14.5%
Részletek →

A tájékoztatás nem teljes körű és nem minősül ajánlattételnek.

Az ingatlan leírása


Projekt bemutatása

KESZTHELY BELVÁROSÁBAN, közel a sétáló utcához, különböző méretű
lakások, épülő 26 lakásos társasházban, 2028. II. negyedév végi átadással
leköthetők!
A minőségi beépített anyagok kizárólag nagymúltú gyártók termékei közül
kerül ki. Egyedi tervezésének köszönhetően, hosszú távra kiváló otthon
érzetét kelti.
Az építkezés kezdete: 2026. április
Kulcsrakész átadás: 2028. július

MŰSZAKI TARTALOM:
-Pontalapozás 25 cm vastag vasbeton lemezalapra
-Monolit vasbeton vázzal és statikailag méretezett födémekkel, kerámia és
pórusbeton kitöltő falakkal
-A pincefalak és a lépcsőházak vasbetonból, míg a külső falak Porotherm
vázkerámia és Silka pórusbeton falazatok
-Hőszigetelés és hangszigetelés a legmodernebb anyagokkal, a komfortos
lakóterekért
-Monolit vasbeton födémek, rejtett gerendákkal és akusztikai szigeteléssel
-A műanyag homlokzati nyílászárók három rétegű üvegezéssel, jó légzárással,
redőnyszekrénnyel és motoros mozgatás előkészítéssel rendelkeznek
-Az erkélyek csúszásmentes és fagyálló gres burkolattal
-Homlokzat 15 cm-es hőszigetelés, fehér nemes vakolat
-Kleemann 8 személyes lift EPH védelemmel
-Melegvíz, Ariston Velis bojler
-Padlófűtés „Daikin” hőszivattyú
-Riasztó előkészítés
-Konyha: gépészet, elektromos kiállások kialakítva, bútor nélkül
-Épített zuhany, üveg fallal
-Vizes helyiségek: kerámia 7 500.- FT + áfa / nm
-Szobák: laminált parketta 7 500.-Ft. + áfa / nm
-Falak: diszperziós festés fehér Baumit anyagokkal
-Kapacitás: lakásonként 32 A
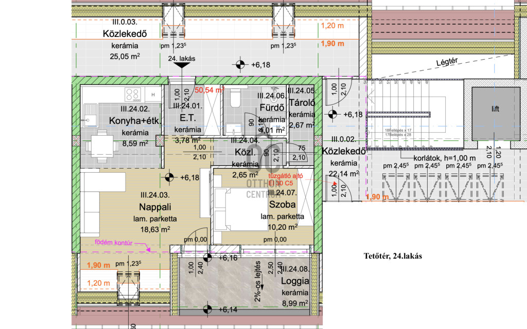
- Lakás méretek: 38 M2 - 68 M2-Ig

ÉRTÉKESÍTÉSI ÜTEMTERV:
- Foglaló: 10% + 10% vételár előleg

KÜLÖN HOZZÁVÁSÁROLHATÓ

A projekthez 29 teremgarázs tartozik: 6,5 M Ft/ db.


További információért és személyes megtekintésért keressen bizalommal!

Térkép

Ingatlan adásvétel ügyvédi díja
294 750 Ft
a hirdetésben szereplő ár alapján
  • A vételár 0,45%-a
  • Szerződéscsomag teljeskörű képviselettel
  • Ingyenes tulajdoni lap ellenőrzés
  • Az ÁFA-t már tartalmazza
Érdekel az ajánlat →
A tájékoztatás nem teljes körű és nem minősül ajánlattételnek. Minimum díj: 150 000 Ft, maximum díj: 600 000 Ft. A díj kizárólag lakóingatlan adásvételére vonatkozik.

A hirdető elérhetősége

OC-Balaton

Molnár Henriett
+36 70 412