Eladó Lakás
Hirdetéskód: 9287633
HOUSE36 Ingatlanhálózat
Felújításhoz személyi kölcsönt keres? Kalkuláljon itt! →
Ez a hirdetés megfelelhet a FIX 3%-os programnak.
Tudj meg többet a részletekről itt.
73.00 m2
ALAPTERÜLET3
SZOBASZÁMnincs megadva
ÉPÍTÉSGáz (cirkó)
FŰTÉS- CSOK igénybe vehető nem
- Tetőtér beépíthető nem
- Építés éve 2026
- Fűtés Gáz (cirkó)
- Klíma nem
- Szigetelt nem
A+++
A++
A+
A
B
C
D
E
F
G
H
I
Az ingatlan leírása
Kecskemét egyik ikonikus épülete végre újjászületik!
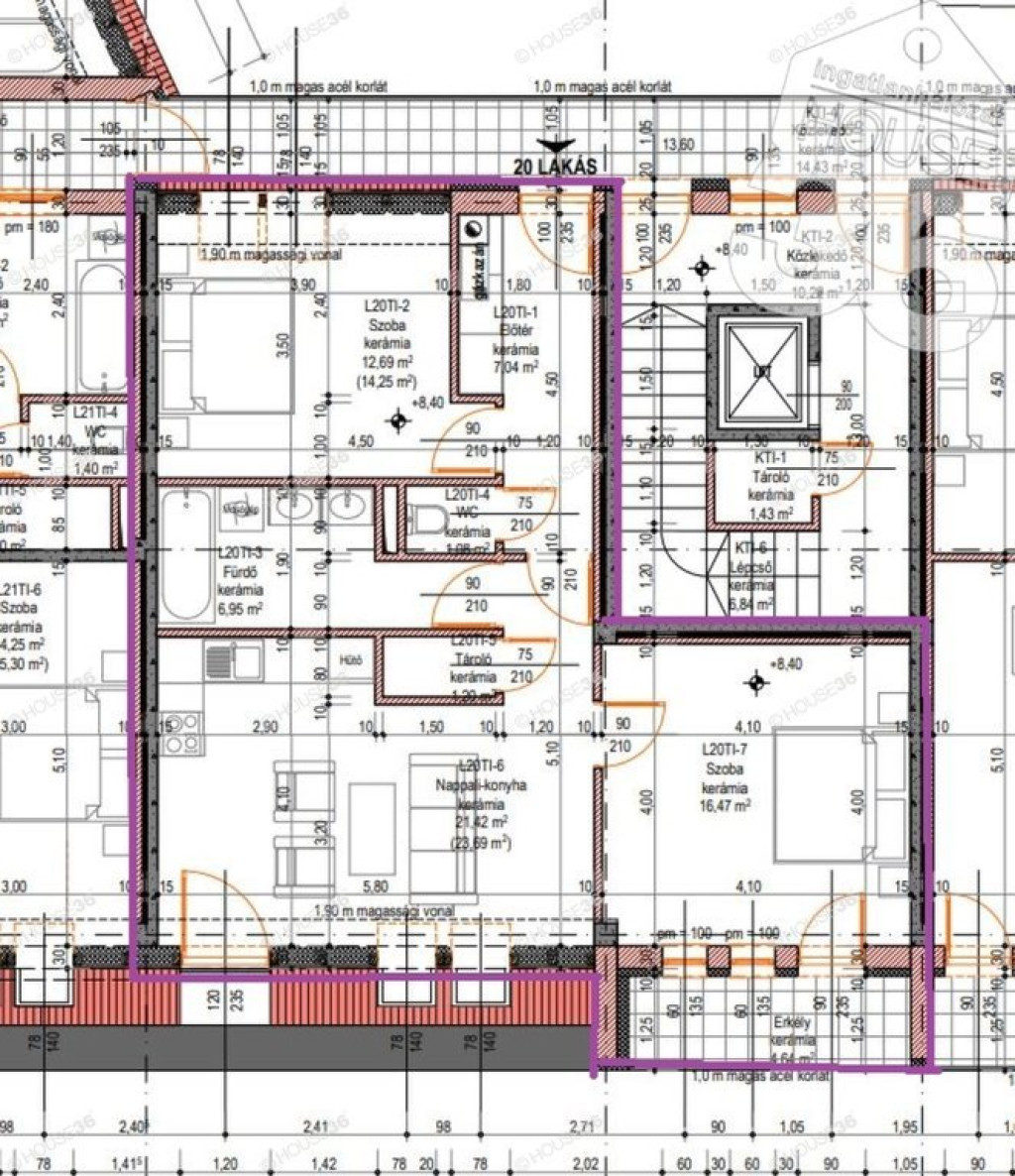
Kecskemét belvárosának szélén, mégis pár percre a főtértől, kiváló közlekedés mellett, 27 lakásos liftes társasházban, zömében erkélyes, új lakások leköthetőek. Opcionálisan garázs és beálló vásárlási lehetőség.
A társasház III. emeletén, bruttó 70,68 m2/nettó 66,85 m2 lakóterű, nappali + 2 szobás lakás, 4,64 m2 erkéllyel megvásárolható.
Várható átadás, 2026 december.
27 lakásos, 5 szintes, liftes épület.
Gáz kombi kazán lakásonként
Hűtő-fűtő klíma
Műanyag 6 légkamrás 3 rétegű ablakok, rejtett redőnytokos redőnnyel felszerelve
Beltéri ajtók 5 színben választhatók.
Szobákban laminált parketta, egyéb helyiségekben vinyl illetve hidegburkolat.
Fürdőszobai szaniterek beépítve műszaki tartalom szerint.
Konyhabútor, fürdőszoba szekrény,előszoba fal opcionálisan rendelhető.
További információkat és részletes műszaki tartalmat egy személyes találkozó keretein belül tudunk biztosítani.
A HOUSE36kínálatában található összes ingatlannal kapcsolatban tudok felvilágosítást nyújtani!
Hívjon bizalommal!
Szolgáltatásaink Kereső ügyfeleink számára INGYENESEK!
Kecskemét belvárosának szélén, mégis pár percre a főtértől, kiváló közlekedés mellett, 27 lakásos liftes társasházban, zömében erkélyes, új lakások leköthetőek. Opcionálisan garázs és beálló vásárlási lehetőség.
A társasház III. emeletén, bruttó 70,68 m2/nettó 66,85 m2 lakóterű, nappali + 2 szobás lakás, 4,64 m2 erkéllyel megvásárolható.
Várható átadás, 2026 december.
27 lakásos, 5 szintes, liftes épület.
Gáz kombi kazán lakásonként
Hűtő-fűtő klíma
Műanyag 6 légkamrás 3 rétegű ablakok, rejtett redőnytokos redőnnyel felszerelve
Beltéri ajtók 5 színben választhatók.
Szobákban laminált parketta, egyéb helyiségekben vinyl illetve hidegburkolat.
Fürdőszobai szaniterek beépítve műszaki tartalom szerint.
Konyhabútor, fürdőszoba szekrény,előszoba fal opcionálisan rendelhető.
További információkat és részletes műszaki tartalmat egy személyes találkozó keretein belül tudunk biztosítani.
A HOUSE36kínálatában található összes ingatlannal kapcsolatban tudok felvilágosítást nyújtani!
Hívjon bizalommal!
Szolgáltatásaink Kereső ügyfeleink számára INGYENESEK!