Eladó Lakás
Hirdetéskód: 9293543
HOUSE36 Ingatlanhálózat
Felújításhoz személyi kölcsönt keres? Kalkuláljon itt! →139.00 m2
ALAPTERÜLET4
SZOBASZÁMnincs megadva
ÉPÍTÉSEgyéb fűtés
FŰTÉS- CSOK igénybe vehető nem
- Tetőtér beépíthető nem
- Építés éve 2026
- Fűtés Egyéb fűtés
- Klíma nem
- Szigetelt nem
A+++
A++
A+
A
B
C
D
E
F
G
H
I
Az ingatlan leírása
Kecskemét belvárosában, új építésű társasházban,leköthető lakásokat, irodákat, üzleteket kínálunk!
Modern, letisztult, időtálló megjelenéssel illeszkedik a belvárosi környezetbe. A gondosan megtervezett homlokzat, a nagy üvegfelületek és a harmonikus színvilág, elegáns mégis harmonikus atmoszférát teremtenek.
A liftes épületben, 22 lakás és 5 földszinti iroda, üzlet kerül kialakításra. Opcionálisan teremgarázs és beálló vásárlási lehetőséggel.
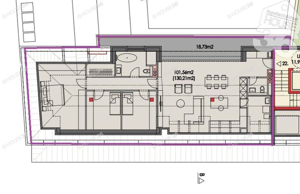
Az épület III. emeletén, bruttó 130,21 m2, nettó 101,56 m2 lakóterű, nappali + 3 szobás lakás, 18,73 m2 erkéllyel megvásárolható.
Várható átadás, 2028 január.
4 szintes, liftes épület
Modern lakáselrendezések
Többnyire erkélyes lakások
Teremgarázs és beálló
Igényes közösségi terek
További információkat és részletes műszaki tartalmat egy személyes találkozó keretein belül tudunk biztosítani.
Nézze meg ajánlatainkat, amíg rendelkezésre állnak az ingatlanok!
Hitel esetén, egyedi kamatkonstrukciót és ingyenes banki előminősítést kínálunk ügyfeleink részére.
Modern, letisztult, időtálló megjelenéssel illeszkedik a belvárosi környezetbe. A gondosan megtervezett homlokzat, a nagy üvegfelületek és a harmonikus színvilág, elegáns mégis harmonikus atmoszférát teremtenek.
A liftes épületben, 22 lakás és 5 földszinti iroda, üzlet kerül kialakításra. Opcionálisan teremgarázs és beálló vásárlási lehetőséggel.
Az épület III. emeletén, bruttó 130,21 m2, nettó 101,56 m2 lakóterű, nappali + 3 szobás lakás, 18,73 m2 erkéllyel megvásárolható.
Várható átadás, 2028 január.
4 szintes, liftes épület
Modern lakáselrendezések
Többnyire erkélyes lakások
Teremgarázs és beálló
Igényes közösségi terek
További információkat és részletes műszaki tartalmat egy személyes találkozó keretein belül tudunk biztosítani.
Nézze meg ajánlatainkat, amíg rendelkezésre állnak az ingatlanok!
Hitel esetén, egyedi kamatkonstrukciót és ingyenes banki előminősítést kínálunk ügyfeleink részére.