Eladó Lakás
Hirdetéskód: 9254822

-

Felújításhoz személyi kölcsönt keres? Kalkuláljon itt! →
FIX 3% Program

Ez a hirdetés megfelelhet a FIX 3%-os programnak.
Tudj meg többet a részletekről itt.

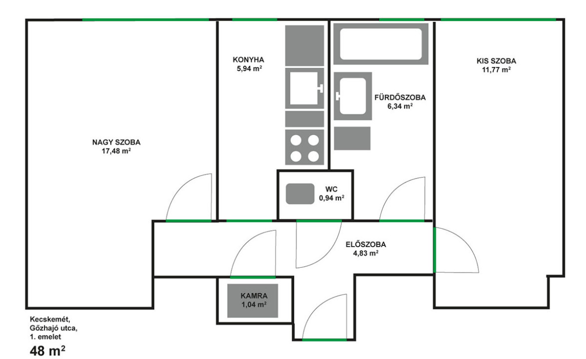
48.00 m2
ALAPTERÜLET
2
SZOBASZÁM
nincs megadva
ÉPÍTÉS
Gáz (konvektor)
FŰTÉS
  • Fűtés Gáz (konvektor)
Energetikai besorolás: Nincs meghatározva
A+++
A++
A+
A
B
C
D
E
F
G
H
I

Az MBH Bank személyi kölcsön ajánlata

Fizetett hirdetés
1 millió Ft
6 évre
20 585 Ft/hó
THM: 14.5%
Részletek →
2 millió Ft
6 évre
41 169 Ft/hó
THM: 14.5%
Részletek →
3 millió Ft
6 évre
61 754 Ft/hó
THM: 14.5%
Részletek →

A tájékoztatás nem teljes körű és nem minősül ajánlattételnek.

Az ingatlan leírása

Első emeleti, felújított 2 szobás lakás eladó magánstulajdonostól a Széchenyiváros kedvelt Gőzhajó utcájában.


A 48 m²-es, csendes lakás két külön bejáratú szobával, külön WC-vel, fürdőszobával és kamrával rendelkezik. Biztonsági bejárati ajtó, műanyag nyílászárók, szigetelt társasház.


Fűtés: gázkonvektorok, a fürdőszobában elektromos törölközőszárító. A meleg vizet Ariston bojler biztosítja.


Csendes, jó lakóközösség. A vízhálózat teljes körűen fel lett újítva, az elektromos hálózat részleges felújításon esett át. A lépcsőház felújítása folyamatban van.


Ingatlanközvetítők kérem, ne keressenek.

Térkép

A hirdető elérhetősége

Viktor

+36 30 193