Eladó Lakás
Hirdetéskód: 9295866

Wiskó Kft.

Felújításhoz személyi kölcsönt keres? Kalkuláljon itt! →
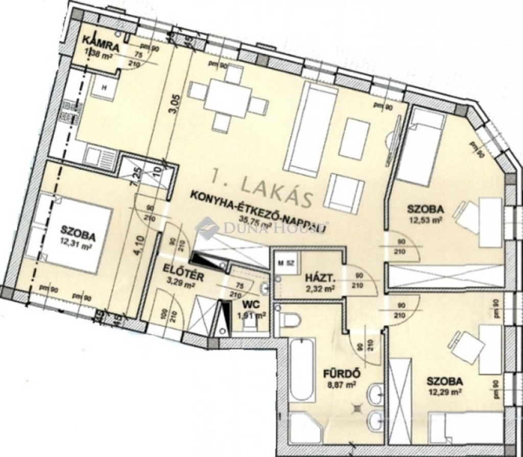
96.00 m2
ALAPTERÜLET
4
SZOBASZÁM
nincs megadva
ÉPÍTÉS
Egyéb fűtés
FŰTÉS
  • CSOK igénybe vehető nem
  • Tetőtér beépíthető nem
  • Építés éve 2018
  • Fűtés Egyéb fűtés
  • Klíma nem
  • Szigetelt nem
Energetikai besorolás: Nincs meghatározva
A+++
A++
A+
A
B
C
D
E
F
G
H
I

Az MBH Bank személyi kölcsön ajánlata

Fizetett hirdetés
1 millió Ft
6 évre
20 585 Ft/hó
THM: 14.5%
Részletek →
2 millió Ft
6 évre
41 169 Ft/hó
THM: 14.5%
Részletek →
3 millió Ft
6 évre
61 754 Ft/hó
THM: 14.5%
Részletek →

A tájékoztatás nem teljes körű és nem minősül ajánlattételnek.

Az ingatlan leírása

Eladó Kecskemét belvárosában 2018-ban épült újszerű Exclusive 9 lakásos szigetelt társasházban, 96nm-es nappali + 3 szobás lakás.

Teremgarázsi parkolóhely 8 M Ft és egy 4 nm saját tároló 2 M Ft-ért vásárolható a lakáshoz.

Jellemzői:
- 2018-as építésű társasház
- belső udvar
- mélygarázs
- magas minőségben, igényes kialakítású ingatlan
- A+ energetikai besorolású
- 96 négyzetméteres magasföldszinti lakás
- riasztó, tűzjelző,
- elektromos aluredőny
- internet (optikai)
- hőszivattyús hűtés-fűtés, padlófűtés
- légcserélő rendszer
- beépített bútorok
- beépített konyhabútor, konyhagépekkel (hűtő, főzőlap, mosogatógép, sütő, mikró)
- Exkluziv külső-belső megjelenésű épület.
- Rendkívül alacsony rezsiköltség!!!

Térkép

Ingatlan adásvétel ügyvédi díja
490 500 Ft
a hirdetésben szereplő ár alapján
  • A vételár 0,45%-a
  • Szerződéscsomag teljeskörű képviselettel
  • Ingyenes tulajdoni lap ellenőrzés
  • Az ÁFA-t már tartalmazza
Érdekel az ajánlat →
A tájékoztatás nem teljes körű és nem minősül ajánlattételnek. Minimum díj: 150 000 Ft, maximum díj: 600 000 Ft. A díj kizárólag lakóingatlan adásvételére vonatkozik.

A hirdető elérhetősége

Wiskó Kft.

Peteh László
+36 30 959