Eladó Lakás
Hirdetéskód: 9312155

Miskolc - OTP Ingatlanpont Iroda

Felújításhoz személyi kölcsönt keres? Kalkuláljon itt! →
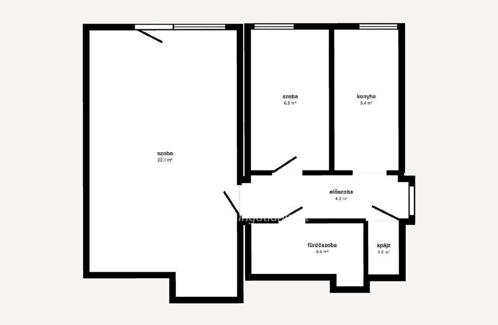
42.00 m2
ALAPTERÜLET
1
SZOBASZÁM
nincs megadva
ÉPÍTÉS
Távfűtés egyedi méréssel
FŰTÉS
  • CSOK igénybe vehető nem
  • Tetőtér beépíthető nem
  • Építés éve 1973
  • Fűtés Távfűtés egyedi méréssel
  • Klíma nem
  • Szigetelt nem
Energetikai besorolás: Nincs meghatározva
A+++
A++
A+
A
B
C
D
E
F
G
H
I

Az MBH Bank személyi kölcsön ajánlata

Fizetett hirdetés
1 millió Ft
6 évre
20 585 Ft/hó
THM: 14.5%
Részletek →
2 millió Ft
6 évre
41 169 Ft/hó
THM: 14.5%
Részletek →
3 millió Ft
6 évre
61 754 Ft/hó
THM: 14.5%
Részletek →

A tájékoztatás nem teljes körű és nem minősül ajánlattételnek.

Az ingatlan leírása

Kazincbarcika közkedvelt részén, központban, a Pollack Mihály úton eladó egy 42 nm-es, másfél szobás társasházi lakás. Modern műanyag nyílászárókkal és egyedi mérővel felszerelt távhős fűtéssel rendelkezik, így a rezsiköltségek alacsonyak és pontosan tervezhetőek. A belső terek tiszták, rendezettek és azonnal költözhető állapotban vannak, ugyanakkor az ingatlan kiváló alapot nyújt egy saját igény szerinti esztétikai felújításhoz is, amivel valódi álomotthonná vagy értékálló befektetéssé formálható. A környék infrastruktúrája párját ritkító, hiszen a közvetlen közelben megtalálható a Pollack Mihály Általános Iskola, a Barcika Fitness Centrum, a Spar szupermarket, valamint különböző szaküzletek és kényelmi szolgáltatások, mint a Foxpost és Packeta automaták, a parkolás pedig közvetlenül a ház előtt teljesen ingyenes és biztonságos. Ez a tehermentes ingatlan a város egyik legdinamikusabban fejlődő pontján helyezkedik el, ahol a közeli játszóterek, zöldfelületek és a kiváló tömegközlekedési kapcsolatok garantálják a kényelmet, ezért bátran ajánlom fiatal pároknak első lakásnak vagy befektetőknek a könnyű kiadhatóság miatt.
OTP Banki hátterünknek köszönhetően finanszírozási igényekben (pl. Otthon Start Hitelprogram , Babaváró, CSOK Plusz, Lakáshitel, Személyi kölcsön stb.), illetve biztosítások tekintetében is díjmentesen, soron kívüli ügyintézéssel segítjük ügyfeleinket. M324120

Térkép

Ingatlan adásvétel ügyvédi díja
150 000 Ft
a hirdetésben szereplő ár alapján
  • A vételár 0,45%-a
  • Szerződéscsomag teljeskörű képviselettel
  • Ingyenes tulajdoni lap ellenőrzés
  • Az ÁFA-t már tartalmazza
Érdekel az ajánlat →
A tájékoztatás nem teljes körű és nem minősül ajánlattételnek. Minimum díj: 150 000 Ft, maximum díj: 600 000 Ft. A díj kizárólag lakóingatlan adásvételére vonatkozik.

A hirdető elérhetősége

Miskolc - OTP Ingatlanpont Iroda

Czugh Péter
+36 70 393