Eladó Lakás
Hirdetéskód: 9323320

Zalaegerszeg Kossuth Lajos utca 32 - OTP Ingatlanpont Iroda

Felújításhoz személyi kölcsönt keres? Kalkuláljon itt! →
FIX 3% Program

Ez a hirdetés megfelelhet a FIX 3%-os programnak.
Tudj meg többet a részletekről itt.

49.00 m2
ALAPTERÜLET
1
SZOBASZÁM
nincs megadva
ÉPÍTÉS
Gáz (cirkó)
FŰTÉS
  • CSOK igénybe vehető nem
  • Tetőtér beépíthető nem
  • Építés éve 1997
  • Fűtés Gáz (cirkó)
  • Klíma nem
  • Szigetelt nem
Energetikai besorolás: Nincs meghatározva
A+++
A++
A+
A
B
C
D
E
F
G
H
I

Az MBH Bank személyi kölcsön ajánlata

Fizetett hirdetés
1 millió Ft
6 évre
20 585 Ft/hó
THM: 14.5%
Részletek →
2 millió Ft
6 évre
41 169 Ft/hó
THM: 14.5%
Részletek →
3 millió Ft
6 évre
61 754 Ft/hó
THM: 14.5%
Részletek →

A tájékoztatás nem teljes körű és nem minősül ajánlattételnek.

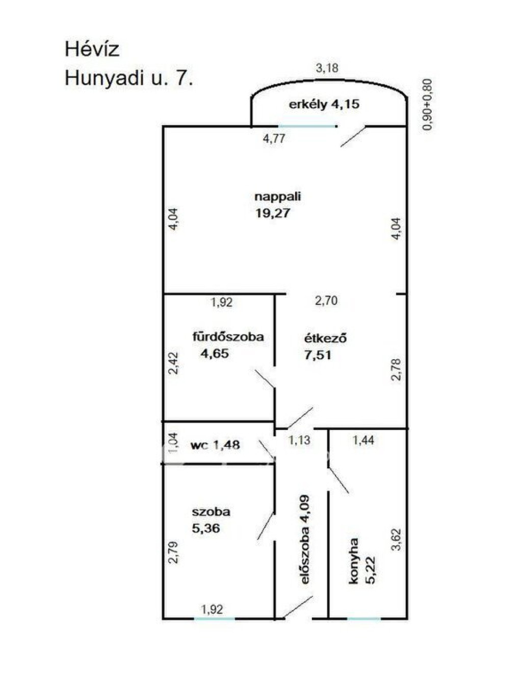
Az ingatlan leírása

Hévízen, kiváló lokációval eladó erkélyes lakás

A világhírű hévízi tófürdő városában kínálunk megvételre egy 49 m2-es, 2. emeleti, erkélyes lakást, amely kivételes lehetőséget rejt azok számára, akik értéket teremtenének. Ez az ingatlan egy olyan alap, amely megfelelő vízióval és felújítással modern, piacképes és jól hasznosítható lakássá alakítható akár saját célra, akár befektetésként.

A lakás elosztása ideális:
nappali + félszoba, konyha, külön fürdőszoba WC -vel, valamint egy külön mellékhelyiség, ami a mindennapi komfort szempontjából kifejezetten előnyös és ritka a piacon.

Hévíz adottságainak köszönhetően az ingatlan felújítást követően nemcsak otthonként, hanem értéknövelő befektetésként is megállja a helyét.

Az ilyen adottságokkal rendelkező, jól alakítható, erkélyes lakások Hévízen ritkán kerülnek piacra, különösen ebben a kategóriában. Ha látja benne a lehetőséget, érdemes időben lépni.

Térkép

Ingatlan adásvétel ügyvédi díja
244 305 Ft
a hirdetésben szereplő ár alapján
  • A vételár 0,45%-a
  • Szerződéscsomag teljeskörű képviselettel
  • Ingyenes tulajdoni lap ellenőrzés
  • Az ÁFA-t már tartalmazza
Érdekel az ajánlat →
A tájékoztatás nem teljes körű és nem minősül ajánlattételnek. Minimum díj: 150 000 Ft, maximum díj: 600 000 Ft. A díj kizárólag lakóingatlan adásvételére vonatkozik.

A hirdető elérhetősége

Zalaegerszeg Kossuth Lajos utca 32 - OTP Ingatlanpont Iroda

Márkus Tünde Mária
+36 70 229