Eladó Lakás
Hirdetéskód: 9257249
Eger Kertész utca 25 - OTP Ingatlanpont Iroda
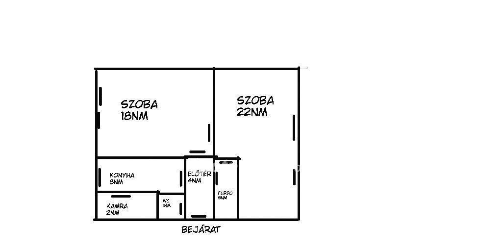
59.00 m2
ALAPTERÜLET2
SZOBASZÁMnincs megadva
ÉPÍTÉSnincs megadva
FŰTÉS- CSOK igénybe vehető nem
- Tetőtér beépíthető nem
- Építés éve 1970
- Klíma nem
- Szigetelt nem
A+++
A++
A+
A
B
C
D
E
F
G
H
I
Az ingatlan leírása
Eladó Lakás Hatvanban!
Heves megye, Hatvan városának kellemes, zárt, zöldövezeti részén kínálunk megvételre egy 59 m2-es, 2 szobás, erkélyes lakást, mely a város központjához közel helyezkedik el. A társasház zárt lépcsőházából nyíló lakáshoz saját tároló és garázs is tartozik, így kényelmes és biztonságos otthont biztosít új tulajdonosának. Amennyiben felkeltette érdeklődését ez az ingatlan, kérjük, vegye fel velünk a kapcsolatot további információért és megtekintésért. Teljes körű ügyintézéssel állunk az eladók és a vevők rendelkezésére! A kínálatunkból választott ingatlan finanszírozásához minősített fogyasztóbarát, piaci és kedvezményes hitel- és lízingkonstrukciókat kínálunk (lakásvásárlási hitel, szabad felhasználású hitel, babaváró hitel, 3% hitel, CSOK Plusz intézés, Otthonfelújítási Támogatás, egyéb felújítási hitelek). Az adásvételi szerződés megkötéséhez igény szerint megbízható ügyvédi közreműködést biztosítunk, és segítséget nyújtunk az adásvételhez kapcsolódó egyéb ügyek intézéséhez. Amennyiben felkeltettem érdeklődését, hívjon bizalommal!
irányár: 41900000 Ft
Heves megye, Hatvan városának kellemes, zárt, zöldövezeti részén kínálunk megvételre egy 59 m2-es, 2 szobás, erkélyes lakást, mely a város központjához közel helyezkedik el. A társasház zárt lépcsőházából nyíló lakáshoz saját tároló és garázs is tartozik, így kényelmes és biztonságos otthont biztosít új tulajdonosának. Amennyiben felkeltette érdeklődését ez az ingatlan, kérjük, vegye fel velünk a kapcsolatot további információért és megtekintésért. Teljes körű ügyintézéssel állunk az eladók és a vevők rendelkezésére! A kínálatunkból választott ingatlan finanszírozásához minősített fogyasztóbarát, piaci és kedvezményes hitel- és lízingkonstrukciókat kínálunk (lakásvásárlási hitel, szabad felhasználású hitel, babaváró hitel, 3% hitel, CSOK Plusz intézés, Otthonfelújítási Támogatás, egyéb felújítási hitelek). Az adásvételi szerződés megkötéséhez igény szerint megbízható ügyvédi közreműködést biztosítunk, és segítséget nyújtunk az adásvételhez kapcsolódó egyéb ügyek intézéséhez. Amennyiben felkeltettem érdeklődését, hívjon bizalommal!
irányár: 41900000 Ft