Eladó Lakás
Hirdetéskód: 9148193
Fővállalkozó Balla és Balla Kft
57 m2
ALAPTERÜLET1
SZOBASZÁMnincs megadva
ÉPÍTÉSnincs megadva
FŰTÉS- CSOK igénybe vehető nem
- Tetőtér beépíthető nem
- Klíma nem
- Szigetelt nem
A+++
A++
A+
A
B
C
D
E
F
G
H
I
Az ingatlan leírása
Hatvan szívében – Teljes körűen felújított, modern földszinti lakás eladó!
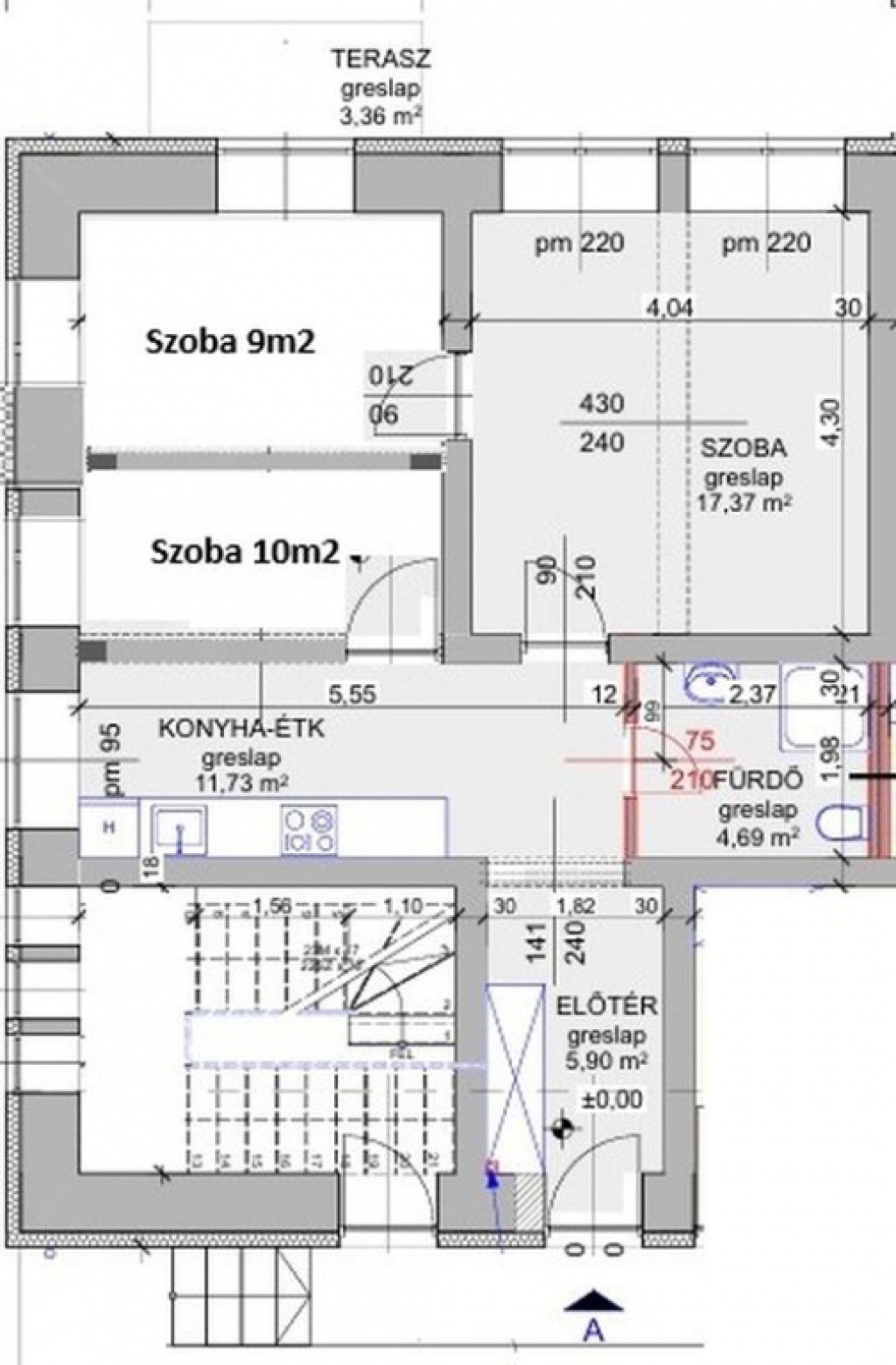
Hatvan központjában, a Kossuth tértől mindössze 500 méterre kínálunk eladásra egy 56,7 m²-es, földszinti, önálló bejáratú téglalakást egy 10 lakásos, hőszigetelt társasházban. A 3800 m²-es telek része a 1600 m²-es közös, parkosított zöldfelület, ami kellemes, nyugodt környezetet biztosít a mindennapokra.
A társasház és a lakások teljes körű felújítása szeptemberben kezdődik, amely során fiatalos, modern stílus és kiváló minőségű anyaghasználat kerül előtérbe. Az ingatlan praktikus helyiségkapcsolatokkal, klimatizált nappalival, kondenzációs gázkazánnal és egyéni parkolóhellyel várja új tulajdonosát (a parkoló az ár részét képezi).
Főbb jellemzők:
• 56,7 m², földszinti, önálló bejárattal
• Téglafalazat, hőszigetelt
• Modern, mindenre kiterjedő, teljes körű felújítás
• Kiváló elrendezés
• Klímás nappali
• Kondenzációs gázkazán (fűtés + meleg víz)
• Parkoló az árban
• 1600 m² közös zöldfelület
Lokáció előnyei:
Minden fontos közszolgáltatás, bevásárlási lehetőség, a Zagyva kerékpárút, kondipark és futópálya 500 méteren belül elérhető. A város központjának nyüzsgése és a zöldövezeti nyugalom egyaránt adott.
Ha szeretne egy modern, kulcsrakész lakást Hatvan egyik legjobb helyén, ne maradjon le erről a lehetőségről!
3%-os hitel igénybe vehető.
Irodánk teljeskörű hitel, jogi, ingatlanközvetítési szolgáltatással és tapasztalattal áll ügyfeleink rendelkezésére.
Hívj most, mielőtt elfogy!”
HL7-1488
Mottónk: "Harmonikus kombinációk ingatlan- és pénzügyi kérdésekben."
Irodánk, mely Hatvan főterén, a Kossuth tér 14. szám alatt található, 1998. óta működik Hatvanban és vonzáskörzetében.
Irodánk 8 és 16 óra között tart nyitva, de előre egyeztetett időpontban és a terület specialitását figyelembe véve szükség esetén ezen kívül is ügyfeleink rendelkezésére állunk.
Hatvan központjában, a Kossuth tértől mindössze 500 méterre kínálunk eladásra egy 56,7 m²-es, földszinti, önálló bejáratú téglalakást egy 10 lakásos, hőszigetelt társasházban. A 3800 m²-es telek része a 1600 m²-es közös, parkosított zöldfelület, ami kellemes, nyugodt környezetet biztosít a mindennapokra.
A társasház és a lakások teljes körű felújítása szeptemberben kezdődik, amely során fiatalos, modern stílus és kiváló minőségű anyaghasználat kerül előtérbe. Az ingatlan praktikus helyiségkapcsolatokkal, klimatizált nappalival, kondenzációs gázkazánnal és egyéni parkolóhellyel várja új tulajdonosát (a parkoló az ár részét képezi).
Főbb jellemzők:
• 56,7 m², földszinti, önálló bejárattal
• Téglafalazat, hőszigetelt
• Modern, mindenre kiterjedő, teljes körű felújítás
• Kiváló elrendezés
• Klímás nappali
• Kondenzációs gázkazán (fűtés + meleg víz)
• Parkoló az árban
• 1600 m² közös zöldfelület
Lokáció előnyei:
Minden fontos közszolgáltatás, bevásárlási lehetőség, a Zagyva kerékpárút, kondipark és futópálya 500 méteren belül elérhető. A város központjának nyüzsgése és a zöldövezeti nyugalom egyaránt adott.
Ha szeretne egy modern, kulcsrakész lakást Hatvan egyik legjobb helyén, ne maradjon le erről a lehetőségről!
3%-os hitel igénybe vehető.
Irodánk teljeskörű hitel, jogi, ingatlanközvetítési szolgáltatással és tapasztalattal áll ügyfeleink rendelkezésére.
Hívj most, mielőtt elfogy!”
HL7-1488
Mottónk: "Harmonikus kombinációk ingatlan- és pénzügyi kérdésekben."
Irodánk, mely Hatvan főterén, a Kossuth tér 14. szám alatt található, 1998. óta működik Hatvanban és vonzáskörzetében.
Irodánk 8 és 16 óra között tart nyitva, de előre egyeztetett időpontban és a terület specialitását figyelembe véve szükség esetén ezen kívül is ügyfeleink rendelkezésére állunk.