Eladó Lakás
Hirdetéskód: 9231880
Pécs Rákóczi út 19 - OTP Ingatlanpont Iroda
26 m2
ALAPTERÜLET1
SZOBASZÁMnincs megadva
ÉPÍTÉSElektromos
FŰTÉS- CSOK igénybe vehető nem
- Tetőtér beépíthető nem
- Építés éve 1970
- Fűtés Elektromos
- Klíma nem
- Szigetelt nem
A+++
A++
A+
A
B
C
D
E
F
G
H
I
Az ingatlan leírása
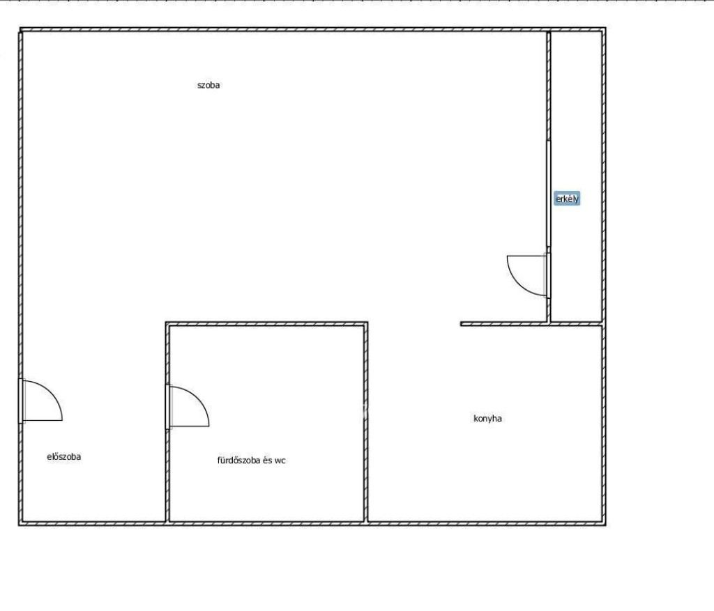
Eladó Harkányban egy tágas erkélyes, 3. emeleti, 1 szobás, 26 m?-es felújított apartman ? ideális választás akár nyaralásra, akár állandó lakhatásra, vagy befektetés céljára. Az ingatlan világos, barátságos elosztású: a szoba, konyha, fürdő-WC mellett egy kényelmes, tágas erkély is tartozik hozzá, ahol egy kis reggeli kávé vagy esti pihenés is igazi élmény lehet. A lakás új, modern műanyag nyílászárókkal és redőnyökkel felszerelt, a kényelmet pedig a korszerű hűtő-fűtő klíma biztosítja ? a meleg vizet villanybojler adja, ami alacsony fenntartást tesz lehetővé.
A társasház egy zárt, biztonságos udvarban helyezkedik el, ahol a lakóknak parkoló is jár ? így az autósok számára sem kell a parkolás miatt aggódni. A környék rendezett és csendes, mégis minden fontos szolgáltatás, bolt, közlekedés és a helyi gyógyfürdő egy-két perc sétára található: ideális elhelyezkedés mindennapi használatra, hétvégi kikapcsolódásra vagy üzleti céllal történő kiadásra is.
Ez az apartman remek lehetőséget kínál azoknak, akik egy könnyen fenntartható, nyugodt, mégis praktikus elhelyezkedésű ingatlant keresnek ? legyen az saját nyaraló, állandó otthon vagy befektetési cél. (M318376)
21900000 Ft
A társasház egy zárt, biztonságos udvarban helyezkedik el, ahol a lakóknak parkoló is jár ? így az autósok számára sem kell a parkolás miatt aggódni. A környék rendezett és csendes, mégis minden fontos szolgáltatás, bolt, közlekedés és a helyi gyógyfürdő egy-két perc sétára található: ideális elhelyezkedés mindennapi használatra, hétvégi kikapcsolódásra vagy üzleti céllal történő kiadásra is.
Ez az apartman remek lehetőséget kínál azoknak, akik egy könnyen fenntartható, nyugodt, mégis praktikus elhelyezkedésű ingatlant keresnek ? legyen az saját nyaraló, állandó otthon vagy befektetési cél. (M318376)
21900000 Ft