Eladó Lakás
Hirdetéskód: 9196455

Balogh Attila

Felújításhoz személyi kölcsönt keres? Kalkuláljon itt! →
FIX 3% Program

Ez a hirdetés megfelelhet a FIX 3%-os programnak.
Tudj meg többet a részletekről itt.

52.00 m2
ALAPTERÜLET
2
SZOBASZÁM
Tégla
ÉPÍTÉS
Házközponti
FŰTÉS
  • CSOK igénybe vehető igen
  • Belső szintek 1
  • Kilátás Kertre néző
  • Tájolás Nyugat
  • Ingatlan komfort Összkomfortos
  • Parkolási lehetőség Utcán, közterületen
  • Építés éve 2024
  • Fűtés Házközponti
  • Építőanyag Tégla
  • Erkély, terasz Terasz 14.00m2
  • Kertkapcsolat igen 20.00m2
  • Klíma nem
  • Szigetelt igen
  • Bútorozott nem
  • Akadálymentesített igen

Energetikai besorolás: A+

A+++
A++
A+
A
B
C
D
E
F
G
H
I

Az MBH Bank személyi kölcsön ajánlata

Fizetett hirdetés
1 millió Ft
6 évre
20 585 Ft/hó
THM: 14.5%
Részletek →
2 millió Ft
6 évre
41 169 Ft/hó
THM: 14.5%
Részletek →
3 millió Ft
6 évre
61 754 Ft/hó
THM: 14.5%
Részletek →

A tájékoztatás nem teljes körű és nem minősül ajánlattételnek.

Az ingatlan leírása

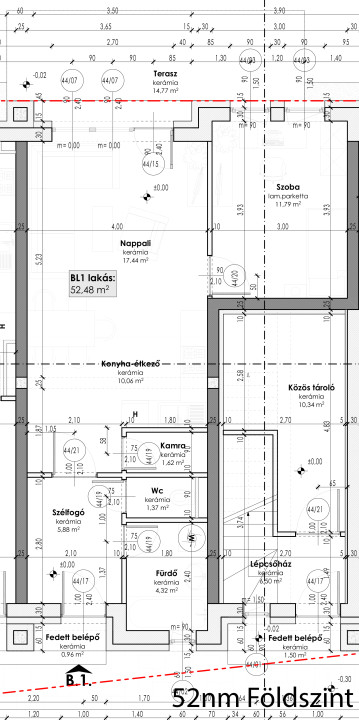
Megvásárlásra kinálunk Önnek Hajdúböszörmény abszolút belvárosában új épitésű, azonnali átadással korszerű, 52nm  alapterületű  földszinti lakást! Az ingatlak irányárral eladó, melyben a magas műszaki tartalom és a kifinomult energiatakarékos megoldások garantálják a rendkívül alacsony fenntartási költségeket. A lakás prémium 3 rétegű, 6 légkamrás műanyag nyílászárókkal, valamint egy modern hőszivattyús rendszerrel vannak felszerelve, amely egyszerre biztosítja a fűtést, a hűtést, a mennyezeti hűtést és a kellemes padlófűtést. A földszinti  lakáshoz terasz tartozik. A lakópark  családbarát környezetet biztosit, füvesített, parkosított zöldterületekkel, valamint egy saját játszótér várja a lakókat. További lehetőségként vásárolható a lakáshoz  felszíni beálló vagy garázs.


Ár: Irányár
(Az ingatlan pontos áráért kérjen ajánlatot!)


Alapadatok:




  • Helyszín: Hajdúböszörmény, Belváros




  • Alapterület: 52m² 




  • Állapot: korszerű, magas műszaki tartalmú, családbarát




  • Ingatlan típusa: társasházi lakás




 


Jellemzők és felszereltség:




  • Energiatakarékosság: magas szintű, korszerű megoldások – alacsony fenntartási költségek




  • Nyílászárók: 3 rétegű, 6 légkamrás, prémium minőségű műanyag ablakok




  • Fűtés és hűtés: hőszivattyús rendszer – fűtés, hűtés, mennyezeti hűtés és padlófűtés együtt




  • Burkolatok és szaniterek: prémium minőségű, választható kivitelezéssel




  • Biztonsági rendszer: riasztórendszerrel és bejárati kamerával felszerelt




  • Terasz, Erkély




  • Környezet: füvesített, parkosított zöldterület, családbarát lakópark




  • Játszótér: a kisgyermekes családok számára kialakított saját játszótér




Egyéb lehetőségek:




  • Tároló: 4,03 m²-es tároló vásárolható – ára: 2.100.000 Ft




  • Parkolás: felszíni beálló vagy garázs vásárlására is van lehetőség




Személyes megtekintéssel meggyőződhet arról, hogy ez a lakás valóban egyedülálló lehetőség – keressen bizalommal részletekért!

Térkép

A hirdető elérhetősége

Teleingatlanportál

Balogh Attila
+36 30 953