Eladó Lakás
Hirdetéskód: 9295998

Győr Bajcsy-Zsilinszky út 27 - OTP Ingatlanpont Iroda

Felújításhoz személyi kölcsönt keres? Kalkuláljon itt! →
83.00 m2
ALAPTERÜLET
3
SZOBASZÁM
nincs megadva
ÉPÍTÉS
nincs megadva
FŰTÉS
  • CSOK igénybe vehető nem
  • Tetőtér beépíthető nem
  • Építés éve 2015
  • Klíma nem
  • Szigetelt nem
Energetikai besorolás: Nincs meghatározva
A+++
A++
A+
A
B
C
D
E
F
G
H
I

Az MBH Bank személyi kölcsön ajánlata

Fizetett hirdetés
1 millió Ft
6 évre
20 585 Ft/hó
THM: 14.5%
Részletek →
2 millió Ft
6 évre
41 169 Ft/hó
THM: 14.5%
Részletek →
3 millió Ft
6 évre
61 754 Ft/hó
THM: 14.5%
Részletek →

A tájékoztatás nem teljes körű és nem minősül ajánlattételnek.

Az ingatlan leírása

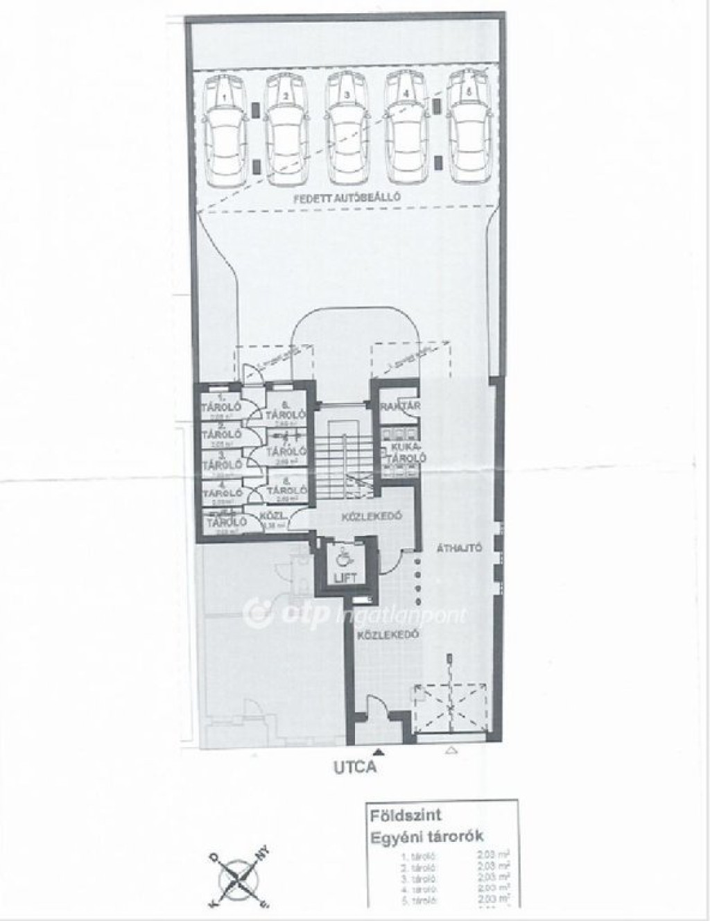
Eladásra kínálok egy 83 m2-es, 3 szobás, 2. emeleti erkélyes, modern belvárosi tégla lakást, a Tarcsay Vilmos utcában amely a tágas, világos tereket és a kényelmes városi életet ötvözi. A lakás egy rendezett, modern társasházban található, kiváló infrastruktúrával, minden fontos szolgáltatás könnyen elérhető. Különlegessége, hogy soha nem lakták, így új tulajdonosa teljesen új állapotban veheti birtokba. Külön előnye a két erkély, összesen 7 m2 területtel, amelyek ideálisak pihenésre vagy reggeli kávézáshoz. A lakáshoz tartozik saját kocsibeálló és külön tároló, ami a belvárosban különösen nagy értéket képvisel.
A fedett parkoló és a földszinti tároló ára 5.000.000. Ft, amely kötelezően megvásárolandó a lakással.
Ha egy modern, értékálló belvárosi otthont keres, amely azonnal költözhető és minden adott a kényelmes élethez, ezt az ingatlant mindenképpen érdemes megnéznie.
Ideális választás saját otthonnak vagy befektetésnek is!

További információért és megtekintésért keressen bizalommal!


Referenciaszám: M324307

Térkép

A hirdető elérhetősége

Győr Bajcsy-Zsilinszky út 27 - OTP Ingatlanpont Iroda

Vörös Brigitta
+36 30 650