Eladó Lakás
Hirdetéskód: 9313494

Győr Bajcsy-Zsilinszky út 27 - OTP Ingatlanpont Iroda

Felújításhoz személyi kölcsönt keres? Kalkuláljon itt! →
FIX 3% Program

Ez a hirdetés megfelelhet a FIX 3%-os programnak.
Tudj meg többet a részletekről itt.

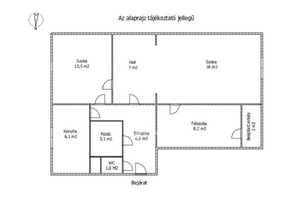
63.00 m2
ALAPTERÜLET
2
SZOBASZÁM
nincs megadva
ÉPÍTÉS
Távfűtés egyedi méréssel
FŰTÉS
  • CSOK igénybe vehető nem
  • Tetőtér beépíthető nem
  • Építés éve 1980
  • Fűtés Távfűtés egyedi méréssel
  • Klíma nem
  • Szigetelt nem
Energetikai besorolás: Nincs meghatározva
A+++
A++
A+
A
B
C
D
E
F
G
H
I

Az MBH Bank személyi kölcsön ajánlata

Fizetett hirdetés
1 millió Ft
6 évre
20 585 Ft/hó
THM: 14.5%
Részletek →
2 millió Ft
6 évre
41 169 Ft/hó
THM: 14.5%
Részletek →
3 millió Ft
6 évre
61 754 Ft/hó
THM: 14.5%
Részletek →

A tájékoztatás nem teljes körű és nem minősül ajánlattételnek.

Az ingatlan leírása

Eladásra kínálok Győrben, a Szigethy Attila úton egy 63 nm-es, 2+1 félszobás, hallos, beépített erkélyes lakást, amely egy 10 emeletes, távfűtött épület első emeletén található. A lakás rendkívül csendes, az egyik szoba és a konyha nyugodt, parkos hátsó részre néz. Az épület 2014-ben teljes energetikai korszerűsítésen esett át, amely magában foglalta a külső szigetelést és a nyílászárók cseréjét. Az erkély a kisszobával akár egybenyitható, így tovább növelhető a térérzet. 2022-ben megtörtént a lakásokat ellátó függőleges közművezetékek (hideg- és melegvíz, csatorna) cseréje is, a lakás egyedi vízmérőkkel rendelkezik.

A környék infrastruktúrája kiváló: a közelben boltok, iskola, óvoda, orvosi rendelő és gyógyszertár is megtalálható, a parkolás pedig közterületen ingyenes. A lakás jó elhelyezkedésének és adottságainak köszönhetően ideális választás otthonnak vagy befektetésnek is.

Az ingatlan megfelel az Otthon Start Hitelprogram feltételeinek.

További információért és megtekintésért keressen bizalommal!

Referenciaszám: M326066

Térkép

Ingatlan adásvétel ügyvédi díja
278 550 Ft
a hirdetésben szereplő ár alapján
  • A vételár 0,45%-a
  • Szerződéscsomag teljeskörű képviselettel
  • Ingyenes tulajdoni lap ellenőrzés
  • Az ÁFA-t már tartalmazza
Érdekel az ajánlat →
A tájékoztatás nem teljes körű és nem minősül ajánlattételnek. Minimum díj: 150 000 Ft, maximum díj: 600 000 Ft. A díj kizárólag lakóingatlan adásvételére vonatkozik.

A hirdető elérhetősége

Győr Bajcsy-Zsilinszky út 27 - OTP Ingatlanpont Iroda

Vörös Brigitta
+36 30 650