Eladó Lakás
Hirdetéskód: 9327564
Dr. Fekete Ingatlan Iroda Csoport - Ügyvédházak Győr
Felújításhoz személyi kölcsönt keres? Kalkuláljon itt! →
Ez a hirdetés megfelelhet a FIX 3%-os programnak.
Tudj meg többet a részletekről itt.
50.00 m2
ALAPTERÜLET2
SZOBASZÁMnincs megadva
ÉPÍTÉSnincs megadva
FŰTÉS- Belső szintek 5
- Tájolás Északnyugat
- Ingatlan komfort Összkomfortos
- Építés éve 2026
A+++
A++
A+
A
B
C
D
E
F
G
H
I
Az ingatlan leírása
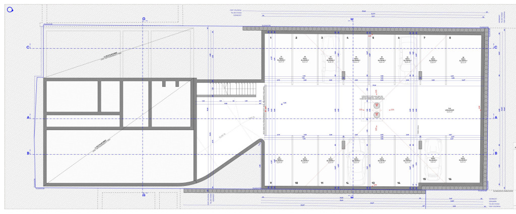
Győr egyik legkeresettebb városrészében, Nádorváros dinamikusan fejlődő környezetében kínálunk megvételre egy új építésű, 15 lakásos társasház egyik kiváló adottságú lakását.
A lakások 30 %-a már elkelt. NE MARADJ LE!
Fűtéskész hirdetési ár, igény esetén kulcsrakész kivitelezéssel, egyedi ajánlat szerint.
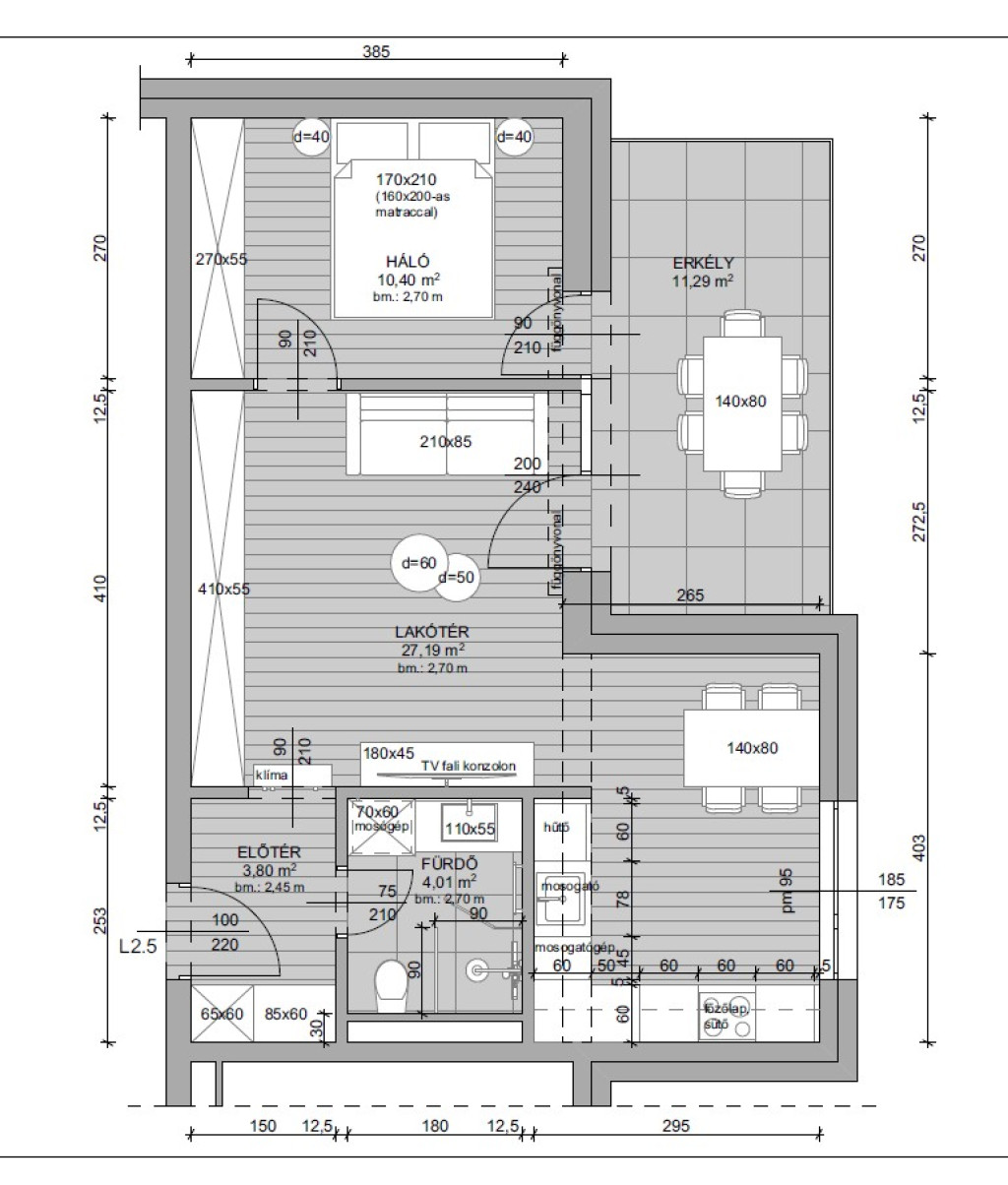
A 2. emeleten elhelyezkedő 45,4 nm-es lakótér, + 10,23 nm-es erkélyes, lakás tökéletes választás:
– első lakásnak,
– kiadásra (albérlet / rövid táv),
– vagy értékálló befektetésként.
Világos, élhető tér – alacsony rezsivel
A DK-i fekvésnek köszönhetően a lakás egész nap világos, míg az A / A+ energetikai besorolás garantálja az alacsony fenntartási költségeket – ami ma már nem extra, hanem elvárás.
2026.05.30-ig: - 2 M Ft kedvezmény a garázs árából, minden lakás mellé!
Műszaki tartalom – ami hosszú távon számít
✔ 3 rétegű hőszigetelt műanyag nyílászárók
✔ Redőny előkészítés
✔ 20–30 cm vasbeton teherhordó szerkezet
✔ 20 cm kőzetgyapot homlokzati hőszigetelés
✔ Intenzív zöldtető rendszer
✔ Közösségi tetőterasz
Gépészet:
✔ Központi gázkazán (2 db)
✔ Padlófűtés – modern komfort
✔ Elektromos törölközőszárító - kiállás
✔ Klíma előkészítés - opcionális, külön fizetendő
Extra lehetőségek (limitált darabszám!)
– Mélygarázs beálló: 8,5 M Ft / db (16 db)
– Tároló (2–2,59 nm): 1,75 M Ft / db (6 db)
Átadás: Fűtéskész állapotban, tervezetten 2027-ben
Miért most érdemes lépned?
– Új építés → nincs felújítási kockázat
– Nádorváros → stabil, könnyen kiadható lokáció
– Kis méret → magas hozam, gyors bérbeadás
– Korai foglalás → jobb ár és választék
Ne csak gondolkodj rajta – foglald le most, és biztosítsd a helyed Győr egyik legígéretesebb projektjében!
A képek és látványtervek az értékesítést szolgálják, illusztrációk.
A lakások 30 %-a már elkelt. NE MARADJ LE!
Fűtéskész hirdetési ár, igény esetén kulcsrakész kivitelezéssel, egyedi ajánlat szerint.
A 2. emeleten elhelyezkedő 45,4 nm-es lakótér, + 10,23 nm-es erkélyes, lakás tökéletes választás:
– első lakásnak,
– kiadásra (albérlet / rövid táv),
– vagy értékálló befektetésként.
Világos, élhető tér – alacsony rezsivel
A DK-i fekvésnek köszönhetően a lakás egész nap világos, míg az A / A+ energetikai besorolás garantálja az alacsony fenntartási költségeket – ami ma már nem extra, hanem elvárás.
2026.05.30-ig: - 2 M Ft kedvezmény a garázs árából, minden lakás mellé!
Műszaki tartalom – ami hosszú távon számít
✔ 3 rétegű hőszigetelt műanyag nyílászárók
✔ Redőny előkészítés
✔ 20–30 cm vasbeton teherhordó szerkezet
✔ 20 cm kőzetgyapot homlokzati hőszigetelés
✔ Intenzív zöldtető rendszer
✔ Közösségi tetőterasz
Gépészet:
✔ Központi gázkazán (2 db)
✔ Padlófűtés – modern komfort
✔ Elektromos törölközőszárító - kiállás
✔ Klíma előkészítés - opcionális, külön fizetendő
Extra lehetőségek (limitált darabszám!)
– Mélygarázs beálló: 8,5 M Ft / db (16 db)
– Tároló (2–2,59 nm): 1,75 M Ft / db (6 db)
Átadás: Fűtéskész állapotban, tervezetten 2027-ben
Miért most érdemes lépned?
– Új építés → nincs felújítási kockázat
– Nádorváros → stabil, könnyen kiadható lokáció
– Kis méret → magas hozam, gyors bérbeadás
– Korai foglalás → jobb ár és választék
Ne csak gondolkodj rajta – foglald le most, és biztosítsd a helyed Győr egyik legígéretesebb projektjében!
A képek és látványtervek az értékesítést szolgálják, illusztrációk.