Eladó Lakás
Hirdetéskód: 9285579
Otthon Centrum - Győr - Batthyány tér
Felújításhoz személyi kölcsönt keres? Kalkuláljon itt! →
Ez a hirdetés megfelelhet a FIX 3%-os programnak.
Tudj meg többet a részletekről itt.
60.00 m2
ALAPTERÜLET4
SZOBASZÁMnincs megadva
ÉPÍTÉSGáz (cirkó)
FŰTÉS- CSOK igénybe vehető nem
- Tetőtér beépíthető nem
- Építés éve 1950
- Fűtés Gáz (cirkó)
- Klíma nem
- Szigetelt nem
A+++
A++
A+
A
B
C
D
E
F
G
H
I
Az ingatlan leírása
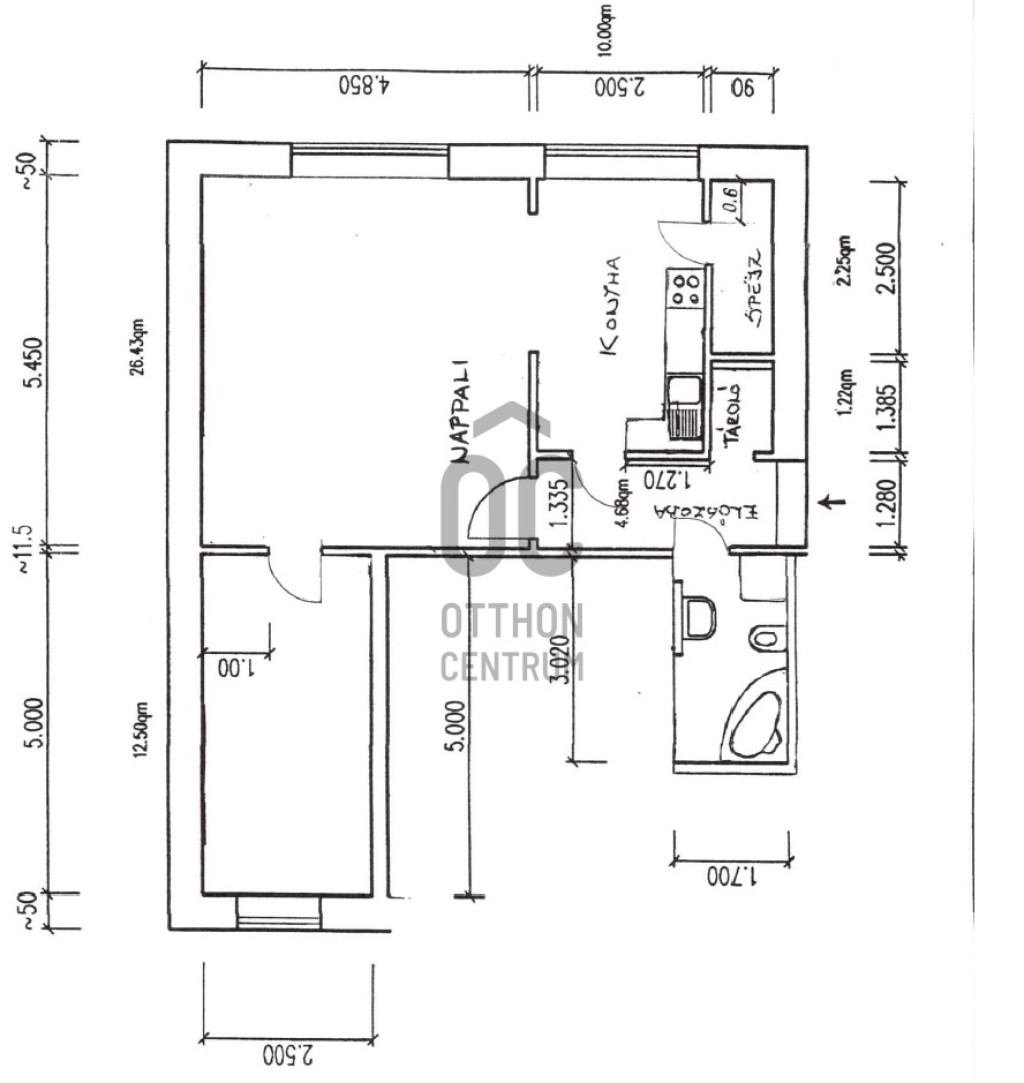
Győrben Sziget -Belváros határán , egyik legkedveltebb részén kínálunk eladásra egy jó állapotú, földszinti, dupla galériás lakást, amely egyedi kialakításának köszönhetően rendkívül praktikus és élhető.
A galériák beépítésével az ingatlan bruttó 76 m² lakóteret biztosít tulajdonosának. Az elrendezés átgondolt és funkcionális:
•tágas konyha–étkező
•fürdőszoba sarokkáddal, zuhanyzóval és WC-vel
•háztartási helyiség
•kamra
•külön kialakított, rejtett belső padlástér, amely kiváló pakolási lehetőséget nyújt
Az ingatlanhoz önálló pince tartozik, valamint a nagy méretű, közös belső udvar nyugodt kikapcsolódást biztosít a lakók számára.
A fűtést gázcirkó biztosítja. A 60 cm vastag falaknak köszönhetően a lakás télen–nyáron kellemes hőmérsékletű. A felújítás során a víz- és villamos hálózat teljes cseréje megtörtént, a belső terek pedig praktikusan, észszerűen kerültek átalakításra.
A járólapos helyiségekben padlófűtés, míg a parkettás szobákban radiátorok gondoskodnak a komfortos hőérzetről.
Központi elhelyezkedése kiváló: egyetem, fürdő, sétány, vízpart és minden fontos szolgáltatás néhány percen belül elérhető.
Egyedi adottságú belvárosi otthon vagy kiváló befektetés – ritka lehetőség Győr szívében.
További kérdések vagy megtekintés esetén keressen bizalommal.
Hitelre van szüksége?
Az Otthon Centrum, az ország egyik legnagyobb és legmegbízhatóbb hitelközvetítője, teljes körű és díjmentes hitelügyintézéssel, valamint biztosításkötéssel segíti ügyfeleit.
Kérje kollégáinktól személyre szabott ajánlatát, és találja meg a legjobb megoldást gyorsan és egyszerűen!
A galériák beépítésével az ingatlan bruttó 76 m² lakóteret biztosít tulajdonosának. Az elrendezés átgondolt és funkcionális:
•tágas konyha–étkező
•fürdőszoba sarokkáddal, zuhanyzóval és WC-vel
•háztartási helyiség
•kamra
•külön kialakított, rejtett belső padlástér, amely kiváló pakolási lehetőséget nyújt
Az ingatlanhoz önálló pince tartozik, valamint a nagy méretű, közös belső udvar nyugodt kikapcsolódást biztosít a lakók számára.
A fűtést gázcirkó biztosítja. A 60 cm vastag falaknak köszönhetően a lakás télen–nyáron kellemes hőmérsékletű. A felújítás során a víz- és villamos hálózat teljes cseréje megtörtént, a belső terek pedig praktikusan, észszerűen kerültek átalakításra.
A járólapos helyiségekben padlófűtés, míg a parkettás szobákban radiátorok gondoskodnak a komfortos hőérzetről.
Központi elhelyezkedése kiváló: egyetem, fürdő, sétány, vízpart és minden fontos szolgáltatás néhány percen belül elérhető.
Egyedi adottságú belvárosi otthon vagy kiváló befektetés – ritka lehetőség Győr szívében.
További kérdések vagy megtekintés esetén keressen bizalommal.
Hitelre van szüksége?
Az Otthon Centrum, az ország egyik legnagyobb és legmegbízhatóbb hitelközvetítője, teljes körű és díjmentes hitelügyintézéssel, valamint biztosításkötéssel segíti ügyfeleit.
Kérje kollégáinktól személyre szabott ajánlatát, és találja meg a legjobb megoldást gyorsan és egyszerűen!