Eladó Lakás
Hirdetéskód: 9261372
Kompakt Ingatlan Kft
Felújításhoz személyi kölcsönt keres? Kalkuláljon itt! →
Ez a hirdetés megfelelhet a FIX 3%-os programnak.
Tudj meg többet a részletekről itt.
44.00 m2
ALAPTERÜLET2
SZOBASZÁMTégla
ÉPÍTÉSHázközponti fűtés egyedi méréssel
FŰTÉS- CSOK igénybe vehető igen
- Belső szintek 3
- Tetőtér beépíthető nem
- Ingatlan komfort Összkomfortos
- Építés éve 2026
- Fűtés Házközponti fűtés egyedi méréssel
- Építőanyag Tégla
- Erkély, terasz Erkély
- Klíma nem
- Szigetelt nem
A+++
A++
A+
A
B
C
D
E
F
G
H
I
Az ingatlan leírása
Győr-Szabadhegy kertvárosi, átmenőforgalomtól mentes részén, kiváló infrastruktúrával és könnyű megközelíthetőséggel kínálunk eladásra újépítésű lakásokat. Az ingatlan egy földszint +2 emeletből álló, összesen 28 lakásos társasház. Az ingatlan korszerű energetikai, egyedi építészeti megoldásokkal, prémium minőségben épül.
A modern társasház kényelmes életkörnyezetet biztosít leendő lakói számára. 40-86 m2 alapterületű, napfényes, praktikus elrendezésű lakások kerültek kialakításra, így mindenki megtalálhatja az elképzeléseinek és igényeinek megfelelő otthont.
A társasházban nappali + 1 szobás, nappali + 2 szobás és nappali + 3 szobás lakások kerülnek kialakításra. A földszinti lakások kertkapcsolattal és terasszal, az emeleti lakások erkéllyel, galériával és tetőterasszal, a penthouse lakások tetőterasszal rendelkeznek.
Az ingatlan fűtését központi gázkazán biztosítja, padlófűtéssel, egyedi hőmennyiségmérővel.
Az építkezés folyamatban van, várhatóan 2027. tavaszán kerül befejezésre.
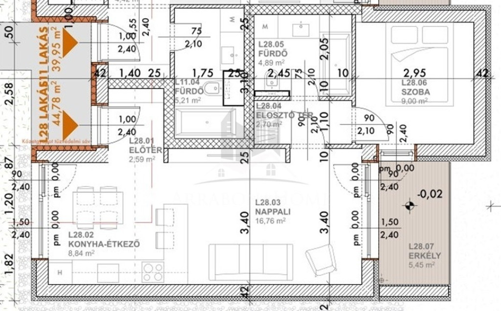
Az L28-as lakás, földszinti, 44,78 m2 alapterületű, amihez 5,45 m2-es terasz tartozik.
Elosztását tekintve: előtér, konyha-étkező, nappali, hálószoba, fürdőszoba.
A lakás fűtéskész vételára bruttó 49.990.000 Ft, kérhető a kulcsrakész befejezés is.
Parkoló árak: 2.900.000 Ft-tól 4.900.000 Ft-ig, attól függ, hogy fedetlen vagy fedettet választ.
Lehetőség van tároló vásárlására is, ára: 3.500.000 Ft – 3.900.000 Ft
A további lakástípusokat honlapunkon is megtalálja.
Használja ki az illetékmentességet és a 3 %-os Otthon Start programot!
Irodánk díjmentes pénzügyi tanácsadással áll ügyfelei rendelkezésére. Bankfüggetlen közvetítőként megtaláljuk az Ön számára legkedvezőbb pénzügyi megoldásokat és támogatjuk az ügylet teljeskörű lebonyolításában.
Bővebb információkért hívjon, akár hétvégén is!
A modern társasház kényelmes életkörnyezetet biztosít leendő lakói számára. 40-86 m2 alapterületű, napfényes, praktikus elrendezésű lakások kerültek kialakításra, így mindenki megtalálhatja az elképzeléseinek és igényeinek megfelelő otthont.
A társasházban nappali + 1 szobás, nappali + 2 szobás és nappali + 3 szobás lakások kerülnek kialakításra. A földszinti lakások kertkapcsolattal és terasszal, az emeleti lakások erkéllyel, galériával és tetőterasszal, a penthouse lakások tetőterasszal rendelkeznek.
Az ingatlan fűtését központi gázkazán biztosítja, padlófűtéssel, egyedi hőmennyiségmérővel.
Az építkezés folyamatban van, várhatóan 2027. tavaszán kerül befejezésre.
Az L28-as lakás, földszinti, 44,78 m2 alapterületű, amihez 5,45 m2-es terasz tartozik.
Elosztását tekintve: előtér, konyha-étkező, nappali, hálószoba, fürdőszoba.
A lakás fűtéskész vételára bruttó 49.990.000 Ft, kérhető a kulcsrakész befejezés is.
Parkoló árak: 2.900.000 Ft-tól 4.900.000 Ft-ig, attól függ, hogy fedetlen vagy fedettet választ.
Lehetőség van tároló vásárlására is, ára: 3.500.000 Ft – 3.900.000 Ft
A további lakástípusokat honlapunkon is megtalálja.
Használja ki az illetékmentességet és a 3 %-os Otthon Start programot!
Irodánk díjmentes pénzügyi tanácsadással áll ügyfelei rendelkezésére. Bankfüggetlen közvetítőként megtaláljuk az Ön számára legkedvezőbb pénzügyi megoldásokat és támogatjuk az ügylet teljeskörű lebonyolításában.
Bővebb információkért hívjon, akár hétvégén is!