Eladó Lakás
Hirdetéskód: 9255811
Trendi Ingatlan
Felújításhoz személyi kölcsönt keres? Kalkuláljon itt! →
Ez a hirdetés megfelelhet a FIX 3%-os programnak.
Tudj meg többet a részletekről itt.
60.00 m2
ALAPTERÜLET3
SZOBASZÁMnincs megadva
ÉPÍTÉSnincs megadva
FŰTÉS
A+++
A++
A+
A
B
C
D
E
F
G
H
I
Az ingatlan leírása
Győr-Belvárosától pár perces autóútra, Szitásdomb új kialakítású részén épülő 35 lakásos társasházban különböző alapterületű lakások eladók.
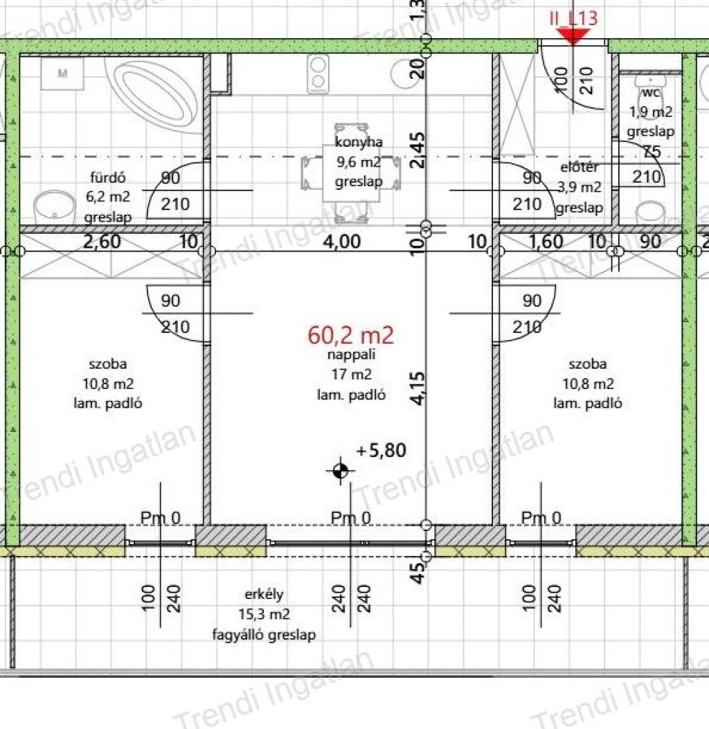
A meghirdetett 2. emeleten található 60,20 nm-es lakásban amerikai konyhás nappali, 2 szoba, fürdőszoba, külön WC, előtér kerül kialakításra. Nappaliból 15 nm-es erkély nyílik.
A lakás fűtéskész ára: 60.386.500 Ft. Kulcsrakész befejezés kérhető.
Gépkocsibeállló ára: 1.900.000 Ft
Garázs ára: 12.000.000 Ft-tól
Lehetőség van tároló vásárlására is, ára: 1.508.000 Ft-tól
Várható átadás: 2027 ősz
Magas műszaki tartalommal épülő társasház 30 cm-es falazóelemből, 15 cm-es homlokzati szigeteléssel épül. A nyílászárók 5 légkamrás profilrendszerű, 3 rétegű üvegezéssel rendelkeznek. A rejtett alumínium elektromos redőny előkészítését és a redőny dobok beépítését a vételár tartalmazza. Az épület fűtését és melegvíz-ellátását hőszivattyú és egy kiegészítő gázkazán biztosítja. Minden lakás 1 db klíma előkészítéssel rendelkezik. Az épület tetőszerkezetén napelemes rendszer kerül kialakításra, ami a társasház működésének költségeit fogja csökkenteni.
Szitásdomb új kialakítású részén épülő társasházban különböző alapterületű lakások kerülnek kialakításra, így minden kedves érdeklődő megtalálhatja álmai otthonát. A földszinti lakások kertkapcsolattal és terasszal, az emeleti lakások erkéllyel rendelkeznek. A társasház zárt udvarán felszíni parkolók kerülnek kialakításra.
Bővebb információkért forduljon hozzám bizalommal.
Hétköznap és hétvégén is várom hívását!
Díjmentes, bankfüggetlen hitelügyintézéssel állunk rendelkezésére.
A hirdetésben feltüntetett képek illusztrációk.
A meghirdetett 2. emeleten található 60,20 nm-es lakásban amerikai konyhás nappali, 2 szoba, fürdőszoba, külön WC, előtér kerül kialakításra. Nappaliból 15 nm-es erkély nyílik.
A lakás fűtéskész ára: 60.386.500 Ft. Kulcsrakész befejezés kérhető.
Gépkocsibeállló ára: 1.900.000 Ft
Garázs ára: 12.000.000 Ft-tól
Lehetőség van tároló vásárlására is, ára: 1.508.000 Ft-tól
Várható átadás: 2027 ősz
Magas műszaki tartalommal épülő társasház 30 cm-es falazóelemből, 15 cm-es homlokzati szigeteléssel épül. A nyílászárók 5 légkamrás profilrendszerű, 3 rétegű üvegezéssel rendelkeznek. A rejtett alumínium elektromos redőny előkészítését és a redőny dobok beépítését a vételár tartalmazza. Az épület fűtését és melegvíz-ellátását hőszivattyú és egy kiegészítő gázkazán biztosítja. Minden lakás 1 db klíma előkészítéssel rendelkezik. Az épület tetőszerkezetén napelemes rendszer kerül kialakításra, ami a társasház működésének költségeit fogja csökkenteni.
Szitásdomb új kialakítású részén épülő társasházban különböző alapterületű lakások kerülnek kialakításra, így minden kedves érdeklődő megtalálhatja álmai otthonát. A földszinti lakások kertkapcsolattal és terasszal, az emeleti lakások erkéllyel rendelkeznek. A társasház zárt udvarán felszíni parkolók kerülnek kialakításra.
Bővebb információkért forduljon hozzám bizalommal.
Hétköznap és hétvégén is várom hívását!
Díjmentes, bankfüggetlen hitelügyintézéssel állunk rendelkezésére.
A hirdetésben feltüntetett képek illusztrációk.